Bildegalleri

NY PRIS - Tomt regulert til konsentrert småhusbebyggelse - BYA=37% - Tidligere gitt tillatelse til blokk med 14 enheter
- Totalpris
- 2 051 370 kr
- Omkostninger
- 51 370 kr
Nøkkelinfo
Visning
Om eiendommen
Oppdragsnummer
45-22-0071
Eier
Larsen vest as v. Robert Larsen
Eiendomstype
Boligtomt
Eierform
Selveier
Betegnelse
Gnr. 23 Bnr. 813 i Molde kommune
Ideell andel: 1/1
Byggeår
2022
Areal
Tomtetype/areal
Ca. 2 221,4 kvm eiet tomt i følge matrikkelrapport datert 06.05.2022. Se også vedlagt matrikkelkart for angivelse av tomtegrenser.
Se vedlagt "Ledningskart" for angivelse av ledninger på tomten og i området. Kjøper må påberegne å søke om tilkobling til kommunalt vann- og avløpsnett og kostnader tilknyttet dette.
Det er ikke gjort undersøkelser av grunn. Hva slags type masser som ligger i grunn vites derfor ikke. Det tas et særskilt forbehold om dette og kjøper er selv ansvarlig for eventuelt å utføre grunnundersøkelser.
Tinglyste rettigheter og forpliktelser
Kommunen har legalpant som sikkerhet for betaling av kommunale avgifter. Legalpant er pant som følger av loven, og som ikke tinglyses. Legalpant følger derfor eiendommen ved salg. På eiendommen kan det være tinglyst erklæringer som f eks rett for kommunen til å vedlikeholde rørsystemer for vann- og kloakk. Disse erklæringene vil følge eiendommen ved salg. Kontakt megler for nærmere informasjon.
Servitutter / rettigheter
Eiendommen overdras fri for pengeheftelser, med unntak av eventuelle erklæringer, avtaler, servitutter og panteheftelser som fremgår av salgsoppgaven og skal følge med eiendommen ved salg. Kjøpers bank vil få prioritet etter disse.
Følgende er tinglyst på eiendommens grunnboksblad:
2006/5136-2/60 Bestemmelse iflg. skjøte
16.06.2006
Rett for kommunen til å anlegge og vedlikeholde ledninger m.m.
Elektriske kraftlinjer/ledninger/kabelgrøfter
Rettighetshaver: Telenor
Best. om telefonledninger/stolper/kabler/grøfter/telesentral
Bestemmelse om spillvann/drensvann/overvann/stikkrenner m.m.
2015/1155338-2/200 Erklæring/avtale
09.12.2015
Rettighetshaver:Knr:1506 Gnr:23 Bnr:324
Bestemmelse om sikringsarbeide
Bestemmelse om tilbakeføring av masse
Bestemmelse om gjerde
Den tinglyste avtalen inneholder detaljerte rettigheter og plikter mellom de berørte eiendommer. Enkelte av bestemmelsene kan muligens også tolkes til å være personlige og ikke reelle servitutter. Dette vites imidlertid ikke. Interessenter oppfordres til å sette seg godt inn i denne avtalen.
2006/4683-1/60 Registrering av grunn
06.06.2006
Denne matrikkelenhet opprettet fra:Knr:1506 Gnr:23 Bnr:324
Rettighet i annen eiendom:
2015/1155338-1/200 Erklæring/avtale
09.12.2015
Rettighetshaver:Knr:1506 Gnr:23 Bnr:813
Bestemmelse om bebyggelse
Bestemmelse om ryddebelte
Gjelder denne registerenheten med flere
Den tinglyste avtalen inneholder detaljerte rettigheter og plikter mellom de berørte eiendommer. Enkelte av bestemmelsene kan muligens også tolkes til å være personlige og ikke reelle servitutter. Dette vites imidlertid ikke. Interessenter oppfordres til å sette seg godt inn i denne avtalen.
Vei / Vann / Avløp
Det er ført kommunale vannledninger, spillvannsledninger og overvannsledninger til tomten. Se vedlagt ledningskart.
Kjøper må påregne å søke om påkobling på vann- og avløpsledninger og gebyr tilknyttet søkeprosess og påkobling.
Ifølge Molde kommune er det adkomst fra kommunal vei som Molde kommune drifter og vedlikeholder. Det gjøres imidlertid oppmerksom på at det er privat hjemmel på veigrunnen (gnr. 23, bnr. 324). Det foreligger ingen tinglyst veirett.
Verdi ved skattefastsetting
Formuesverdien på eiendommen er p.t. ikke fastsatt. Formuesverdien fastsettes med utgangspunkt i en kvadratmeterpris som beregnes av Statistisk Sentralbyrå (SSB). Kvadratmeterprisen skal gi uttrykk for en estimert markedsverdi pr. kvadratmeter og bygger på statistiske opplysninger om omsatte boliger (boligtype, areal, geografisk beliggenhet og alder). Ut fra kvadratmeterprisene til SSB fastsetter Skatteetaten årlige kvadratmetersatser. Formuesverdien er ulik for primærbolig og sekundærbolig. For primærbolig (der boligeier er folkeregistrert pr 1. januar) utgjør formuesverdien 25% av kvadratmeterprisene og 90 % for sekundærboliger (alle andre boliger).
Reguleringsforhold
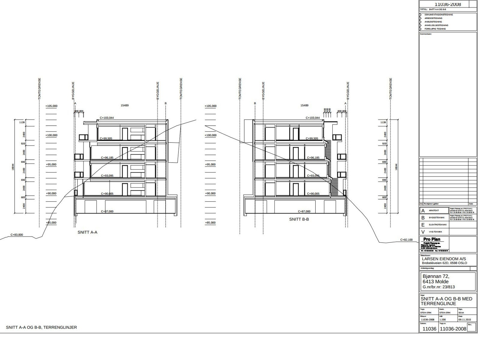
Gjeldende reguleringsplan er "Detaljregulering Bjønnan", med planid.: 201227. Ikrafttredelse 16.01.2014. Hoveddelen av eiendommen er regulert til boligbebyggelse - konsentrert småhusbebyggelse (BK2). Ca 72 kvm er regulert til annen veggrunn - teknisk anlegg og ca 29 kvm er regulert til kjøreveg. Se vedlagt reguleringskart og bestemmelser. Vedlagt reguleringskart viser at eiendommen har en BYA=37%.
Utdrag fra reguleringsbestemmelser:
" § 3 REKKEFØLGEBESTEMMELSER
3.1 Offentlig veg skal være opparbeidet i henhold til plan før igangsettingstillatelse gis for
delfelt BK1 og BK2.
3.2 Felles anlegg og kommunaltekniske anlegg skal være opparbeidet før det gis
ferdigattest for BK1 og BK2.
3.3 Ved etablering av ny veg skal lekeplass sikres og opparbeides før igangsettingstillatelse
gis for delfelt BK1 og BK2.
3.4 Bekkeløp øst for BK2 skal utbedres som følge av ny veg.
3.5 Før igangsettingstillatelse for etablering av ny veg gis. Skal det foreligge en geoteknisk
vurdering for ny veg, samt for BK1 og BK2. Den geotekniske undersøkelsen skal
vurdere i hvilken grad nye tiltak vil berøre eksisterende bebyggelse.
4.2:
Boligbebyggelse konsentrert småhusbebyggelse:
Før områdene for konsentrert bebyggelse blir godkjent utbygget, skal det utarbeides en samlet situasjonsplan for de enkelte feltene. For hver leilighet skal det på egen tomt avsettes plass for 1 garasje samt biloppstillingsplass for 1 bil per leilighet. Rekkehus- og terrasehus kan oppføres i området. Rekkehus med mønehøyde/gesimshøyde inntil 9,6 meter over gjennomsnittlig planert terreng. Terrassehus med mønehøyde/gesimshøyde inntil 12,8 meter over gjennomsnittlig planert terreng.
§ 5
SAMFERDSELSANLEGG OG TEKNISK INFRASTRUKTUR
5.1
Kjøreveg:
Offentlig kjøreveg skal opparbeides slik den er vist på planen med reguleringsbredde og byggegrenser. Det skal opparbeides nødvendig frisikt i alle kryss, både på det eksisterende og interne vegnettet
5.2
Annen veggrunn tekniske anlegg:
Annen veggrunn skal opparbeides slik at arealet får en tilfredsstillende funksjon som snøopplag slik det er vist på plankartet og beskrevet i planbeskrivelsen.
Ifølge Kommuneplanens arealdel for Molde - del 1, 2015-2025 ligger eiendommen i område avsatt til boligbebyggelse. Eiendommen ligger også i hensynssonen "Ras-og skredfare". Kommuneplankart med bestemmelser ligger vedlagt i salgsoppgaven.
Utdrag fra kommuneplanens bestemmelser:
"
§ 15 Faresoner
§ 15.1 Ras og skredfare
a) Skredsikkerhet skal dokumenteres i plansammenheng. Der skredsikkerhet ik-ke er dokumentert i reguleringsplan, skal dette gjøres ved byggesøknad.
b) Ved tiltak jf. PBL § 11-7, nr. 1-2 innenfor ras- og skredfareområder, skal fare-nivået og eventuelle avbøtende tiltak vurderes.
c) I områder under marin grense skal eventuell forekomst av kvikkleir og rasfare vurderes av geoteknikker. Sikringstiltak må være gjennomført før bygging.
Generelle bestemmelser for fortetting
§ 20.1 For boligområder med planer uten krav om grad av utnytting eller hvor utnyttelsesgrad er angitt på annen mate enn % - BYA skal følgende gjelde:
- Områder med særlige restriksjoner jf. Temakart 4 (grønn sone) - 27 % BYA
- Områder for småhusbebyggelse jf. Temakart 4 (gul sone) - 30 % BYA
- Øvrige omrader jf. Temakart 4 (hvit sone) - 35 % BYA"
Andre faste løpende kostnader
Kommunale avgifter er ikke fastsatt for eiendommen. Dette må påregnes avgifter til vann, avløp, renovasjon, og evt. fyring/tilsyn ved ferdigstillelse av fremtidig tiltak. I tillegg må det påregnes eiendomsskatt.
Det må også påregnes å søke om påkobling på vann- og avløpsledninger og gebyr tilknyttet søkeprosess og påkobling.
Oppgjør
Kjøpesum med tillegg av omkostninger skal være disponibelt på meglers klientkonto innen overtagelse. Normalt innebærer dette at fullt oppgjør må være innbetalt på meglers klientkonto senest to virkedager før avtalt overtagelsesdato.
Eventuelle vilkår knyttet til innbetalingen, eksempelvis pantedokument som skal tinglyses til fordel for kjøpers bank, må være megler i hende i god tid før overtagelse kan finne sted.
Finansiering
Kontakt megler for avklaring av finansielle forhold, herunder lån til kjøp av eiendom. Privatmegleren har avtale med Nordea om formidling av lån og andre finansielle tjenester. Privatmegleren mottar godtgjørelse for dette.
Konsesjon / Odel
Kjøper må fylle ut egenerklæring om konsesjonsfrihet. Egenerklæring må signeres av kjøper og bekreftes av kommunen for at skjøtet kan tinglyses.
Sikkerhetsstillelse
Alle eiendomsmeglingsforetak har lovpålagt forsikring av klientmidler begrenset oppad til kr 45 mill. Enkeltsaker er forsikret inntil kr 15 mill. Dersom kjøpers låneinstitusjon krever tilleggsforsikring ved omsetning over 15 millioner, må kjøper selv eller dennes låneinstitusjon dekke utgiftene forbundet med dette.
Kjøpsforsikring
Vedlagt i salgsoppgaven følger informasjon om Kjøpsforsikring fra If. Produktet inneholder boligkjøperforsikring, hus-/hytteforsikring med superdekning og innboforsikring med superdekning. Les mer om Kjøpsforsikring i vedlagte materiell.
Overtagelse
Etter nærmere avtale.
Boligselgerforsikring
Selger har ikke tegnet boligselgerforsikring, og interessenter oppfordres til å sette seg inn i selgers egenerklæring før det inngis bud på eiendommen.
Budgiving
Bud kan legges inn via Privatmeglerens "gi bud-knapp" som finnes på Privatmegleren.no/eiendommens hjemmeside og i nettannonsen. Bud legges inn trygt og enkelt med bank-ID.
For mer informasjon om budgivning, se "Viktig informasjon" i salgsoppgaven.
Tidligste tillatte akseptfrist på bud er 07.06.22 kl. 12:00.
Lovanvendelse
Eiendommen selges etter reglene i avhendingsloven.
Eiendommen skal overleveres kjøper i tråd med det som er avtalt. Det er viktig at kjøper setter seg grundig inn i alle salgsdokumentene, herunder salgsoppgave, tilstandsrapport og selgers egenerklæring. Kjøper anses kjent med forhold som er tydelig beskrevet i salgsdokumentene. Forhold som er beskrevet i salgsdokumentene kan ikke påberopes som mangler. Dette gjelder uavhengig av om kjøper har lest dokumentene. Alle interessenter oppfordres til å undersøke eiendommen nøye, gjerne sammen med fagkyndig før bud inngis. Kjøper som velger å kjøpe usett kan ikke gjøre gjeldende som mangel noe han burde blitt kjent med ved undersøkelsen.
Dersom det er behov for avklaringer, anbefaler vi at kjøper rådfører seg med eiendomsmegler eller en bygningssakyndig før det legges inn bud.
Hvis eiendommen ikke er i samsvar med det kjøperen må kunne forvente ut ifra alder, type og synlig tilstand, kan det være en mangel. Det samme gjelder hvis det er holdt tilbake eller gitt uriktige opplysninger om eiendommen. Dette gjelder likevel bare dersom man kan gå ut i fra at det virket inn på avtalen at opplysningen ikke ble gitt eller at feil opplysninger ikke ble rettet i tide på en tydelig måte. En bolig som har blitt brukt i en viss tid, har vanligvis blitt utsatt for slitasje og skader kan ha oppstått. Slik bruksslitasje må kjøper regne med, og det kan avdekkes enkelte forhold etter overtakelse som nødvendiggjør utbedringer. Normal slitasje og skader som nødvendiggjør utbedring, er innenfor hva kjøper må forvente og vil ikke utgjøre en mangel.
Boligen kan ha en mangel dersom det er avvik mellom opplyst og faktisk areal, forutsatt at avviket er på 2% eller mer og minimum 1 kvm.
Ved beregning av et eventuelt prisavslag eller erstatning må kjøper selv dekke tap/kostnader opptil et beløp på kr 10 000 (egenandel).
Dersom kjøper ikke er forbruker selges eiendommen som den er , og selgers ansvar er da begrenset jf. avhl. § 3-9, 1. ledd 2. pktm. Avhendingsloven § 3-3 (2) fravikes, og hvorvidt en innendørs arealsvikt karakteriseres som en mangel vurderes etter avhendingsloven § 3-8. Informasjon om kjøpers undersøkelsesplikt, herunder oppfordringen om å undersøke eiendommen nøye, gjelder også for kjøpere som ikke anses som forbrukere. Med forbrukerkjøp menes kjøp av eiendom når kjøperen er en fysisk person som ikke hovedsakelig handler som ledd i næringsvirksomhet.
Lov om hvitvasking
Megler er underlagt lov om hvitvasking som innebærer plikt til å melde ifra til Økokrim om mistenkelige transaksjoner
Meglers vederlag og utlegg
Visninger/ overtagelse pr. stk. (Kr.2 500)
Markedspakke (Kr.16 900)
Oppgjørskostnad (Kr.5 000)
Provisjon (Kr.50 000)
Tilrettelegging (Kr.10 000)
Visninger (Kr.1 950)
Kommunal informasjon (Kr.4 354)
Pantattester/ grunnbok fra St.kartverk (Kr.1 000)
Kommunal informasjon (Kr.4 718)
Fotografering: 30 bilder, plantegn. og 3D-visning (Kr.4 800)
Markedspakke standard (Kr.16 900)
Tilstandsrapport, antatt pris (faktureres direkte) (Kr.17 000)
Totalt kr. (Kr.135 122)
Dersom eiendommen ikke omsettes, faktureres selger kr 9 900,- + markedspakke, tilrettelegging, visninger og direkte utlegg.
Vedlegg til salgsoppgaven
Grunnkart
Matrikkelkart-og rapport
Reguleringsplankart
Reguleringsbestemmelser
Kommuneplankart
Kommuneplan
Ledningskart
Adkomst til eiendommen
Servitutter
Rammetillatelse til blokk 2016
Skredvurdering 2017
Meglers verdivurdering
Bud og budgivning
Nyttige lenker
Privatmegleren Molde
Nærområdet
Annonseinformasjon
| FINN-kode | 259785011 |
|---|---|
| Sist endret | 21. sep. 2023 00:31 |
| Referanse | 45220071 |
Annonsene kan være mangelfulle i forhold til lovpålagt opplysningsplikt. Før bindende avtale inngås oppfordres interessenter til å innhente komplett informasjon fra meglerforetaket, selger eller utleier.












