Bildegalleri

Drone
Runnivegen 15 og 19 i Nes Kommune på Romerike - Tomt for Boligutvikling - Det varme og nære nabolag!
Nøkkelinfo
Om eiendommen
Beskrivelse
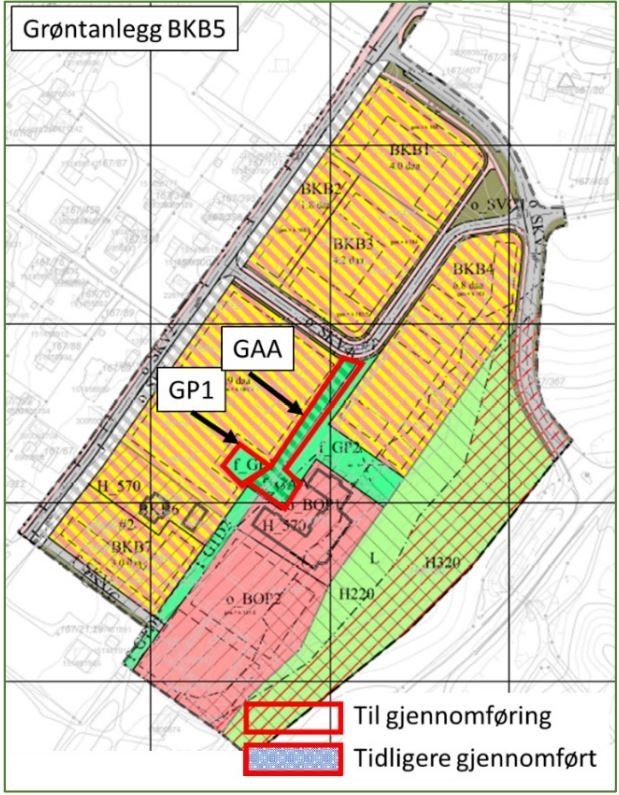
DNB Eiendom AS avdeling Næring og Landbruk er engasjert av Nes kommune for bistand salg av Runnivegen 15 (gbnr 167/402) og del av Runnivegen 19 (gbnr 167/ 410) i Nes kommune (samlet omtalt som Eiendommene). Runnivegen 19 er under fradeling og Eiendommen vil etter gjennomført fradelingsforretning tilsvare hhv BKB5 og BKB3 i gjeldende reguleringsplan. Eiendommens areal etter fradeling vil være ca 12 100 kvm.
Investeringsmuligheten på Eiendommen omfatter maksimalt tillat bruksareal 12.120 BRA, fordelt på 7.930 m2 BRA på BKB5 (Runnivegen 15) og 4190 m2 BRA på BKB3 (del av Runnivegen 19). Omregningsfaktorens fra BRA til BRA-S er stipulert til 0,85, slik at stipulert antall BRA-S er 10.302 m2.
Runnivegen 15 vil, avhengig av sammensetning av boenheter, omfatte ca 140 boenheter. Av disse skal 45 % til 55 % være omsorgsboliger. 30 av omsorgsboligene skal selges tilbake til Selger.
Del av Runnivegen 19 vil omfatte ca 74 boenheter. Av disse skal 45 % til 55 % være omsorgsboliger. Det er planlagt ca 214 boenheter totalt på Eiendommen (BKB5 og BKB3), dvs fra ca 96-117 boliger til omsorg/kommune og resterende boliger da ca 98 - 118 vil være for fritt salg i det åpne marked. Påstående bebyggelse på del av Runnivegen 19 er leiet ut til Nes kommune for kr 420 000,- + mva iht leieavtale de 5 neste år.
TA KONTAKT MED MEGLER FOR PROSPEKT MED VEDLEGG. BUDFRIST ER 14 MAI 2022.
Innhold
Målsettingen med prosjektet er å få etablert nye omsorgsboliger integrert blant ordinære boliger, og gjennom det oppnå større grad av normalisering og blanding av formålsgrupper. Ved å kombinere omsorgsboliger og ordinære boliger for salg, vil prosjektet være attraktivt for mange målgrupper, som alle vil ha fordeler av boligkonseptets fellesarealer og kvaliteter. Prosjektet har som mål om å: -Skape et fellesskap mellom mennesker uavhengig av alder og funksjonsnivå, og etablere et mangfoldig boligmiljø med varierte boligstørrelser -Etablere et inkluderende nabolag som bidrar til økt botillfredshet og egenmestring -Legge til rette for gode familieboliger som sikrer barna gode oppvekstvillkår -Skape felles uterom som er gode møtesteder og som stimulerer til sosial samhandling -Aldersblanding og ulike formålsgrupper i samme bomiljø skal bidra til aktivitet og interaksjon. Husbanken er en viktig i prosessen. Ulike boligtyper er satt sammen for å skape størst mulig mangfold av beboere. I denne sammenheng er det snakk om leiligheter i ulike størrelser, omsorgsboliger og
ordinære boliger for salg. Krav til Prosjektet og salg av omsorgsboliger, fellesarealer, personalrom og parkeringsplasser: På Runnivegen 15 skal det oppføres 140 boliger, herunder 70 omsorgsboliger. Ca halvparten av
boligene skal oppføres i første byggetrinn, herunder minst 16 av omsorgsboliger, personalbase og parkeringsplasser, mens den andre halvparten, herunder 14 av omsorgsboliger, (personalbase) skal oppføres i andre byggetrinn. Kjøper og Selger er enige om at 30 omsorgsboliger skal overdras fra Kjøper til Selger på de vilkår som følger av særskilt avtale om kjøp av omsorgsboliger (vedlegg 5). På del av Runnivegen 19 skal det oppføres 74 boenheter, herunder 45 - 55 % omsorgsboliger.
Den del av omsorgsboligene både på Runnivegen 15 som ikke skal kjøpes av Nes kommune og omsorgsboligene på del av Runnivegen 19 skal bygges i nær dialog med Nes kommune. Partene skal drøfte ulike strategier, herunder, men ikke begrenset til, etablering av tildelings-/tilvisningsavtale med Nes kommune, som vil gi Kjøper (som utleier) en gunstig finansiering fra Husbanken, gitt at Kjøper (som utleier) driver profesjonell utleie og har som formål å eie, forvalte og leie ut boliger. Boligene med tilvisnings-/ tildelingsrett er beregnet for boligsøkere som har behov for hjelp fra kommunen til å finne en egnet bolig, og som av ulike årsaker er vanskeligstilte på boligmarkedet. kjøper og selger skal drøfte ulike strategier for fremskaffelse.
Standard
Kommunen skal erverve av Kjøper:
-30 boenheter som skal tjene som omsorgsboliger for mennesker med demens ( Omsorgsboligene ), fordelt på 16 boenheter i første byggetrinn, organisert som en eierseksjon, og 14 i andre byggetrinn, organisert som en eierseksjon.
-Næringsseksjon for personalbase tilknyttet Omsorgsboligene ( Personalbase ).
-Næringsseksjon for fellesrom tilknyttet Personalbase og Leilighetene ( Fellesrom ).
-Parkeringsplasser/andeler i garasjeanlegg [som organiseres som næringsseksjon eller anleggseiendom], hvorav [ ] plasser skal være handickaptilpasset ( Parkeringsplasser )
Se vedlagt i Prospekt utkast Avtale om kjøp av omsorgsboliger.
Oppvarming
Bygninger som oppføres eller blir gjenstand for hovedombygging i samsvar med plan- og bygningslovens § 20-1 bokstav a, skal tilknyttes fjernvarmeanlegg. I særlige tilfeller der det åpenbart ikke er praktisk eller samfunnsmessig forsvarlig, kan kommunens faste planutvalg etter begrunnet søknad gi dispensasjon fra tilknytningsplikten. Det skal i slike tilfeller innhentes uttalelse fra fjernvarmeanleggets eier.
Bebyggelse
Runnivegen 15 (gbnr 167/402) er i dag bebygget med eldre bygg som skal rives for ny bebyggelse. Byggene vil være tomme ved overtakelse.
Runnivegen 19 (gbnr 167/ 410) er i dag bebygget med hall som skal leies av kommune videre iht leiekontrakt de 5 neste år for NOK 420 000,- + mva pr år.
Beliggenhet
Nes er en særpreget landbrukskommune og en av landets største kornkommuner sentralt plassert på Østlandet med nærhet til Oslo og Gardermoen. I Nes er det stille og rolig, god plass og gode oppvekstmiljøer - samtidig gir kommunens geografiske plassering nærhet til både natur, storby, flyplassen og dermed resten av verden. Nes sine særegenheter - som elvemøtet mellom Glomma og Vorma, det bølgende kulturlandskapet og kulturhistorien, blandet med kjennetegn som tilgangen til natur og friluft, det rike kulturlivet og idrettstilbudet, mye frivillig arbeid og god dugnadsånd - er med på å danne kommunens identitet. Kommunen ligger ca 50 km nord for Oslo. Tettstedet Årnes er kommunesenter og kjennetegnes som en landsbypreget stasjonsby langs Kongsvingerbanen. Kommunens visjon Det gode liv der elvene møtes uttrykker et felles ønske om god livskvalitet for kommunens innbyggere og peker på elvemøtets unike betydning som landemerke og kilde til inspirasjon.
Lovanvendelse
Salget av eiendommen vil bli gjennomført som eiendomssalg med overskjøting av hjemmel til eiendommen. Kjøper betaler dokumentavgift og tinglysningsomkostninger i tillegg til kjøpesum.
Eiendommen overtas i den stand som det var i ved Kjøpers forutgående besiktigelse/gjennomgåelse ("as is"). Ved en eventuell mangelsvurdering skal de alminnelige kjøpsrettslige prinsippene i avhendingsloven § 3-9 legges til grunn, dog slik at disse prinsippene fravikes slik at det kun kan gjøres gjeldende at det foreligger mangel i følgende tilfeller:
- dersom Selger ikke oppfyller sine konkrete forpliktelser under denne kontrakt.
- dersom Selger ikke oppfyller sin opplysningsplikt, jf. reguleringen i avhendingsloven § 3-7, eller
- dersom Selger har gitt uriktige opplysninger, jf. reguleringen i avhendingsloven §3-8
Ovennevnte er ensbetydende med at Kjøper har risikoen for eventuelle skjulte feil og mangler. Risikoen for eventuelle skjulte feil som angitt i avhendingsloven § 3-9 siste punktum, tilligger etter dette Kjøper. Kjøper har herunder risikoen for de generelle krav til tilstanden for Eiendommen, jf. avhendingsloven § 3-2.
Avhendingsloven §4-19 (2) fravikes også, slik at den endelige reklamasjonsfristen settes til 18 mnd. etter overtakelse.
Rapporter og informasjon fra tredjemenn som gjelder eiendommen (tekniske rapporter, grunnanalyser, takster, informasjon fra forretningsfører etc.) og som er fremlagt av selger eller selgers rådgiver i forbindelse med transaksjonen så er Selger ukjent med ufullstendigheter eller feil i dokumentene. Skulle dokumentene likevel vise seg å være ufullstendige eller inneholde feil, så fravikes prinsippene i avhendingslovens § 3-7 og § 3-8, slik at Selger bare svarer for eventuelle feil som Selger likevel hadde faktisk kunnskap om.
Eventuelle uriktige angivelser av Eiendommens arealer (innvendig eller utvendig) skal ikke under noen omstendighet utgjøre en mangel eller et garantibrudd.
Eiendomsmeglingsloven § 4-4, § 6-2, § 6-4, § 6-5, § 6-7 til 6-10, kapittel 7 og § 8-8 gjelder ikke, med mindre annet klart fremgår av avtalen, jf. eiendomsmeglingsloven § 1-4 tredje ledd og forskrift om eiendomsmegling § 1-2.
Adkomst
Kommunen ligger ca 50 km nord for Oslo, på Øvre Romerike, Årnes er kommunesenter.
Budgivning
Beskrivelse av tilbudet og fremdriftsplan:
For å bedømme tilbudet og tilbyders gjennomføringsevne skal det med tilbudet leveres en beskrivelse av hvordan prosjektet skal gjennomføres hvor blant annet følgende forhold skal beskrives:
-Prosjektorganisasjon som viser hvordan alle fag skal inngå i utviklingen av område BKB5.
-Kompetanse innenfor ulike fagområder i prosjekterings- og utførelsesfasen.
-En enkel beskrivelse av detaljeringsnivået på ulike oppgaver som skal utføres i prosjekterings- og planfasen.
-Beskrivelse av hvordan tilbyder vil Involvere oppdragsgiver i funksjon som myndighet i henhold til plan- og bygningsloven og som kjøper av omsorgsboliger.
Det skal utarbeides en overordnet fremdriftsplan som minimum viser:
-Plan og prosjekteringsfasen inklusiv tentativ kommunal saksbehandling for felles infrastruktur.
-Byggefase for felles infrastruktur.
-Plan og prosjekteringsfasen for BKB5 inklusive tentativ kommunal saksbehandling.
-Byggefase for kommunale omsorgsboliger beregnet for gjenkjøp.
-Tidspunkt for overtagelse av omsorgsboligene kommunen skal kjøper.
Det skal beskrives ferdigstillelsenivået for felles infrastruktur ved tidspunkt for overtagelse av kommunale gjenkjøpsboliger innenfor felt BKB5. Det skal også beskrives ferdigstillelsenivået for feltspesifikk infrastruktur innenfor BKB5 med særlig vekt på delområde(r) for kommunale gjenkjøpsområder.
Bud skal fremsettes basert på følgende forutsetninger:
- Det forutsettes at budgivere gjennomgår det fremlagte salgsmateriell og foretar befaring av eiendommen før bud inngis.
- Eiendommen selges "as-is", kjøpekontrakten (den til enhver tid gjeldende meglerstandard fra Forum For Næringsmeglere) kan oversendes på forespørsel.
- Selger gir ingen garantier knyttet til forurensing i grunn, forhold av arkeologisk interesse, eller grunnforholdene i sin alminnelighet som kan ha praktiske eller økonomiske konsekvenser for kjøper.
- Eiendommens opplyste arealer er ikke kontrollert av eier eller megler. Eventuelle uriktige angivelser av Eiendommens arealer skal ikke under noen omstendighet utgjøre en mangel eller et garantibrudd. Ved ønske om kontrollmåling av bygget kan interessenter på forespørsel få tilgang til byggene for oppmåling for egen regning. Bud skal sendes skriftlig til megler og inneholde opplysninger om Eiendommenes matrikkelnr, adresse, beløp, budgivers navn og kontaktdata og eventuelle forbehold. Avgitt bud er bindende og kan ikke tilbakekalles når det er mottatt hos megler. Bud inngis på de vilkår som følger av prospekt. Bud uten vesentlige forbehold prefereres. Som vesentlig ansees forbehold om finansiering og styreforbehold. Selger står fritt til å akseptere eller avvise ethvert bud. Eiendomsmeglingslovens § 6-10 samt eiendomsmeglingsforskriftens §§ 6-3 og 6-4, som omhandler budgivning, fraskrives i forbindelse med transaksjonen.
Tomt
Runnivegen 15 (gbnr 167/402) og del av Runnivegen 19 (gbnr 167/ 410) i Nes kommune (samlet omtalt som Eiendommene). Runnivegen 19 er under fradeling og sammenføying og Eiendommene vil etter gjennomført fradeling- og gjennomføringsforretning tilsvare hhv BKB 5 og BKB3 i gjeldende reguleringsplan.
Diverse
Eiendommen selges med gjeldende regulering, og forutsettes utviklet i samsvar med gjeldende reguleringsplan med bestemmelser. Selger skal ved kontraktsignering utstede nødvendig fullmakt til Kjøper for disponering av Eiendommen til byggesøknad. Kjøper er forpliktet til å gjennomføre Prosjektet i henhold til kravene beskrevet i prospekt utarbeidet av DnB Eiendom AS avd Næring og Landbruk (Prospektet), Utbygging av Eiendommen i strid med kjøpekontrakten eller disse kravene kan ikke foretas uten skriftlig samtykke fra Selger. - Første byggetrinn med 16 omsorgsboliger og
tilhørende personalfasiliteter og parkeringsplasser skal stå klare seneste 31.12.2024, og 14 omsorgsboliger skal stå ferdig senest 2 år etter ferdigstillelse av byggetrinn 1. Dersom første eller andre byggetrinn ikke er ferdigstilt innen fristen, og dette skyldes forhold som ligger utenfor Kjøpers kontroll, har kjøper krav på fristforlengelse. Partene skal føre en løpende dialog rundt Prosjektets fremdrift, og ev. krav om fristforlengelse skal fremsettes skriftlig med begrunnelse. Dersom Kjøper ikke forholder seg til ovennevnte frister, herunder forlengede frister som Kjøper har rett til etter ovenstående reguleringer har Selger rett til å
heve avtalen. Alternativt kan selger krever dagmulkt. Dagmulkt beregnes med 0,75 promille av kjøpesummen og regnes fra hver kalenderdag frem til omsorgsboligene er klar for overlevering, dagmulkt
kan ikke kreves for mer enn 100 dager. Heving eller dagbøter kan ikke kreves dersom fristoverskridelsen skyldes force majeure. Heving kan ikke kreves etter at fysiske tiltak iht. IG er igangsatt på
Eiendommen. Ansvar og kostnader forbundet med rivning av eksisterende bebyggelse påhviler Kjøper.
Regulering
Nyttige lenker
Nærområdet
Annonseinformasjon
| FINN-kode | 254057314 |
|---|---|
| Sist endret | 23. mai 2022 12:11 |
| Referanse | 170210011 |
Annonsene kan være mangelfulle i forhold til lovpålagt opplysningsplikt. Før bindende avtale inngås oppfordres interessenter til å innhente komplett informasjon fra meglerforetaket, selger eller utleier.











































