Bildegalleri

Se pil for beliggenhet
Byggeklar tomt med fantastisk utsikt -attraktiv og barnevennlig boligområde!
Prisantydning1 550 000 kr
- Totalpris
- 1 588 750 kr
- Omkostninger
- 38 750 kr
Nøkkelinfo
Fasiliteter
Bilvei frem
Bredbåndstilknytning
Ingen gjenboere
Kabel-TV
Offentlig vann/kloakk
Utsikt
Fiskemulighet
Turterreng
Visning
Ta kontakt for å avtale visning.Adkomst
Adkomst via Gaupevegen.
Beliggenhet
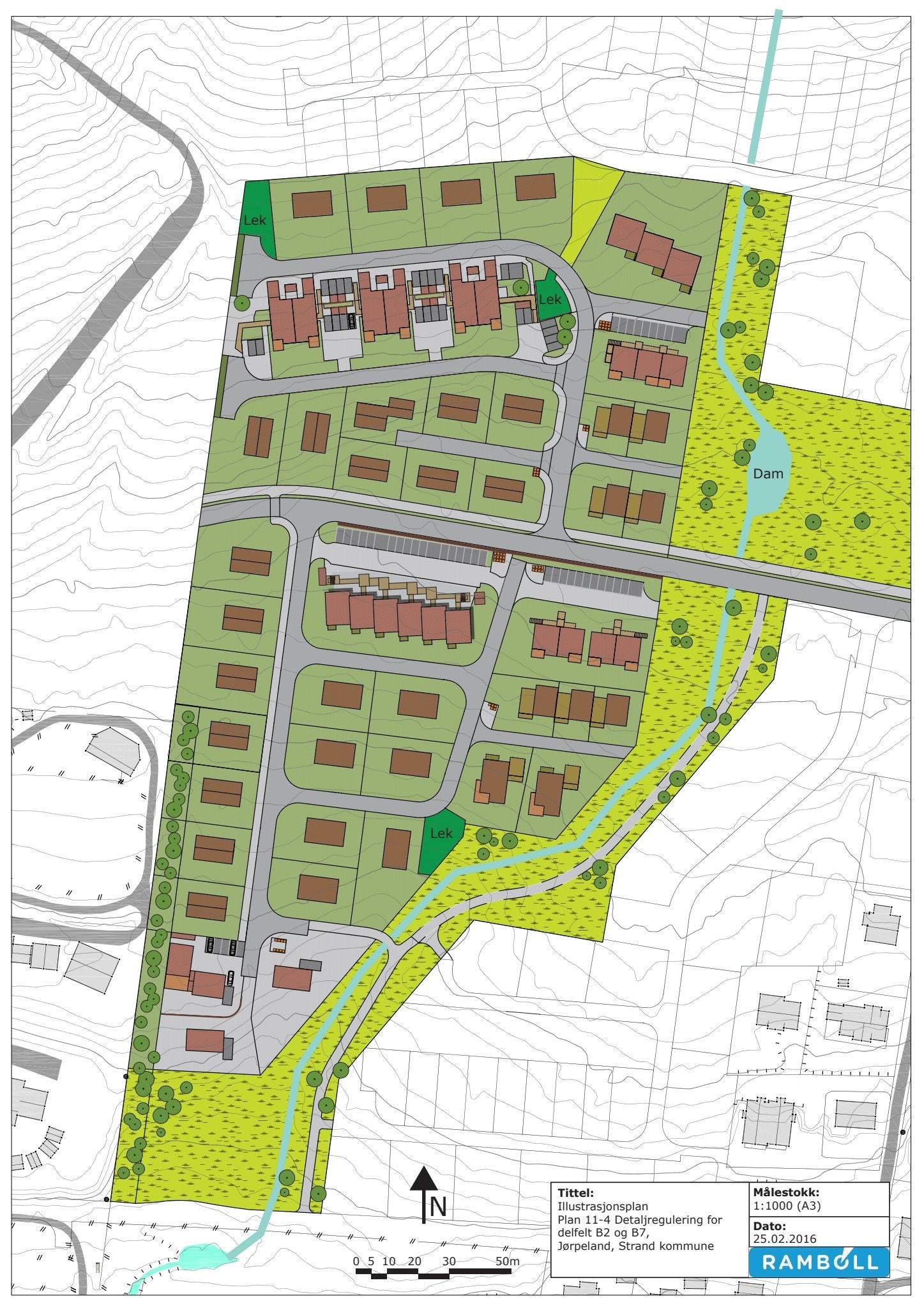
I Resahagen har du formidabel utsikt over fjorden, spennende lekeplasser og flotte turområder i et veletablert og hyggelig nabolag.
Skole, barnehage og idrettsanlegg ligger i gåavstand til feltet. En grusvei følger barna helt ned til Resahaugen skole. Lekeplass med ballbinge og gapahuk er en naturlig møteplass i midten. Byggeklar tomt med byggeklausul for enebolig med fantastisk utsikt mot fjorden i Resahagen - attraktivt og barnevennlig boligområde.
Skole, barnehage og idrettsanlegg ligger i gåavstand til feltet. En grusvei følger barna helt ned til Resahaugen skole. Lekeplass med ballbinge og gapahuk er en naturlig møteplass i midten. Byggeklar tomt med byggeklausul for enebolig med fantastisk utsikt mot fjorden i Resahagen - attraktivt og barnevennlig boligområde.
Beskaffenhet
Området består primært av boliger, skole, barnehage og idrettsanlegg.
NB: Knappen for å vise hele beskrivelsen har kun en visuell effekt.
NB: Knappen for å vise hele beskrivelsen har kun en visuell effekt.
Eiendomsmegler Norge Nybygg Rogaland
Nærområdet
Annonsene kan være mangelfulle i forhold til lovpålagt opplysningsplikt. Før bindende avtale inngås oppfordres interessenter til å innhente komplett informasjon fra meglerforetaket, selger eller utleier.




