Bildegalleri

Flotte hyttetomter i Tørset Hyttegrend.
- Totalpris
- 450 000 kr
Nøkkelinfo
Fasiliteter
Visning
Beskrivelse
På Ulsberg, 1t og 15min sør for Trondheim finner du Tørset Hyttegrend. Feltet ligger vestvendt med utsikt mot Ramsfjella, og har en fantastisk flott og LANG solgang.
Hyttefeltet ble etablert i 2016
med kommunalt vann og avløpsanlegg, samt strøm lagt inn til hver tomt.
Dette er et rolig og fint område som byr på et flott turterreng sommer som vinter.
Fra hytta er det mange fine turmuligheter, både i skog og fjell. Med flotte opplyste langrennsløyper like ved hyttefeltet, er det ingen grunn til å la skia ligge på hylla!
Det er også mange fine turmuligheter i nærområdet, som bla. Barnas naturverden som starter på Heverfallsetra, rett på andre sida av dalen (15min kjøretur).
Med en kjøretur på kun 25km til Oppdal, er det også gode muligheter for å få brukt slalomskia eller sykkelen.
Fasiliteter:
-Utekjøkken.
-Bålplass.
-Lekeplass med mulighet for flere forskjellige aktiviteter.
-Bekk med mulighet for lek og bad for store og små.
-Langrennsløype i umiddelbar nærhet.
Med en morsom bekk som sildrer rundt bålplassen, er dette et supert område for lek i vannet mens de voksne nyter en kopp kaffe.
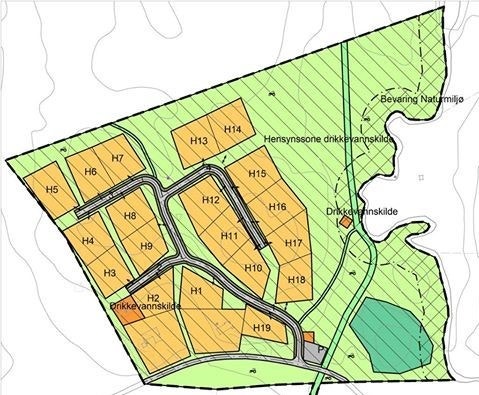
Totalt 19 tomter. 10 er solgt og bebygd.
Det planlegges bygging av ei hytte for salg nå, ta kontakt ved interesse for denne :)
Pris fra 450 000,-
Se bilde av reguleringsplan for oversikt over ledige tomter.
Vi tilbyr flotte tomter fra 721 m² til 1 267 m² til forskjellig priser. Ta kontakt for priser.
Med tett samarbeid med Joramo og Tørset Bygg AS og Tørset Maskin AS tilbyr vi alt fra grunnarbeid til å sette opp hytta for dere som ønsker ei nøkkelferdig hytte!
Vi har ei minihytte i feltet som kan benyttes om potensiell kjøper ønsker å teste området ei natt/helg.
Sving mer enn gjerne innom for å se området!
Har du spørsmål eller ønsker visning av feltet, ta kontakt! :)
Besøk oss på Facebook og følg oss for å holde deg oppdatert;)
https://m.facebook.com/torsethytte/
Telefon: 93808858
Adkomst
E6 , Rv3
Kjør mot sørøst på Rv3
1,2 km
Ta til venstre (Granligrenda)
56 m
Ta til venstre
350 m
Ta til høyre
850 m
Tørset Hyttegrend på venstre side!
Beliggenhet
90km sør for Trondheim.
Krysset E6, RV3. Drøyt 1km fra RV3. Fin vei helt fram til alle hyttetomtene hele året.
Nærområdet
Annonsene kan være mangelfulle i forhold til lovpålagt opplysningsplikt. Før bindende avtale inngås oppfordres interessenter til å innhente komplett informasjon fra meglerforetaket, selger eller utleier.











































