Bildegalleri

Flyfoto
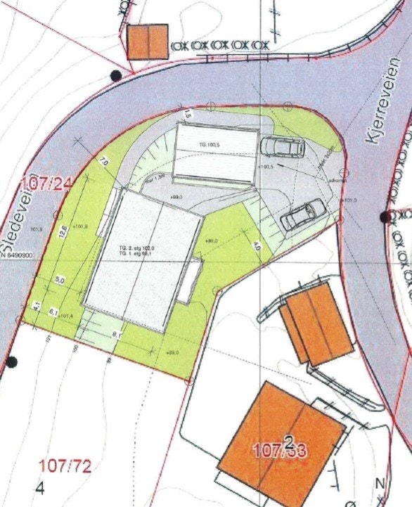
Boligtomt, Helleland (med tegninger for tomannsbolig)
Prisantydning495 000 kr
Nøkkelinfo
Fasiliteter
Bilvei frem
Offentlig vann/kloakk
Visning
Ved selvsyn
Beliggenhet
Tomten ligger "inderst" i etablert boligområde (Skjerpefeltet) på Helleland.
Beskaffenhet
Tomt regulert for boligformål.
Det foreligger tegninger for horisontaltdelt tomannsbolig m/ tilhørende carporter inkl. boder.
Hver av boenhetene er på +/- 90m2 og har 3 soverom.
Se tegninger.
Men - en står selvfølgelig fritt til å tegne/ søke om annen bolig.
Pen tomt inderst i Skjerpefeltet.
Barnevennlig og pent boligområde med lekeplass i umiddelbar nærhet.
Det foreligger tegninger for horisontaltdelt tomannsbolig m/ tilhørende carporter inkl. boder.
Hver av boenhetene er på +/- 90m2 og har 3 soverom.
Se tegninger.
Men - en står selvfølgelig fritt til å tegne/ søke om annen bolig.
Pen tomt inderst i Skjerpefeltet.
Barnevennlig og pent boligområde med lekeplass i umiddelbar nærhet.
Regulering
Boligformål
NB: Knappen for å vise hele beskrivelsen har kun en visuell effekt.
NB: Knappen for å vise hele beskrivelsen har kun en visuell effekt.
Nærområdet
Annonsene kan være mangelfulle i forhold til lovpålagt opplysningsplikt. Før bindende avtale inngås oppfordres interessenter til å innhente komplett informasjon fra meglerforetaket, selger eller utleier.






