Bildegalleri

Huset som skal bygges
Solrik beliggenhet, ved golfbanen.
Dilling : Moderne enebolig med 4 soverom, midt mellom Moss og Larkollen
Prosjektets status
Planlegging
Planlegges
Salgsstart
April - 26
Byggestart
Ved kontrakt
Overtakelse
6-8 mnder etter kontrakt
Nøkkelinfo
- Pris
- Pris kommer
- Boligtype
- Enebolig
- Soverom
- 4
- Eieform
- Selveier
Beskrivelse
Kaptein Eliesons vei har en meget solrik og landlig beliggenhet på Evje (mellom Rygge og Larkollen). Her omgis du av de vakre landbruksområdene Rygge er kjent for, med store friområder.
De fredelige omgivelsene og eiendommen bør fremstå attraktivt for en småbarnsfamilie. For familiens yngste medlemmer vil det være positivt med kort vei til skolen, med rett over kilometeren til Vang barneskole.
Selv med en landlig beliggenhet er veien til forretninger relativt kort. Langs Larkollveien, cirka 4 kilometer nordover, kommer du til Bredsand der du finner Rygge ungdomsskole og blant annet Spar dagligvarebutikk. Ytterligere 2 kilometer videre finner du handelsområdet Sydsiden og Varnaveien, der en rekke sports- , elektronikk- og interiørkjeder er etablert. Her er også treningssenter, bowlinghall samt Rygge Storsenter med vinmonopol.
Velkjente Evje Golfpark ligger på motsatt side av Larkollveien, og er et av norges mest anerkjente golfanlegg og inviterer til spill i flotte omgivelser. Videre sydover kommer du til sommerperlen Larkollen som for de fleste forbindes med sol, sommer og sjø. Den langstrakte kystlinjen med et titalls forskjellige badeplasser gir deg muligheten for avslappende dager i solen langs sjøkanten.
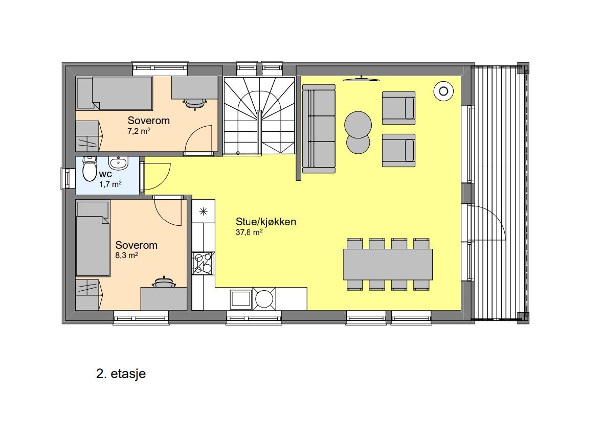
Økosmart 5 er et stilig hus i to etasjer som har et lite fotavtrykk, men likevel inneholder alt en familie trenger! I første etasje er to soverom, der et har utgang til uteplass. I andre etasje finner du et åpent stue- og kjøkkenområde som gir en luftig følelse, med store vinduer og utgang til overbygget balkong. WC og to soverom finnes også i andre etasje, og gjør huset komplett og effektivt.
Her er noe vi vil trekke frem som vi tror er viktig for en aktiv familie :
- 4 store soverom
- Praktisk vaskerom
- Stor utvendig bod
- Stor hall
- Stue / kjøkken på hele 37m2, med store vinduer
- Malt gips på vegger
- Plass til å bygge garasje på tomten
- Flislagte bad, med vegg hengte toaletter
- Utvidet elektrisk pakke, med varmekabler og 15 led downlights
Norheimshus er en del av Eventyrhytter AS, og har gjennom mer enn 20 år bygget hus og hytter over store deler av Norge. Norheimshus er ikke en del av en stor kjede, hos oss er hver kunde spesiell. Vi består av en gruppe lokale eiere og ansatte som elsker jobben vår, og jobber mot et felles mål om å ha fornøyde kunder hver gang. Hos oss er det skikkelig håndverk og høy kvalitet som gjelder, og våre hus er 100% norskproduserte på vår fabrikk i Modum. Her foregår alt; salg, tegning, søknad, produksjon og oppfølging helt fram til alt er klart. Alt på ett sted.
Vi tilbyr hus for enhver smak, enten du liker herskapelige, moderne eller tradisjonelle. Vår nye serie Økosmart passer for deg som er opptatt av smarte løsninger og at hjemmet skal være økonomisk og enkelt å drifte.
Ta kontakt med oss, så kan vi sammen se på mulighetene for å skape Deres nye drømme hjem, vi kan selvfølgelig tegne om og tilpasse huset, slik at det blir akkurat som Dere ønsker.
Finansiering kan vi også hjelpe Dere med, vi har samarbeid med banker som finansierer våre kunder.
Utvendige arbeider, som opparbeidelse av plen, hekker osv er ikke med i vår pris, men kan selvsagt leveres mot tillegg gjennom våre underleverandører. Jord til plen arealer leveres med.
Tomten leveres ferdig planert, og innkjøring / parkering / gangsti leveres ferdig gruset.
Nærområdet
Annonsene kan være mangelfulle i forhold til lovpålagt opplysningsplikt. Før bindende avtale inngås oppfordres interessenter til å innhente komplett informasjon fra meglerforetaket, selger eller utleier.




















