Bildegalleri

Huset vist på tomten
Drammen - Prosjektert bolig på stor og fin tomt i blindvei, grenser mot friareal
Moderne enebolig med attraktiv beliggenhet med 5 soverom, mulig med liten utleiedel
Prosjektets status
Planlegging
Utføres
Salgsstart
Oktober - 25
Byggestart
Ved kontrakt
Overtakelse
Ca 8 mnder etter kontrakt
Nøkkelinfo
- Pris
- Pris kommer
- Boligtype
- Enebolig
- Soverom
- 5
- Eieform
- Eier (Selveier)
Beskrivelse
Flott eiendom i attraktivt og barnevennlige boligområde på Austad / Galterud innerst i blindvei og grensende til stort friområde som er satt av til lek.
Boligen får en fin utsikt mot byen og innseilingen til Drammen. Tomten er på 992 kvm
Her har du sentrumsnær beliggenhet, samt skole/barnehage og marka med fin natur rett i nærheten. Tomten ligger fint til i et etablert boligområde på Austad med nærhet til sentrum og en rekke servicetilbud. Få minutters gange fra boligen er det adkomst til både dagligvare, barnehage og bussholdeplass. Med sentrumsnær beliggenhet, har du en rekke butikker i nærheten. Nærmeste dagligvarebutikkene er Kiwi og Coop Ekstra Austadveien.
Huset vi skal bygge er den nye hus modellen Astro, en moderne bolig som har alt en aktiv familie kan ønske seg.
Denne boligen leveres med 5 soverom som standard, men det er mulig mot tillegg å endre planløsningen slik at man også får en utleiedel. Da vil hoved delen ha 4 soverom, pluss utleiedel.
Huset leveres med veldig god standard, med alt som skal være i en ny moderne enebolig, med unntak av hvitevarer til kjøkkenet.
Kjøkken leveres her fra Designa, hvor Dere som kunde får anledning til å velge fra flere forskjellige fronter og benkeplater inkl i prisen.
Innvendige vegger leveres med malt gips, her er det selvsagt mulig å velge farge. På våtrom leveres det fliser på vegger. Flisene er av høy kvalitet, og leveres fra Fagflis. Det kan velges fra 3 farger som vi kjører som standard, eller så kan man velge andre fliser, da mot tillegg.
Bad / wc leveres med innredning fra Vikingbad. Her er det også mulig å endre layout på produktene mot tillegg. Vegg hengte wc er standard.
Det leveres med 15 led downlights og varmekabler under fliser som standard.
Astro er et stilig hus med et moderne uttrykk.
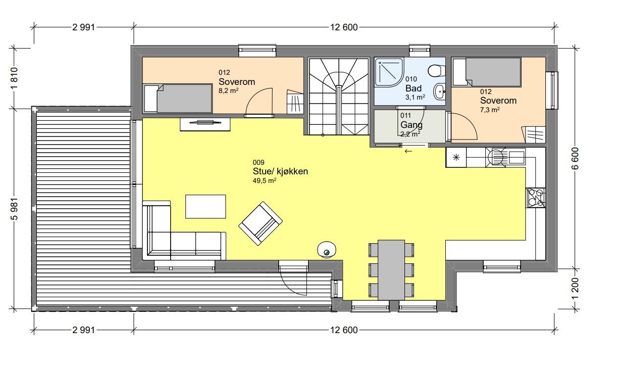
Huset er innholdsrikt med fire soverom i første etasje. i tillegg til romslig hall, bad, stor bod og teknisk rom.
I andre etasje er det et 5. soverom og wc, og et stort og flott stue- og kjøkken område som gir en åpen og luftig romfølelse.
Huset leveres nøkkelferdig fra oss, men uten hvitevarer.
Boligen har et areal på ca 157m2, og tomten ca 990m2.
Tomten er selveiet.
Her er noe vi vil trekke frem som vi tror er viktig for en aktiv familie :
- 5 soverom
- Mulighet for en utleiedel
- Vaskerom med egen inngang
- Flislagte våtrom
- Malt gips på vegger i oppholdsrom / soverom.
- Bad / toalett med vegg hengte toaletter
- Utvidet elektro pakke med 15 led downlights
- Bod under trapp kan velges som tillegg.
- Stor hall
- Stue / kjøkken på hele 58m2, med store vinduer
- Stor terrasse mot syd
- Plass til å bygge dobbel garasje på tomten
- Her kan Dere velge kjøkken fra Sigdal eller Designa
- Veldig barnevennlig beliggenhet
Norheimshus er en del av Eventyrhytter AS, og har gjennom mer enn 20 år bygget hus og hytter over store deler av Norge. Norheimshus er ikke en del av en stor kjede, hos oss er hver kunde spesiell. Vi består av en gruppe lokale eiere og ansatte som elsker jobben vår, og jobber mot et felles mål om å ha fornøyde kunder hver gang. Hos oss er det skikkelig håndverk og høy kvalitet som gjelder, og våre hus er 100% norskproduserte på vår fabrikk i Modum. Her foregår alt; salg, tegning, søknad, produksjon og oppfølging helt fram til alt er klart. Alt på ett sted.
Vi tilbyr hus for enhver smak, enten du liker herskapelige, moderne eller tradisjonelle. Vår nye serie Økosmart passer for deg som er opptatt av smarte løsninger og at hjemmet skal være økonomisk og enkelt å drifte.
Ta kontakt med oss, så kan vi sammen se på mulighetene for å skape Deres nye drømme hjem, vi kan selvfølgelig tegne om og tilpasse huset, slik at det blir akkurat som Dere ønsker.
Finansiering kan vi også hjelpe Dere med, vi har samarbeid med banker som finansierer våre kunder.
Tomten leveres ferdig planert, og innkjøring / parkering / gangsti leveres ferdig gruset.
Med forbehold om feil i annonsen.
Nyttige lenker
Nærområdet
Annonsene kan være mangelfulle i forhold til lovpålagt opplysningsplikt. Før bindende avtale inngås oppfordres interessenter til å innhente komplett informasjon fra meglerforetaket, selger eller utleier.











