Bildegalleri

I Bekkefaret 8 skal det oppføres to innholdsrike eneboliger over tre plan med dobbelgarasje og hage. Illustrasjon.
Bekkefaret 8F
To eneboliger under oppføring kommer for salg. Høy standard - 5 sov - 3 bad - Mulighet for hybel - Dobbelgarasje - Hage
Prosjektets status
Planlegging
Sommeren 2024
Salgsstart
September 2024
Byggestart
Høsten 2024
Overtakelse
Våren 2025
Nøkkelinfo
- Pris
- Pris kommer
- Boligtype
- Enebolig
- Soverom
- 5
- Eieform
- Eier (Selveier)
Beskrivelse
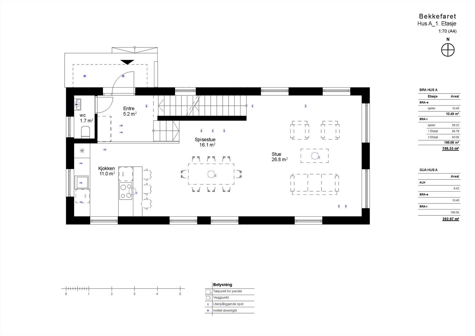
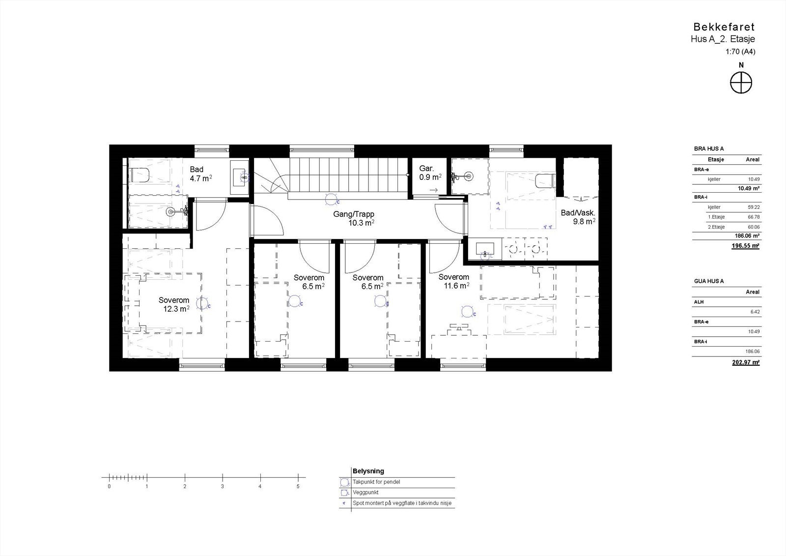
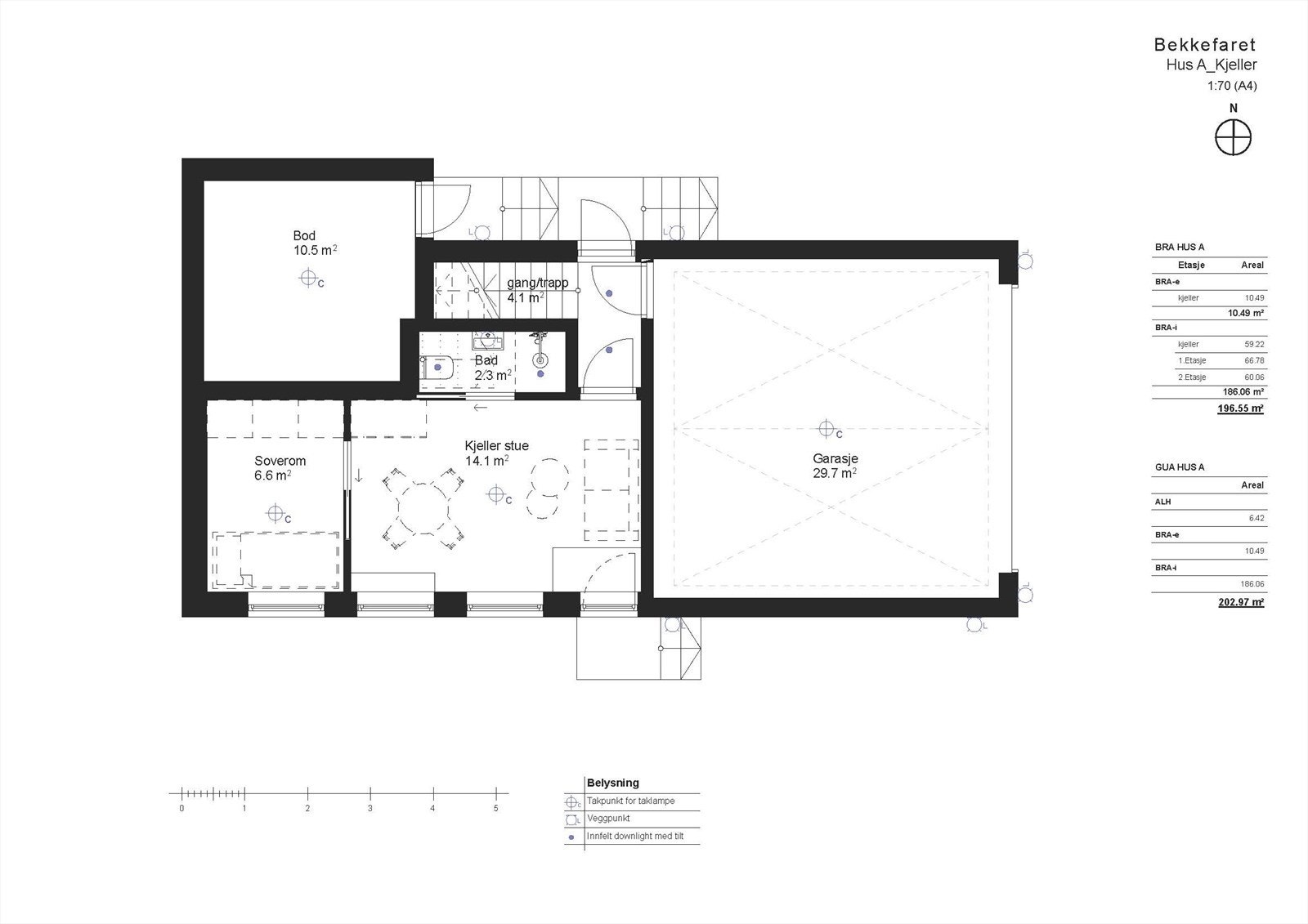
Om prosjektet
På Bestum skal det oppføres to nye eneboliger over tre plan med integrert dobbelgarasje. Husene har en hyggelig hage samt en god og innholdsrik planløsning som vil passe perfekt for barnefamilier. Husene har en meget barnevennlig og tilbaketrukket beliggenhet, samtidig sentrumsnært og med kort vei til "alt" av fasiliteter. Kort vei til Bestum barneskole, Øraker ungdomsskole og Ullern videregående skole, samt til flere barnehager. Fire minutters gange til trikk og buss, samt kort vei til T-bane på Åsjordet eller Ullernåsen.
Byggearbeidene på tomten er allerede i gang.
Det er utarbeidet et skreddersydd interiørkonsept for husene. Av kvaliteter kan vi nevne:
- Kjøkkeninnredning fra Poliform Alea med benkeplate i touchlaminat, leverert av eksklusive Expo Nova
- Vannbåren gulvvarme. 1-stavs eikeparkett og fliser fra Bella på bad, WC og entrè
- Baderomsinnredning fra Fossbad med speil fra House Doctor
- Belysningsplan av Expo Nova med Plejd smart-belysning
Ta kontakt med megler og meld interesse allerede i dag!
Garasje/parkering
Dobbel garasje i tilknytting til boligen.
Innvendig garasjebredde kan avvike fra tegning avhengig av valgt konstruksjonsmetodikk. Byggforsk anbefaler en indre garasjebredde på 5,6m for dobbelgarasje, men dette er ikke et spesifikt krav iht. TEK 17.
Innvendig garasjebredde for hus A: ca B 5.4m x D 5,4m (noe avvik kan forekomme)
Innvendig garasjebredde for hus B: ca B 5,9m x D 5,4m (noe avvik kan forekomme)
Det kan forekomme noe arealavvik på bakgrunn av detaljprosjektering fra salgstegninger til ferdig bygget hus, både på enkelte rom og det totale arealet. Arealer og planløsning kan i visse tilfeller måtte endres for å imøtekomme endelige krav.
Selger/entreprenør tar generelle forbehold om at illustrasjonsmateriell i prospekt og salgstegninger kan og vil avvike noe i forhold til virkelig utførelse, både utvendig og innvendig. Ved motstrid mellom tegninger, illustrasjoner og leveransebeskrivelse skal følgende gjelde:
1.Leveransebeskrivelse, med overflateskjema
2.Salgstegninger
3.Illustrasjoner.
Ansvarlig megler
Iga Okon
Nyttige lenker
Nærområdet
Sem & Johnsen
Annonseinformasjon
| FINN-kode | 357237764 |
|---|---|
| Sist endret | 06. sep. 2024 05:12 |
| Referanse | 21-24-5018 |
Annonsene kan være mangelfulle i forhold til lovpålagt opplysningsplikt. Før bindende avtale inngås oppfordres interessenter til å innhente komplett informasjon fra meglerforetaket, selger eller utleier.









