Boliger utenom det vanlige

VOKSEN/ VESTRE HOLMEN - 9 representative eierseksjoner med flott std. under oppføring. Kun 3 ledige! Bygging i gang! Store solrike verandaer/terrasser, garasje, peis, heis. 2 bad. Rolig og veletablert område.

Arnebråtveien 85, 0771 Oslo

Boligtype
Leilighet
Eieform
Eier (Selveier)

Fasiliteter

  • Balkong/terrasse
  • Peis/ildsted
  • Heis
  • Kabel-TV
  • Garasje/P-plass
  • Aircondition
  • Turterreng
  • Hage
  • Bredbåndstilknytning

Visning

  • Ta kontakt for å avtale visning

Arnebråtveien 85, 0771 Oslo

Stort kart Hybridkart Flyfoto

Kort om prosjektet

Med konseptet "Rom for Mer" gjør utbygger Bonum Arnebråten Hage til et boligprosjekt utenom det vanlige. Her får du muligheten til å bo i en eksklusiv leilighet med villakvaliteter. Rolig, tilbaketrukket beliggenhet med sørvestvendte terrasser/verandaer og stor eplehage mellom bygget og veien. Prosjektet bygges av KF Entreprenør. Planlagt ferdigstilt 2./3. kvartal 2018. Eiendommen vil bestå av 9 eierseksjoner + underjordisk garasjeanlegg.

Høydepunkter

- Flotte, påkostede og godt gjennomtenkte, eierseksjoner med villakvaliteter under oppføring
- Høy kvalitet på materialer, innredninger og utstyr
- Gode, moderne romløsninger
- Gode lysforhold
- Det skal opparbeides en stor og representativ felles hage med supre solforhold
- Alle enheter får store sørvestvendte terrasser/uteplasser
- Garasjeplass til hver leilighet, med heis til etasjeplan
- Gasspeis som standard
- Usjenert og rolig - bygget vil ligge godt tilbaketrukket fra veien
- Kort vei til skoler, barnehager og offentlig kommunikasjon
- Arealer fra 100 til 125 m2 (gjenstående leiligheter)
- 2 og 3 soverom
- Alle enheter vil få 2 baderom
- Vannbåren, sonebasert gulvvarme
- Bygget er tegnet av Goa Arkitektkontor som har sikret at det estetiske blender sømløst inn i det praktiske. Bygget vil oppføres med et eksklusivt preg både inne og ute.

Beliggenhet

Meget attraktiv og solrik eiendom beliggende i et veletablert og etterspurt boligområde mellom Voksen og Vestre Holmen, rett nedenfor Holmenkollen. Leilighetene vil ligge godt tilbaketrukket fra veien og det skal opparbeides en stor og brukervennlig hage.

Kort gangavstand til en rekke aktivitetstilbud for barn og voksne, som idrettshall og fotballbane på Voksen, Bogstad golfbane, Holmenkollen Tennis, Gressbanen (Ready), mm. Ellers tilbyr området et godt utvalg av barnehager og skoler, som Voksen skole (barneskole rett borte i veien, en av Osloskolene med størst og best uteområde), Hovseter skole (ungdomsskole), Steinerskolen (1-12 klasse) og Persbråten vgs. (samt Bogstad skole, barneskole). Eiendommen sogner til Voksen. Det er også flere barnehager i nærområdet. Kragskogen Barnehage ligger kun 0,1 km unna og har barn i alder 1-6 år fordelt på 4 avdelinger. Barnas Barnehage ligger 0,2 km unna og har barn fra 10 mnd til 6 år. Barnehagen har flotte friarealer i nærområdet, samt et fokus på natur og uteliv. Kattugla Steinerbarnehage ligger også kun 0,2 km unna og har barn i alder 1-6 år. Barnehagen er fra 2008 og har fine opparbeide inne- og utearealer. For øvrig er det flere private og offentlige barnehager i området.

Området har god offentlig kommunikasjon med buss 45 og 46 og T-bane, linje 2, hvorav nærmeste holdeplass er Jarbakken. Det er ca. 5 minutters gange til Holmen T-banestasjon. Ellers tar det ca. 7 min med bil til Majorstuen og ca. 10 min med bil til Nationaltheatret/ sentrum.

Gode tur- og rekreasjonsområder sommer som vinter ved Bogstad Golfbane, Bogstadvannet med mulighet for bading om sommeren og ski/skøyter om vinteren, Holmendammen med fiskemuligheter og ikke minst i Nordmarka. Kun ca. 5 min med bil til Holmenkollen Nasjonalanlegg, eller ca. 12 min til Tryvann skisenter.

Flere nærbutikker i gangavstand fra eiendommen, som Rema 1000 i krysset Stasjonsveien/ Lybekkveien og Rema 1000 i Arnebråtveien. Søndagsåpen nærbutikk i området. Kort vei til Røa senter med rikt utvalg av servicetilbud bl.a. stor dagligvare med ferskvaredisk, vinmonopol, meget god sushirestaurant, kaféer, post, bank, forretninger, apotek, mm. Diverse servicetilbud også på Holmen, Vinderen og Slemdal.

Innhold

Prosjektet "Arnebråten Hage" omfatter 9 selveierleiligheter med heis og garasjekjeller. 5 leiligheter er pt. solgt.

Bygget blir over 3 plan. 1.etg omfatter 4 leiligheter, hvorav de to midtleilighetene er over 2 plan. I 2.etg. finner du 2 hjørneleiligheter. 3 etg. omfatter 2 hjørneleiligheter og en frontleilighet.

1. etasje:
Leilighet 1 - 115,2 kvm. Inneholder: Entré/ gang med plass til garderobe, stor hjørnestue med åpen kjøkkenløsning og utgang sørvestvendt terrasse/platting på ca. 22 kvm., bad/wc, soverom og hovedsoverom med walk-in garderobe og eget bad/wc.
Leilighet 2 - SOLGT
Leilighet 3 - 2 plans leilighet - 125,5 kvm. Inneholder: 1.etg.: Entré med plass til garderobe, gjeste-wc, stor stue med åpen kjøkkenløsning og utgang sørvestvendt terrasse/ platting på ca. 17 kvm. + 2.etg.: Gang, bad/wc, 2 soverom, hovedsoverom med walk-in garderobe og eget bad/wc. Åpen, moderne trapp ned gir rom og lys.
Leilighet 4 - SOLGT

2. etasje:
Leilighet 5 - SOLGT
Leilighet 6 - SOLGT

3. etasje:
Leilighet 7 - SOLGT
Leilighet 8 - SOLGT
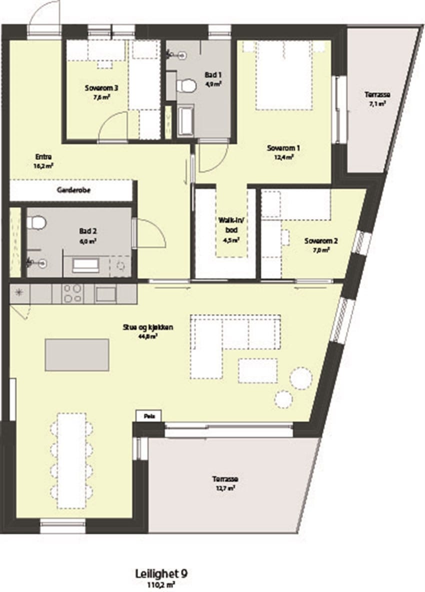
Leilighet 9 - 110,2 kvm. Inneholder: Entré/ gang med plass til garderobe, stor hjørnestue med åpen kjøkkenløsning og utgang stor sørvestvendt veranda på ca. 13 kvm., bad/wc, 2 soverom, hovedsoverom med walk-in garderobe, eget bad/wc og utgang sørøstvendt veranda på ca. 7 kvm.

Standard

Boligene leveres med et tidsriktig og gjennomført avstemt material- og utstyrsvalg, samt gode, tidsmessige romløsninger. Det er lagt vekt på mest mulig funksjonalitet, godt lysinnslipp og påkostet både innvendig og utvendig ifht. normal (gjennomsnittlig) nybyggstandard. Boligene er møysommelig tilpasset den moderne bruker eller den moderne familie. Alle leiligheter leveres med minst 2 bad/wc, egen masteravdeling, vannbåren gulvvarme, stor terrasse-/verandaplass, gasspeis, god garderobe- og lagringsplass, samt med høy standard på overflater og innredninger. Hele bygget er utvendig kledd med Wienerberger tegl med eik omramminger, beslag og nedløp i moderne kobber. Verandaer og terrasser med Kebony gulv og rekkverk i stål.

Gulv: Pergo 1-stavs fjordeikgulv, store, italienske fliser i våtrom. Vannbåren gulvvarme med termostat for de ulike soner.
Kjøkken: Sigdal kjøkken, type Horisont, med eksklusiv benkeplate fra S.Sigvartsen med underlimt Blanco kum. Steinindustri (Ceasarstone Piatra Grey) og integrerte hvitevarer fra Miele og Siemens.
Bad: Innredning fra den svenske kvalitetsleverandøren Ballingslöv, blandebatterier/dusjer fra svenskeTapwell og vegghengte wc-er fra fransktyske Villeroy & Boch. Flotte, italienske 60/60 fliser fra Ergon. Varmekabler.
Peis: Gasspeis fra Peisselskapet (mulighet for tilkobling av gassgrill på terrasse som tilvalg)
Himlinger: Glatte, hvite himlinger stedvis med downlights (se leveransebeskrivelse)
Vegger: Glatte, grå vegger
Listverk: Høye gulvlister (se leveransebeskrivelse)
Bod: Ca. 6 kvm bodplass i kjeller til hver enhet

For utfyllende informasjon vises det til prospekt med leveransebeskrivelse og romskjema. NB: Illustrasjoner/ rendere kan avvike fra leveransebeskrivelsen og er ment som inspirasjon. Illustrasjoner/ rendere kan være vist med tilvalg. Leveransebeskrivelsen må leses før bud inngis.

Byggemåte

Arkitektens egne ord: "For å gi bygget gode proporsjoner er bygningsvolumet inndelt i en forholdsvis streng rytme som brytes opp av varierende fallretning på tak, inntrukne terrasser og vindusplassering i fasaden. Det har vært viktig å få implementert solide og holdbare materialer både utvendig og innvendig i bygget. Fasaden vil være kledd i teglstein, og den homogene overflaten vil således forsterke den dynamiske formen. Dører, vinduer og utvendig foring utføres i eik slik at fasadeåpninger vil fremstå som innrammede opphold av glass og tre i teglsteinsveggen. Beslag og nedløp vil utføres i kobber, som da vil skifte farge med tiden."

Blokken bygges med vertikale og horisontale leilighetskiller i betong, med enkelte bæresøyler i stål. Yttervegger bygges med isolert stenderverk i tre, med utvendig og innvendig gips. Utvendig fasade vil bestå av teglstein. Innvendige vegger bygges hovedsakelig av stålprofiler og gipsplater.

Bebyggelse

Bebyggelsen følger terrenget med tre synlige etasjer mot sør, og to synlige etasjer mot nord. Leilighetsbygget utføres i teglsten. Ellers hovedsakelig småhus og villabebyggelse i nærområdet.

Tomt

Det skal opparbeides en stor og brukervennlig hage mellom det sørvendte bygget og veien. Bygget blir godt tilbaketrukket fra veien. Det er meget gode solforhold på eiendommen. Planen er en romslig og barnevennlig hage/ fellesareal som skal prege sameiet/ prosjektet. Flere av de eksisterende epletrærne på tomten vil bevares. Gangarealer blir i børstet betong og asfalt i vei/nedkjøring/rampe.

Bodplass / Parkering

Det er lagt opp til ca. 8 kvm bodplass og 1 stk. garasjeplass pr enhet. Heis opp fra garasjeplanet.
I tillegg 1 p-plass avsatt til gjester samt 1 stk HC-plass.
El-bil lading vil være tilgjengelig som et tilvalg.

Oppvarming

Vannbåren varme.
Gasspeis.
Varmekabler på bad.

Sameiet

Selv om sameiet ikke er større enn ni seksjoner, er det allerede tatt høyde for tjenester som vaktmester til trappevask, snømåking og hagearbeid. Advokat besørger forretningsførsel.

Leiligheten - seksjonene - vil bli del av sameiet Arnebråten Hage. Sameiet vil bestå av 9 seksjoner, og reguleres av vedlagte vedtekter. Med mindre annet er opplyst må kjøper påregne felles plikter som dugnad etc. Megler oppfordrer alle til å sette seg inn i vedtekter, husordensregler, regnskap, budsjett og årsberetning som ligger vedlagt prospektet.

Det opplyses om at ingen kan erverve mer enn to boligseksjoner i et og samme boligsameie jmf lov om eierseksjoner §22

Betalingsbetingelser

10 % innbetales så snart fullførelsesgaranti iht Bufl §12 er stillet overfor kjøper samt rammetillatelse foreligger. Resterende beløp + omkostninger forfaller før ferdigstillelse/overtakelse til oppgjørsmeglers klientkonto. Alle beløp betales til meglers klientkonto.

Matrikkelinformasjon

Kommunenr: 301
Gårdsnr: 27
Bruksnr: 792

Rapporter annonse

FINN-kode
101986395
Sist endret
4. des 2018 17:10
Referanse
3179004

Annonsene kan være mangelfulle i forhold til lovpålagt opplysningsplikt. Før bindende avtale inngås oppfordres interessenter til å innhente komplett informasjon fra meglerforetaket, selger eller utleier.

Boliger utenom det vanlige

Visning

  • Ta kontakt for å avtale visning

Arnebråtveien 85, 0771 Oslo

Stort kart Hybridkart Flyfoto

Rapporter annonse

FINN-kode
101986395
Sist endret
4. des 2018 17:10
Referanse
3179004

Annonsene kan være mangelfulle i forhold til lovpålagt opplysningsplikt. Før bindende avtale inngås oppfordres interessenter til å innhente komplett informasjon fra meglerforetaket, selger eller utleier.