Bildegalleri

Stavanger. Splitter ny 2 roms møblert leilighet i 6. etasje med balkong og sjøutsikt
- Månedsleie
- 17 500,–
- Depositum
- 54 000,–
Nøkkelinfo
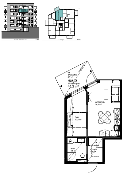
- Internt bruksareal
- 40 m² (BRA-i)
- Boligtype
- Leilighet
- Soverom
- 1
- Etasje
- 6.
- Leieperiode
- 01.05.2026
Fasiliteter
Beskrivelse
Velkommen til ny leilighet i Byfjordparken nær Stavanger sentrum.
Innflytningsklar 1.mai.
Kort vei til Stavanger sentrum.
Kollektivtransport like i nærheten.
Møblert med 150 cm seng, garderobeskap på soverom og entre, sofa, salongbord, spisebord med 4 stoler, TV benk.
Store vindusflater som gir rikelig med naturlig lys inn i leiligheten.
Fantastisk utsikt mot Byfjorden.
Vannbåren varme. (Dekkes av leietaker).
Balansert ventilasjon.
Stilrent kjøkken med integrert hvitevarer.
Vaskemaskin.
Bod:
Mulighet for leie av bod i felles garasjeanlegg Kr. 300,- pr. mnd.
Visning
Hybel.no
Nyttige lenker
Nærområdet
Annonseinformasjon
| FINN-kode | 453437479 |
|---|---|
| Sist endret | 02. mars 2026 13:26 |
| Referanse | leilighet-2-roms-byfjordparken-2-stavanger |
Annonsene kan være mangelfulle i forhold til lovpålagt opplysningsplikt. Før bindende avtale inngås oppfordres interessenter til å innhente komplett informasjon fra meglerforetaket, selger eller utleier.




