Bildegalleri

Store vinduer for lys innslipp
*LEDIG NÅ*LØRENSKOG STASJON v/SNØ-2 ROMS-LYS&LEKKER+ BALKONG- T: 92892877
- Månedsleie
- 14 900 kr
- Depositum
- 45 000 kr
Nøkkelinfo
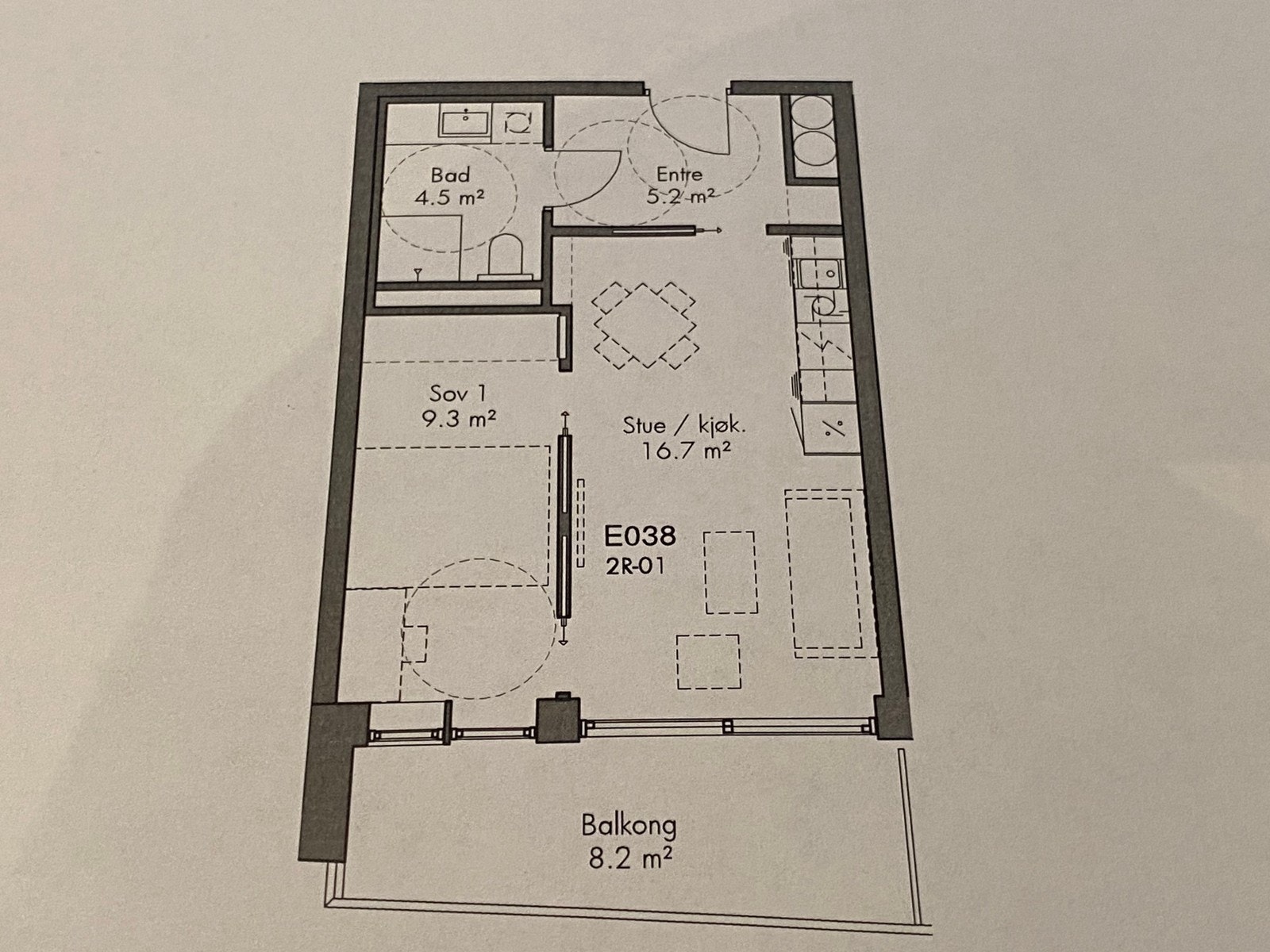
- Primærrom
- 40 m²
- Boligtype
- Leilighet
- Soverom
- 1
- Leieperiode
- 01.04.2026 - 31.03.2029
- Bruttoareal
- 40 m²
Fasiliteter
Beskrivelse
* KLAR TIL INNFLYTNING NÅ ELLER ETTER AVTALE. GRENSER TIL OSLO.
* MODERNE LEILIGHET FRA 2021 LEILIGHET MED BRA STANDARD I 2.ETG LØRENSKOG STASJONSBY
* INNFLYTNINGSKLAR LEILIGHET PASSER PAR/STUDENTER/PENDLER M.M.
* STILLE OG ROLIG STRØK MED OFFENTLIG KOMMUNIKASJON 250 MTR. LØRENSKOG STASJON
* LEIES UT DELVIS MØBLERT MED ALLE HVITEVARER
* KAN LEIES FOR KORT/LANGTID ETTER AVTALE
* ALLE HVITEVARER FØLGER MED
* GARDEROBESKAP PÅ SOVEROM OG GANGEN FØLGER MED
* LAMELL GARDINER PÅ VINDUER FØLGER MED
* KAN MØBLERES MOT TILLEGG I PRISEN
2 ROMS LEILIGHET FRA 2021 - LØRENSKOG STASJONSBY (GRENSER TIL OSLO). LEILIGHETEN LEIES UT MED ALLE HVITEVARER.
VARMT VANN OG FYRING belastes separat etter forbruk.
VISNING ETTER AVTALE.
Visning

3S Eiendoms Invest AS
Nærområdet
Annonseinformasjon
| FINN-kode | 453007598 |
|---|---|
| Sist endret | 27. feb. 2026 17:28 |
| Referanse | SNØLIA. 5 |
Annonsene kan være mangelfulle i forhold til lovpålagt opplysningsplikt. Før bindende avtale inngås oppfordres interessenter til å innhente komplett informasjon fra meglerforetaket, selger eller utleier.












