Bildegalleri

Velkommen til Amtmannssvingen 14!
RANHEIM/OLDERDALEN| Pen og romslig 2-romsleilighet med parkeringsplass- Skjermet beliggenhet - Ledig fra 1.Mai
- Månedsleie
- 11 500 kr
Nøkkelinfo
- Internt bruksareal
- 38 m² (BRA-i)
- Bruksareal
- 38 m²
- Boligtype
- Leilighet
- Soverom
- 1
- Leieperiode
- 01.05.2026 - 30.04.2029
- Energimerking
- F
Fasiliteter
Beskrivelse
Innhold
Velkommen til Amtmannssvingen 14!
Her får du en pen og romslig 2-romsleilighet med attraktiv og skjermet beliggenhet i Olderdalen. Perfekt for enslig eller par. Leiligheten ligger i et nabolag med rolige omgivelser og lite gjennomgangstrafikk.
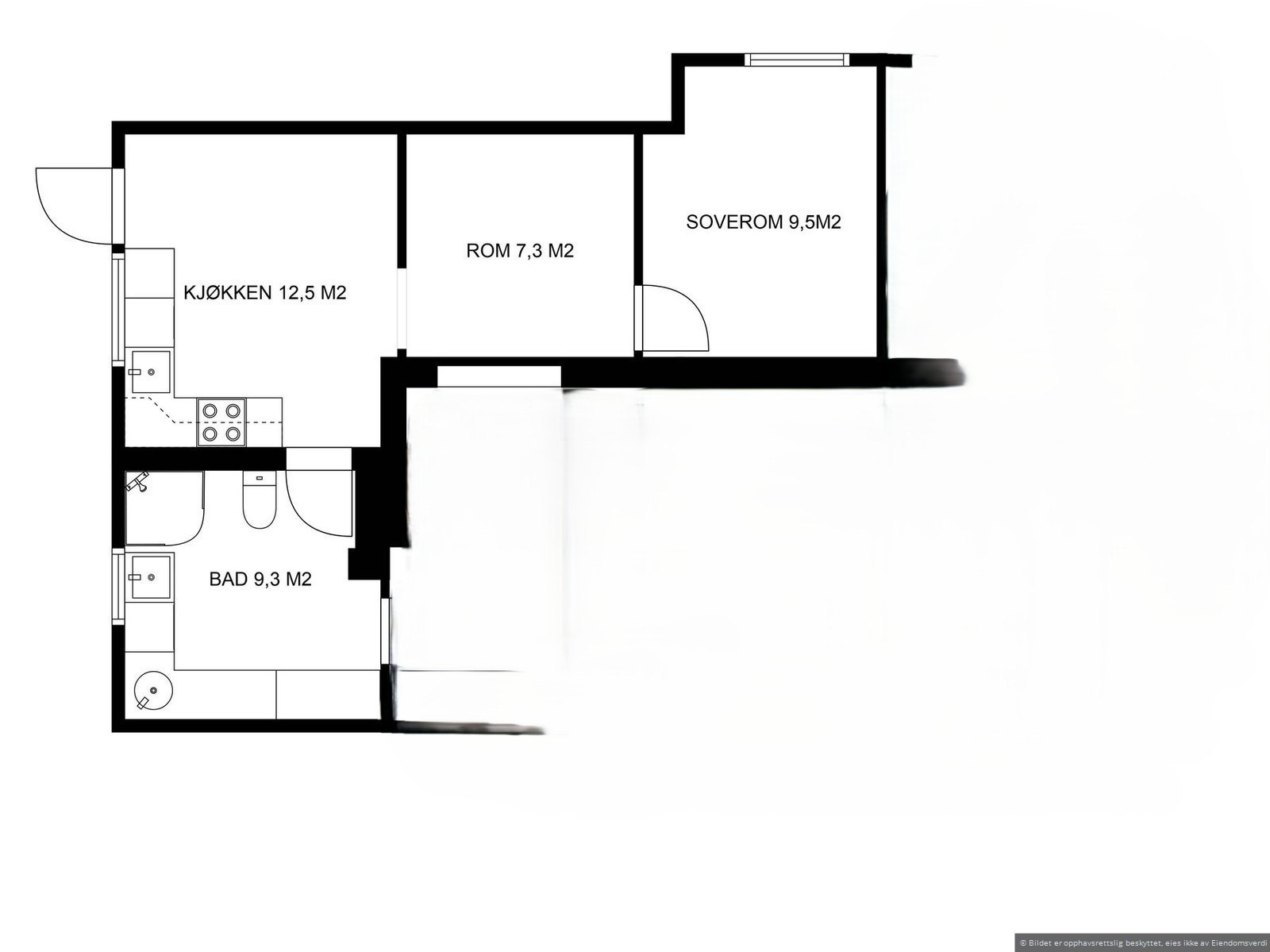
Leiligheten består av kjøkken i delvis åpen løsning med stue, soverom, bad/vaskerom, og oppstillingsplass til bil rett utenfor.
Kan males etter avtale.
Kvaliteter ved boligen
- Praktisk planløsning med god plass i alle rom
- Store vindusflater som gir rikelig med naturlig lysinnslipp.
- Parkeringsplass rett utenfor døren
- Ca 10 minutters kjøring til sentrum, gå-sykkelavstand til Grilstad og kort vei til Estenstadmarka.
Er du interessert? Fyll ut interesseskjemaet på annonsen så kontakter vi deg :)
Velkommen til en hyggelig visning!
Leieboerforsikring – En enklere måte å leie bolig på!
Med Leieboerforsikring levert av If kan du flytte rett inn i ny bolig uten å tenke på hverken depositum eller innboforsikring.
Fordeler med Leieboerforsikring:
-Du slipper å innbetale depositum
-Innboforsikring som gjelder for alle som bor i boligen
-Unik uhellsdekning
-Månedlig betaling
Leieboerforsikring leveres av If Skadeforsikring. Ved mislighold av leiekontrakt vil leietaker holdes økonomisk ansvarlig av If for utleiers tap, på lik linje som ved en depositumskonto. Leieboerforsikring koster 2,6% (min. 300 kr, maks. 700 kr) av leieprisen, og legges til månedsleien.
Beliggenhet
Olderdalen er et attraktivt boligområde øst i Trondheim i utvikling. Her er det muligheter for å nyte stillheten, samtidig som at det kun er 10 minutter med bil til sentrum og 20 min til Værnes. Det er ikke gjennomgangstrafikk i området, noe som gjør at det er trygge omgivelser for barn, og området har derfor blitt særdeles attraktivt for barnefamilier. Området sokner i dag til Jakobsli barneskole (gamle Ranheim skole) og Markaplassen ungdomsskole. Det er flere barnehager i området, samt dagligvarebutikker, legesenter, offentlig kommunikasjon og Ranheim idrettspark ligger innenfor gangavstand. Gangavstand også til Ranheim stasjon.
I Olderdalen har man tilgang til flere fine turstier rett utenfor døren, det er også kort avstand opp til Strindamarka hvor det er turterreng både sommer og vinter. Ønsker man heller å oppsøke havet er det ikke langt ned til Ranheimsfjæra, Hansbakkfjæra og Væresbukta. Fra Grilstadfjæra kan man gå langs Ladestien, som er et av de mest populære utfartsområdene i Trondheim. I tillegg til turområder er det også kort avstand til lekeplasser, Impulse treningssenter, Ranheim Friidrettshall m.m. I gangavstand ligger også Grilstad Marina som byr på flotte opparbeidete områder med sittegrupper, lekeplasser, utegriller og sandvolleyballbane. I takt med utbyggingen vil det bli badestrand og restaurant på marinaen.
Adkomst
Se kart i annonse!
Eiendommens rom
Indre rom:
Kjøkken, stue/rom ved kjøkken, soverom, bad/vaskeorm
Standard
Kjøkken:
Det er mdf panel i himling, malte plater på vegg og laminatparkett.
Innredningen har slette fronter, benkeplate er laminat.
Stue/Rom ved kjøkken:
Det er mdf panel i himling, panel på vegg og laminatparkett på gulvet.
Soverom:
Panel i himling, malte plater på vegg og teppeflis på gulvet.
Bad/vaskerom:
Mdf panel i himling, flislagte vegger og flislagt gulv. Montert utstyr er gulvmontert toalett, dusjkabinett innredning med nedfelt skyllekum og servant.
Inventar
Boligen leies ut umøblert.
Frittstående hvitevarer: kjøleskap, komfyr, vaskemaskin, oppvaskmaskin.
Frittstående hvitevarer medfølger så lenge de virker, reparasjon/bytte inngår ikke i leieavtalen.
Fasiliteter
Boligen ligger sentralt til og er rolig og moderne.
Parkering
Parkering på biloppstillingsplass.
Eierforhold
Fast eiendom
Oppvarming
Boligen oppvarmes med elektrisitet.
Energimerking
Boligen har energikarakter F
Boligens energiattest, med oppvarmingskarakter, er tilgjengelig hos megler og utleveres ved forespørsel.
Husleie
Kr. 11 500 pr. måned. Strøm, varmtvann, vann og avløpsutgifter og parkering er inkludert i leien.
Utleiers krav til sikkerhet
Som sikkerhet i dette leieforholdet kan leietaker velge å kjøpe leieboerforsikring levert av IF eller opprette depositumskonto i SpareBank 1 SMN.
Sikkerhetsbeløpet for forsikring og depositum er fra 3 måneders husleie.
Velges leieboerforsikring fra IF er kostnaden 2,6% av løpende månedsleie, minimum kr 300,- og maksimalt beløp kr 700,- pr mnd. Forsikringspremien er en del av leien, og betales ved forfallstidspunktet for husleien. If vil kreve regress fra leietaker ved leietakers mislighold som medfører utbetaling fra forsikringen.
Ta kontakt med megler i Utleiemegleren for å finne ut om du tilfredsstiller vilkårene for å tegne leieboerforsikring levert av IF.
Leietiden og partenes oppsigelsesadgang
Overtakelse: 01.05.2026
Leietid: 01.05.2026 - 30.04.2029
Oppsigelsestiden i dette leieforholdet er 3 måneder for begge parter.
Leieforholdet har en bindingstid frem til 31.01.2027, og dette er første mulige tidspunkt en oppsigelse kan ha virkning fra. Sies leieforholdet opp innen denne dato vil leieforholdet ha en minste leietid frem til 30.04.2027.
Oppsigelser levert etter utløp av bindingstiden den 31.01.2027 vil ha virkning den første dag i den påfølgende måneden etter at oppsigelsen er mottatt.
Tidligste opphør av leiekontrakten ved oppsigelse forutsetter at leiekontrakten starter på det tidspunktet som er nevnt ovenfor.
Prospekt
Denne annonsen gir ikke komplett informasjon om boligen, og interessenter oppfordres til å lese prospektet.
Kontraktsinngåelse
Etter kontraktsinngåelse forfaller en måneds husleie til betaling.
Visning
Meld interesse via vårt digitale interessentskjema.
Kontaktperson
Frida Hjortdahl Åkerøy
Saksnummer
65911/0119-26
Matrikkelinformasjon
Visning
Utleiemegleren Trondheim
Nyttige lenker
Nærområdet
Annonsene kan være mangelfulle i forhold til lovpålagt opplysningsplikt. Før bindende avtale inngås oppfordres interessenter til å innhente komplett informasjon fra meglerforetaket, selger eller utleier.











