Bildegalleri

Stue med peis, hens og varme i gulv.
VÅLERENGA- Koselig 2-roms med hems- uteplass- Fin bakgård- Kort vei til butikk og buss! Innflytting etter avtale!
- Månedsleie
- 14 000 kr
Nøkkelinfo
- Internt bruksareal
- 49 m² (BRA-i)
- Bruksareal
- 49 m²
- Boligtype
- Hybel
- Soverom
- 1
- Etasje
- 1.
- Leieperiode
- 01.04.2026 - 31.03.2028
- Energimerking
- G
Fasiliteter
Beskrivelse
Innhold
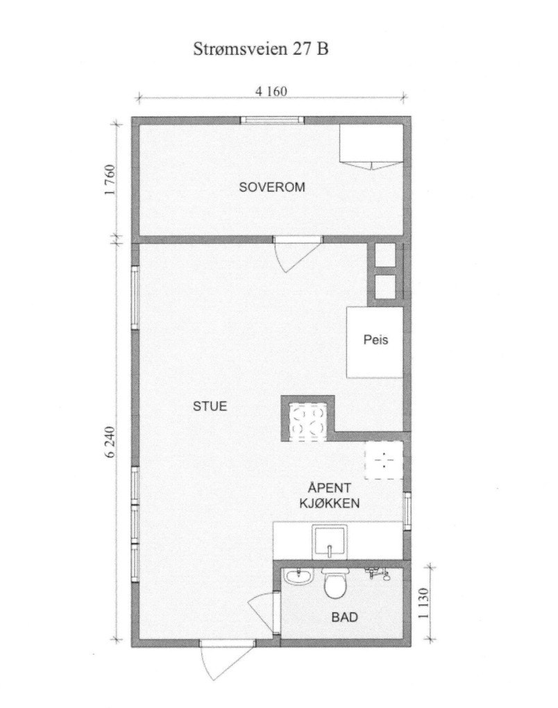
Leiligheten ligger i første etg med stuevindu ut mot felles bakgård. Ingen beboere over eller ved siden av.
Fliser på gulv med varmekabler. Peis i stue. Hems for lagring. Eget soverom og delvis åpent kjøkken med hvitevarer. Flislagt bad med varme i gulv.
Kort om eiendommen
* Beliggende i sjarmerende trehus på Vålerenga
* 1 soverom
* Bad
* Sjarmerende og koselig bakgård for beboerne
* Meget sentral og populær beliggenhet
Leieboerforsikring – En enklere måte å leie bolig på!
Med Leieboerforsikring levert av If kan du flytte rett inn i ny bolig uten å tenke på hverken depositum eller innboforsikring.
Fordeler med Leieboerforsikring:
-Du slipper å innbetale depositum
-Innboforsikring som gjelder for alle som bor i boligen
-Unik uhellsdekning
-Månedlig betaling
Leieboerforsikring leveres av If Skadeforsikring. Ved mislighold av leiekontrakt vil leietaker holdes økonomisk ansvarlig av If for utleiers tap, på lik linje som ved en depositumskonto. Leieboerforsikring koster 2,6% (min. 300 kr, maks. 700 kr) av leieprisen, og legges til månedsleien.
Beliggenhet
Leiligheten ligger rolig til i koselig i rolig gate. Busstopp rett utenfor døren i Strømsveien, med 37 bussen som går døgnet rundt, ellers også flere bussavganger ut av Oslo. Ca. 5 minutter til Ensjø T-banestasjon hvor flere av t-banens linjer passerer. Flere butikker, kaféer og spisesteder i nærheten og flotte grøntområder på Kampen og Vålerenga. Gode turmuligheter langs Alnaelva i nærområdet.
Alt i nærheten for stpre og små! Velkommen til visning:)
Eiendommens rom
Indre rom:
1.etg: Entré, bad, stue, kjøkken og soverom
Ytre rom:
Ingen bod følger
Standard
Gulv: Fliser.
Vegger: Malt mur og fliser.
Kjøkken: Profilerte fronger, benkeplate. opplegg for vaskemaskin, egen komfyrplass, lagringsplass i skap.
Bad: Flislagt bad med dusj, toalett og servant. Varme i gulv.
Parkering
Parkering i gate etter gjeldende bestemmelser.
Eierforhold
Fast eiendom
Energimerking
Boligen har energikarakter G
Boligens energiattest, med oppvarmingskarakter, er tilgjengelig hos megler og utleveres ved forespørsel.
Egne abonnementer
Leietaker tegner eget abonnement for strøm.
Husleie
Kr. 14 000 pr. måned.
Utleiers krav til sikkerhet
Som sikkerhet i dette leieforholdet kan leietaker velge å kjøpe leieboerforsikring levert av IF eller opprette depositumskonto i SpareBank 1 SMN.
Sikkerhetsbeløpet for forsikring og depositum er fra 3 måneders husleie.
Velges leieboerforsikring fra IF er kostnaden 2,6% av løpende månedsleie, minimum kr 300,- og maksimalt beløp kr 700,- pr mnd. Forsikringspremien er en del av leien, og betales ved forfallstidspunktet for husleien. If vil kreve regress fra leietaker ved leietakers mislighold som medfører utbetaling fra forsikringen.
Ta kontakt med megler i Utleiemegleren for å finne ut om du tilfredsstiller vilkårene for å tegne leieboerforsikring levert av IF.
Leietiden og partenes oppsigelsesadgang
Overtakelse: 01.04.2026
Leietid: 01.04.2026 - 31.03.2028
Leietiden fraviker fra husleielovens § 9-3 fordi:
Husrommet skal brukes som bolig av utleieren selv eller noen som hører til husstanden.
Boligen skal brukes av Salg etter endt leieperiode.
Oppsigelsestiden i dette leieforholdet er 3 måneder for begge parter.
Leieforholdet har en bindingstid frem til 31.12.2026, og dette er første mulige tidspunkt en oppsigelse kan ha virkning fra. Sies leieforholdet opp innen denne dato vil leieforholdet ha en minste leietid frem til 31.03.2027.
Oppsigelser levert etter utløp av bindingstiden den 31.12.2026 vil ha virkning den første dag i den påfølgende måneden etter at oppsigelsen er mottatt.
Tidligste opphør av leiekontrakten ved oppsigelse forutsetter at leiekontrakten starter på det tidspunktet som er nevnt ovenfor.
Prospekt
Denne annonsen gir ikke komplett informasjon om boligen, og interessenter oppfordres til å lese prospektet.
Kontraktsinngåelse
Etter kontraktsinngåelse forfaller en måneds husleie til betaling.
Visning
Meld interesse via vårt digitale interessentskjema.
Kontaktperson
André Zimmer
Saksnummer
52799/0114-26
Matrikkelinformasjon
Visning
Utleiemegleren Frogner
Nyttige lenker
Nærområdet
Annonsene kan være mangelfulle i forhold til lovpålagt opplysningsplikt. Før bindende avtale inngås oppfordres interessenter til å innhente komplett informasjon fra meglerforetaket, selger eller utleier.










