Bildegalleri

Kombinert stue og kjøkken
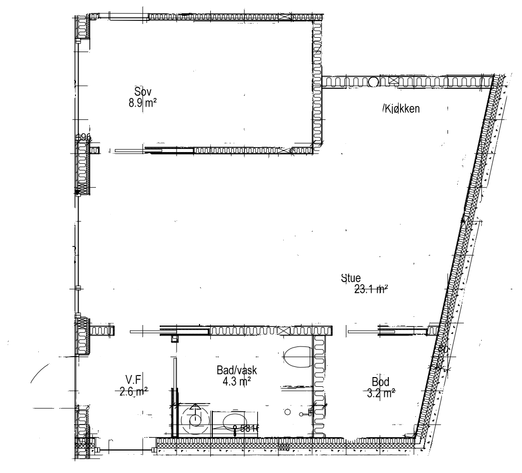
2 roms hybelleilighet i nybygg
- Månedsleie
- 16 000,–
- Depositum
- 48 000,–
Nøkkelinfo
- Internt bruksareal
- 45 m² (BRA-i)
- Boligtype
- Hybel
- Soverom
- 1
- Etasje
- 1.
- Leieperiode
- 15.05.2026
Fasiliteter
Beskrivelse
Vi leier ut en del av huset vårt. Leiligheten er fra 2023. 2 roms hybelleilighet med egen inngang til langtidsleie.
Leiligheten består av fin stue på 23 kvadrat med åpen kjøkkenløsning med hvitevarer (induksjonstopp, komfyr, stekeovn, oppvaskmaskin).
Fint soverom med plass til dobbeltseng og skap/kommoder. Bad med høy standard, inkludert vaskemaskin og tørketrommel.
Liten entre med plass til sko og jakker. Praktisk og stor walk-in bod med store Ikea Pax skap.
Store vinduer i stue og soverom som sørger for godt med lys.
Varmekabler i alle rom (som kan styres romvis).
Lydisolering mot resten av huset.
Leies ut delvis møblert med kjøkken og hvitevarer.
Strøm og internet inkludert.
Ligger i et rolig strøk i med kort vei til shopping på CC vest, trikk og buss (5 min). Lysaker stasjon ligger 10 min unna. Beboerparkering på gaten utenfor (gratis).
Egner seg for par eller enslige. Dyr og røyking ikke tillatt.
Interesserte bes sende melding med litt info om seg selv.
Visning
Hybel.no
Nyttige lenker
Nærområdet
Annonseinformasjon
| FINN-kode | 451428125 |
|---|---|
| Sist endret | 16. feb. 2026 19:54 |
| Referanse | hybel-2-roms-sollerudveien-19h-oslo |
Annonsene kan være mangelfulle i forhold til lovpålagt opplysningsplikt. Før bindende avtale inngås oppfordres interessenter til å innhente komplett informasjon fra meglerforetaket, selger eller utleier.










