Bildegalleri

Velkommen til Rolvsrud Arena. OBS: Bildene avviker fra leilighetene, men viser standarden.
LØRENSKOG: Nye 3-roms leiligheter tilgjengelig. Ny i 2025. Balkong. Hvitevarer og internett ink. VV og fyring a-konto.
- Månedsleie
- 19 500 kr
Nøkkelinfo
- Internt bruksareal
- 64 m² (BRA-i)
- Bruksareal
- 69 m²
- Eksternt bruksareal
- 5 m² (BRA-e)
- Balkong/Terrasse
- 11 m² (TBA)
- Boligtype
- Leilighet
- Soverom
- 2
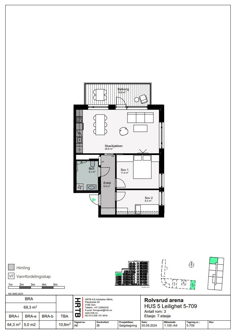
- Etasje
- 7.
- Leieperiode
- 01.04.2026 - 31.03.2029
- Energimerking
- C
Fasiliteter
Beskrivelse
Innhold
Velkommen til Rolsvrud Arena. Her får du muligheten til å flytte inn i splitter nye og ubebodde leiligheter.
Alle leilighetene har gjennomgående stue/kjøkken-løsning, 2 soverom, lekkert bad, vannbåren varme og entré med god oppbevaringsplass. Stilfulle kjøkken fra HTH med moderne fronter i sort trelook og matchende håndtak. Kjøkken kommer fullt utstyrt med integrerte hvitevarer som induksjonstopp, stekeovn, oppvaskmaskin og kombiskap.
Inkludert i leien får du også internett, samt varmtvann og fyring på a-konto.
Mulighet for å leie garasjeplass til kr 1 500,- pr. måned.
Det er mulig å overta leilighet raskt, dette avtales nærmere.
Viktig informasjon:
Leilighetene har noe ulike størrelse og planløsninger. Bildene i annonsen er ikke av en tilgjengelig leilighet, men viser hvilken type standard det er på leilighetene.
Vi har totalt 6 leiligheter tilgjengelig hvor alle har samme type standard. Plantegninger av de aktuelle leilighetene finner du i annonsen.
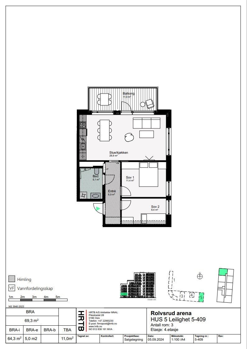
5-409 (4. etasje)
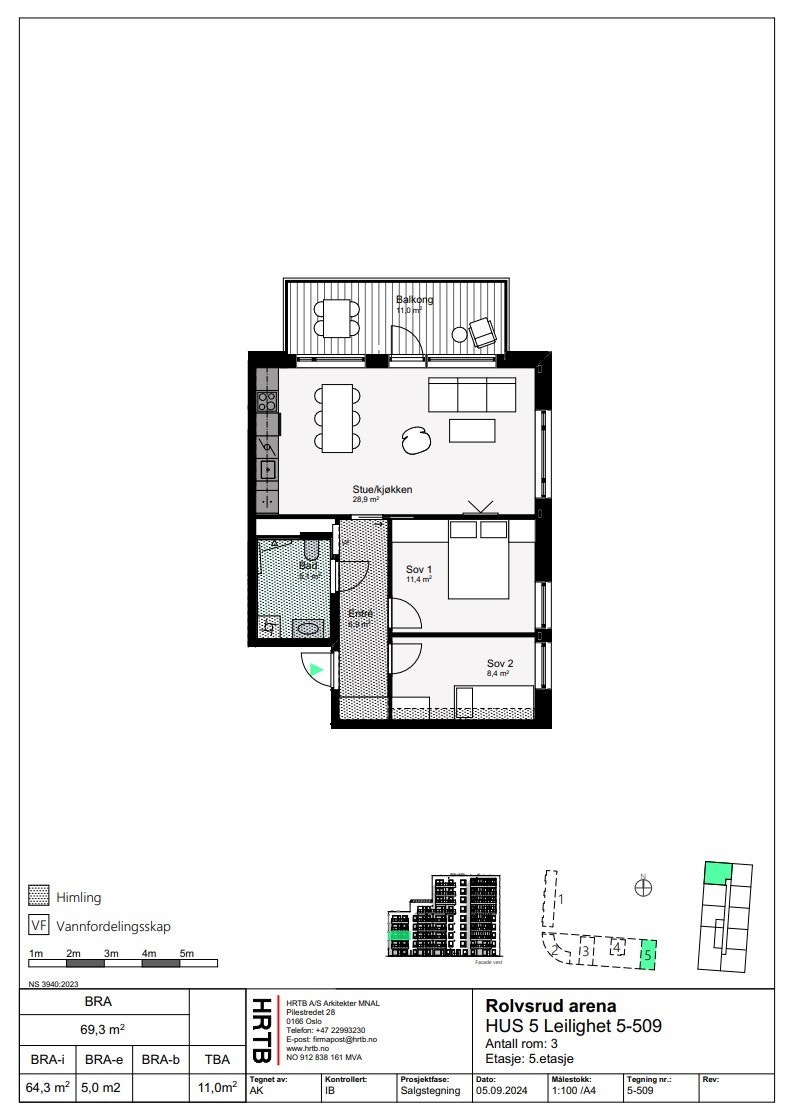
5-509 (5. etasje)
5-605 (6. etasje)
5-609 (6. etasje)
5-709 (7. etasje)
5-806 (8. etasje)
Ta direkte kontakt med megler for mer informasjon. Ved forespørsel mottar du plantegninger for leilighetene og informasjon vedrørende pris for hver enkelt enhet. Fleksibel dato for overtakelse, avtales nærmere med megler. Mulighet til å overta allerede i mars hvis ønskelig.
Henvendelser på mail vil bli prioritert.
Leieboerforsikring – En enklere måte å leie bolig på!
Med Leieboerforsikring levert av If kan du flytte rett inn i ny bolig uten å tenke på hverken depositum eller innboforsikring.
Fordeler med Leieboerforsikring:
-Du slipper å innbetale depositum
-Innboforsikring som gjelder for alle som bor i boligen
-Unik uhellsdekning
-Månedlig betaling
Leieboerforsikring leveres av If Skadeforsikring. Ved mislighold av leiekontrakt vil leietaker holdes økonomisk ansvarlig av If for utleiers tap, på lik linje som ved en depositumskonto. Leieboerforsikring koster 2,6% (min. 300 kr, maks. 700 kr) av leieprisen, og legges til månedsleien.
Beliggenhet
Rolvsrud Arena ligger midt i Lørenskog - med et bredt spekter av aktiviteter og tilbud utenfor døra.
Lørenskog byr på både det urbane og bynære med shopping, restauranter og et rikt kulturtilbud, men også trening og rekreasjon i umiddelbar nærhet. Dessuten kommer du deg raskt til Oslo eller Gardermoen om du er på farten.
Lørenskog er en hverdagsarena hvor du finner alt du trenger i nærheten. Enten det er jobb, skole eller barnehage, butikker, restauranter, velvære, kultur, idrett eller tur i marka - er det meste nært Rolvsrud Arena. Det gjør at du kan bruke tiden din på det du liker best - med de du er glad i.
Her er noen avstander fra Rolvsrud Arena:
" Skårersletta (300 m)
" Rolvsrud busstopp (350 m)
" Apotek 1 (350 m)
" Rema 1000 Skårer (550 m)
" Lørenskog bussterminal (850 m)
" Meny Rasta (1 km)
" Triaden kjøpesenter (1 km)
" Lørenskog hus og Metro senter (1 km)
" Sats Metro eller Triaden (1 km)
" Rådhusparken og Langvannet (1,5 km)
" SNØ (3,5 km)
" Ahus (4 km)
" Losby Gods (5 km)
" IKEA Furuset (6 km)
" Oslo S (16 km)
" Oslo lufthavn (38 km)
Skole og barnehager:
For info om barnehage, skole og utdanning, les mer her: https://lorenskog.kommune.no/tjenester/skole-og-utdanning/
Adkomst
Det vil bli skiltet ved oppsatt fellesvisning. Det anbefales å bruke en annen kartløsning enn Google Maps da adressen ikke er oppdatert der.
Eiendommens rom
Indre rom:
Entré, 2 soverom, bad, stue/kjøkken.
Kontakt megler for mer informasjon.
Ytre rom:
Balkong. Bod i kjeller.
Standard
Helt nye leiligheter, ferdigstilt i 2025.
Leilighetene i RA5 leveres med standard og stil som er laget for å vare lenge. Med moderne, skandinavisk innredning, og produkter som følger strenge krav med hensyn til miljøet, kan du ha glede av det nye hjemmet ditt i mange år fremover.
Overflater generelt:
Alle gulv levers med 1-stav lys hvitpigmentert eikeparkett. Gulvvarme på stue, kjøkken, bad og entré. Veggene males i en behagelig beige farge.
Kjøkken:
Kvalitetskjøkken fra HTH med fronter av typen Mood, i mørkebrune toner. To cm benkeplate i laminat i farge sandste, nedfelt sort vask i kompositt. Kjøkkenkran i krom fra Tapwell og simline ventilator fra Røroshetta.
Bad:
Plassbygget bad med flislagte vegger og gulv, flisene leveres med sandfarget overflate. Servantskap fra HTH med to skuffer, med samme fronter som på kjøkkenet. Servantkran og dusjarmatur i krom fra Tapwell. Hvite LED-spotter i tak med dimmer og speil med integrert LED-lys fra HTH. Det er selvfølgelig vannbårenvarme i gulvet. Opplegg til vaskemaskin.
Utgang til stor balkong fra stue.
Gulvvarme i alle rom utenom soverommene.
Inventar
Boligen leies ut umøblert.
Integrerte hvitevarer: kombiskap, oppvaskmaskin, komfyr, steketopp.
Fasiliteter
Boligen har heis, dørtelefon med video, balkong, opplegg internett, ikke-røyk , sentralt , utsikt , barnevennlig, rolig , moderne , parkett, ingen gjenboere .
Parkering
Parkering i gate etter gjeldende bestemmelser.
Mulighet for å leie garasjeplass for kr 1 500,- pr måned.
Eierforhold
Eierseksjon
Oppvarming
Boligen oppvarmes med vannbåren varme.
Energimerking
Boligen har energikarakter C
Boligens energiattest, med oppvarmingskarakter, er tilgjengelig hos megler og utleveres ved forespørsel.
Egne abonnementer
Leietaker tegner eget abonnement for strøm.
Husleie
Kr. 19 500 pr. måned. Grunnpakke internett er inkludert i leien.Medtatt i husleien er a-konto beløp for fjernvame og varmtvann kr. 1 200.
Total husleie kr. 19 500.
Utleier vil dokumentere og foreta avregning mot innbetalt a kontobeløp minimum en gang pr år. Differansen mellom faktisk forbruk og avregning betales innen 14 dager etter mottatt avregning.
Utleiers krav til sikkerhet
Som sikkerhet i dette leieforholdet kan leietaker velge å kjøpe leieboerforsikring levert av IF eller opprette depositumskonto i SpareBank 1 SMN.
Sikkerhetsbeløpet for forsikring og depositum er fra 3 måneders husleie.
Velges leieboerforsikring fra IF er kostnaden 2,6% av løpende månedsleie, minimum kr 300,- og maksimalt beløp kr 700,- pr mnd. Forsikringspremien er en del av leien, og betales ved forfallstidspunktet for husleien. If vil kreve regress fra leietaker ved leietakers mislighold som medfører utbetaling fra forsikringen.
Ta kontakt med megler i Utleiemegleren for å finne ut om du tilfredsstiller vilkårene for å tegne leieboerforsikring levert av IF.
Leietiden og partenes oppsigelsesadgang
Overtakelse: Etter avtale
Leietid: 01.04.2026 - 31.03.2029
Oppsigelsestiden i dette leieforholdet er 3 måneder for begge parter.
Leieforholdet har en bindingstid frem til 31.12.2026, og dette er første mulige tidspunkt en oppsigelse kan ha virkning fra. Sies leieforholdet opp innen denne dato vil leieforholdet ha en minste leietid frem til 31.03.2027.
Oppsigelser levert etter utløp av bindingstiden den 31.12.2026 vil ha virkning den første dag i den påfølgende måneden etter at oppsigelsen er mottatt.
Tidligste opphør av leiekontrakten ved oppsigelse forutsetter at leiekontrakten starter på det tidspunktet som er nevnt ovenfor.
Prospekt
Denne annonsen gir ikke komplett informasjon om boligen, og interessenter oppfordres til å lese prospektet.
Kontraktsinngåelse
Etter kontraktsinngåelse forfaller en måneds husleie til betaling.
Visning
Meld interesse via vårt digitale interessentskjema.
Kontaktperson
Snorre Pedersen
Saksnummer
65806/0073-26
Matrikkelinformasjon
Visning
Utleiemegleren Pro
Nyttige lenker
Nærområdet
Annonsene kan være mangelfulle i forhold til lovpålagt opplysningsplikt. Før bindende avtale inngås oppfordres interessenter til å innhente komplett informasjon fra meglerforetaket, selger eller utleier.













