Bildegalleri

Stue med praktisk garderobeskap for klær og div.
Leilighet, 2-roms ved OsloMet!
- Månedsleie
- 18 900,–
- Depositum
- 56 700,–
Nøkkelinfo
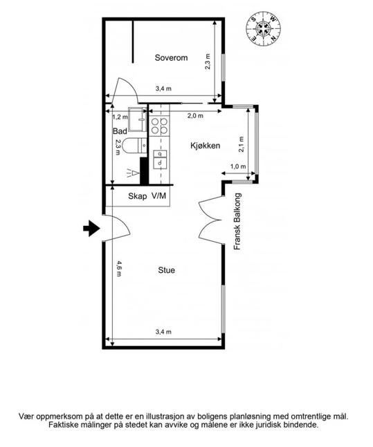
- Internt bruksareal
- 37 m² (BRA-i)
- Boligtype
- Leilighet
- Soverom
- 1
- Etasje
- 4.
- Leieperiode
- 04.02.2026
Fasiliteter
Beskrivelse
OM BOLIGEN:
Velkommen til en lys og luftig leilighet på St.Hanshaugen ledig fra 01.02.2026. Leiligheten vender mot en rolig indre gård og ligger rett ved OsloMet. Det er også umiddelbar nærhet til kollektivtransport, kafeer, butikker og flotte parker i nærområdet.
OM LEIEFORHOLDET
Leiligheten kan tilby ett soverom med walk-in closet, fransk balkong og en romslig kjellerbod. Det er heis i oppgangen, sykkelparkering og en felles takterasse for alle beboere. I tillegg er det moderne kjøkken fra 2022, stue og bad.
Leiligheten er delvis møblert med oppvaskmaskin, kombinert vaskemaskin/tørketrommel og dobbeltseng (140 cm x 200 cm) med oppbevaring.
Leien inkluderer:
- Varmtvann
- Oppvarming (fjernvarme)
- Internett
Strøm betales av leietaker.
PARKERING
Gateparkering
Mulighet for å leie parkering av andre beboere i lukket garasjeanlegg.
Visning
Hybel.no
Nyttige lenker
Nærområdet
Annonseinformasjon
| FINN-kode | 449488271 |
|---|---|
| Sist endret | 04. feb. 2026 10:29 |
| Referanse | leilighet-2-roms-falbes-gate-18a-oslo |
Annonsene kan være mangelfulle i forhold til lovpålagt opplysningsplikt. Før bindende avtale inngås oppfordres interessenter til å innhente komplett informasjon fra meglerforetaket, selger eller utleier.














