Bildegalleri

KVADRATUREN/ SENTRUM: Fin studioleilighet over 2 plan med mezzanin -Balkong - 4 meters takhøyde- Inkl. v-vann og fyring
- Månedsleie
- 18 000 kr
Nøkkelinfo
- Internt bruksareal
- 36 m² (BRA-i)
- Bruksareal
- 36 m²
- Boligtype
- Leilighet
- Soverom
- 0
- Etasje
- 3.
- Leieperiode
- 16.02.2026 - 15.02.2029
- Energimerking
- F
Fasiliteter
Beskrivelse
Innhold
Kort fortalt:
- Attraktiv beliggenhet med nærhet til alt
- Balkongen vender mot bakgård
- Varmtvann, oppvarming og internett inkludert
- Takhøyde på ca. 4 meter
- Tilgang til felles takterrasse
- Tilgang til treningsenter i kjelleren
- Tilgang til sykkelrom
Leieboerforsikring – En enklere måte å leie bolig på!
Med Leieboerforsikring levert av If kan du flytte rett inn i ny bolig uten å tenke på hverken depositum eller innboforsikring.
Fordeler med Leieboerforsikring:
-Du slipper å innbetale depositum
-Innboforsikring som gjelder for alle som bor i boligen
-Unik uhellsdekning
-Månedlig betaling
Leieboerforsikring leveres av If Skadeforsikring. Ved mislighold av leiekontrakt vil leietaker holdes økonomisk ansvarlig av If for utleiers tap, på lik linje som ved en depositumskonto. Leieboerforsikring koster 2,6% (min. 300 kr, maks. 700 kr) av leieprisen, og legges til månedsleien.
Beliggenhet
Velkommen til Tollbugata 13!
Leiligheten har en meget sentral og attraktiv beliggenhet i ikoniske Posthallen, midt i hjertet av Oslo sentrum. Her bor du i sentrum av alt, samtidig som leiligheten vender inn mot rolig bakgård og byr på en sjelden kombinasjon av urban puls og tilbaketrukket ro. Med alle tenkelige servicefasiliteter og shoppingmuligheter rett utenfor døren. Kvadraturen er et meget spennende område som er i stor vekst.
Kvadraturen bussholdeplass ligger rett utenfor døren, samt 2 minutters gange til trikkeholdeplassen i Dronningens gate.
Dagligvarehandelen kan gjøres på Meny og Matkroken. For yttligere servicetilbud ligger Steen og Strøm rett ved boligen. Paleet, Eger og Oslo City ligger kun en kort spasertur unna og byr på en rekke servicetilbud og fasiliteter.
Karl Johans gate byr på en rekke spennende restauranter, barer og kafeer. Oslo sentrum kan by på bla. uendelig med cafeer og restauranter, samt kino, galleri, klesbutikker, kunst og kultur. Her er det noe for enhver smak.
Kort vei til Sørenga som har blitt et av de mest populære stedene å besøke for turister og badende på sommerstid.
Gode tur og rekreasjonsmuligheter på Spikersuppa, som islegges om vinteren og benyttes som skøytebane, Operaen, Oslo fjorden, Aker Brygge, Akershus Festning, Astrup Fearnley Museet, Middelalderparken, Botanisk hage og Tjuvholmen sjøbad i nærheten.
Adkomst
Inngang via Dronningens gate 15.
Enkel adkomst med buss, trikk, t-bane og tog. Kvadraturen bussholdeplass ligger rett utenfor døren samt 2 minutters gange til trikkeholdeplassen i Dronningens gate.
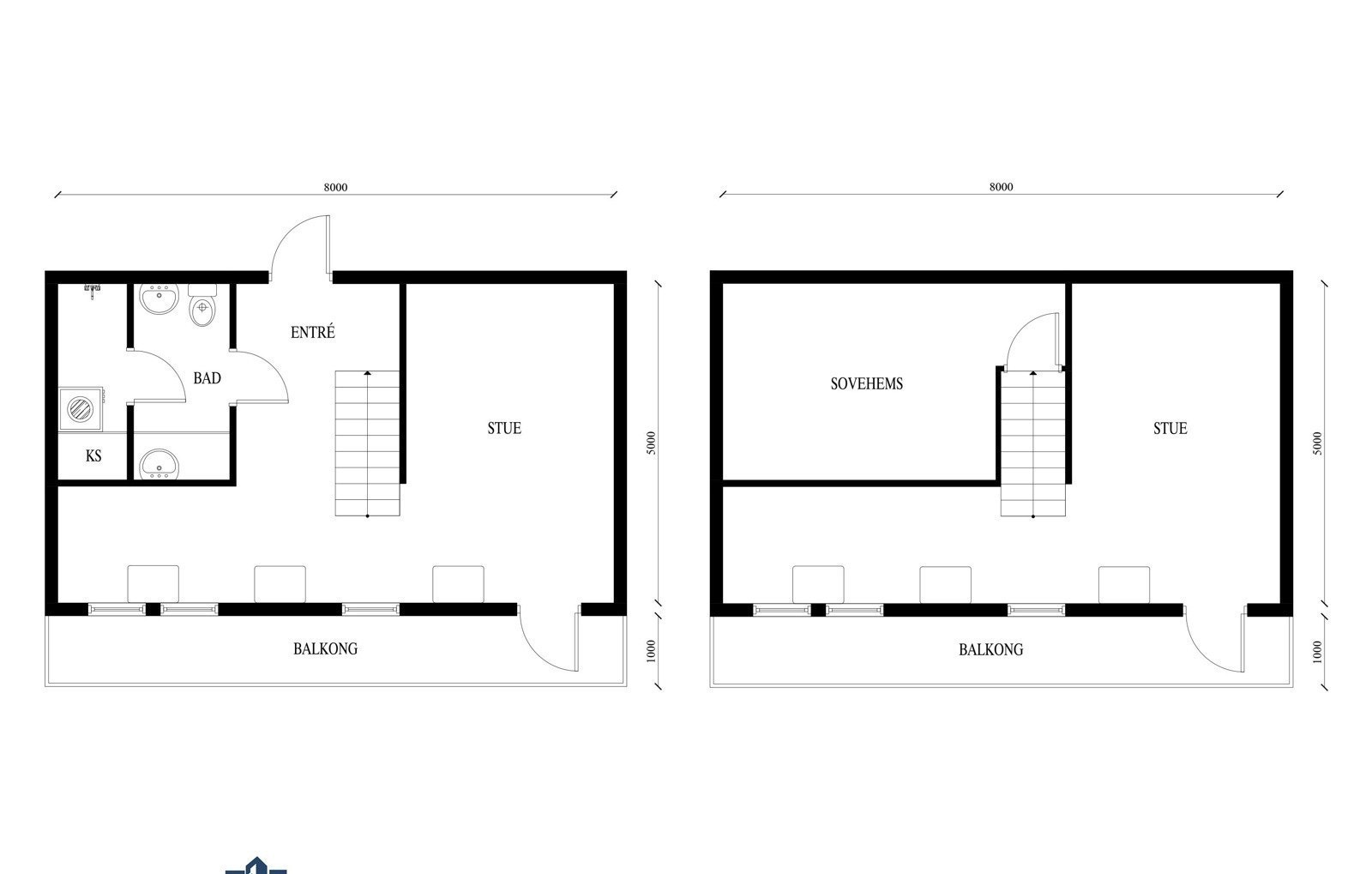
Eiendommens rom
Indre rom:
Entre, stue, kjøkken, bad og hems.
Ytre rom:
Balkong.
Tilgang til takterrasse.
Tilgang til fellesvaskeri
Standard
Entre:
Lys og trivelig entre med skyvedørsgarderobe. Tilknyttet callinganlegg med videofunksjon. Gulv: Parkett. Vegg: Malt.
Kjøkken:
Åpen kjøkkenløsning mot stuen. Kjøkkenet har en tidløs og moderne innredning med hvitevarer. Gulv: Parkett. Vegg: Malt. Belysning: Taklampe.
Stue:
Lys og innbydende stue med gode møbleringsmuligheter. Stuen er innredet med store vindusflater som gir gode lysforhold. Leiligheten har en takhøyde på 5 meter som gir en romslig og luftig følelse. Gulv: Parkett. Vegg: Malt. Belysning: Taklampe.
Mezzanin/ hems:
Hems med gulvareal på ca 12 kvm. Her er det innebygd seng samt god plass til oppbevaring i skyvedørsgarderobe. Gulv: Parkett. Vegg: Malt.
Bad:
Pent flislagt bad med varmekabler. Baderommet er av god størrelse og er innredet med vegghengt toalett, servant med underskap og dusjhjørne med glassdører. Gulv: Fliser. Vegg: Fliser. Belysning: Downlights.
Inventar
Boligen leies ut delvis møblert.
Frittstående hvitevarer: kjøleskap, komfyr.
Integrerte hvitevarer: kombiskap, oppvaskmaskin.
Frittstående hvitevarer medfølger så lenge de virker, reparasjon/bytte inngår ikke i leieavtalen.
Fasiliteter
Boligen har heis, balkong, tilgang fellesvaskeri, terrasse, opplegg internett, ikke-røyk , sentralt , utsikt , rolig , moderne , parkett, opplegg for kabel-tv, opplegg for internett.
Personlige abonnementer tegnes av leietaker og er ikke inkludert i husleien. Det tas forbehold om at lokale leverandører kan levere tjenesten.
Parkering
Parkering i gate etter gjeldende bestemmelser.
Eierforhold
Eierseksjon
Oppvarming
Boligen oppvarmes med vannbåren varme.
Energimerking
Boligen har energikarakter F
Boligens energiattest, med oppvarmingskarakter, er tilgjengelig hos megler og utleveres ved forespørsel.
Egne abonnementer
Leietaker tegner eget abonnement for strøm.
Husleie
Kr. 18 000 pr. måned. Oppvarming fra vannbåren varme, varmtvann, vann og avløpsutgifter og grunnpakke internett er inkludert i leien.
Utleiers krav til sikkerhet
Som sikkerhet i dette leieforholdet kan leietaker velge å kjøpe leieboerforsikring levert av IF eller opprette depositumskonto i SpareBank 1 SMN.
Sikkerhetsbeløpet for forsikring og depositum er fra 3 måneders husleie.
Velges leieboerforsikring fra IF er kostnaden 2,6% av løpende månedsleie, minimum kr 300,- og maksimalt beløp kr 700,- pr mnd. Forsikringspremien er en del av leien, og betales ved forfallstidspunktet for husleien. If vil kreve regress fra leietaker ved leietakers mislighold som medfører utbetaling fra forsikringen.
Ta kontakt med megler i Utleiemegleren for å finne ut om du tilfredsstiller vilkårene for å tegne leieboerforsikring levert av IF.
Leietiden og partenes oppsigelsesadgang
Overtakelse: 16.02.2026
Leietid: 16.02.2026 - 15.02.2029
Oppsigelsestiden i dette leieforholdet er 3 måneder for begge parter.
Leieforholdet har en bindingstid frem til 30.11.2026, og dette er første mulige tidspunkt en oppsigelse kan ha virkning fra. Sies leieforholdet opp innen denne dato vil leieforholdet ha en minste leietid frem til 28.02.2027.
Oppsigelser levert etter utløp av bindingstiden den 30.11.2026 vil ha virkning den første dag i den påfølgende måneden etter at oppsigelsen er mottatt.
Tidligste opphør av leiekontrakten ved oppsigelse forutsetter at leiekontrakten starter på det tidspunktet som er nevnt ovenfor.
Prospekt
Denne annonsen gir ikke komplett informasjon om boligen, og interessenter oppfordres til å lese prospektet.
Kontraktsinngåelse
Etter kontraktsinngåelse forfaller en måneds husleie til betaling.
Visning
Meld interesse via vårt digitale interessentskjema.
Kontaktperson
Julie Mariampillai
Saksnummer
65728/0027-26
Matrikkelinformasjon
Visning
Utleiemegleren Nydalen
Nyttige lenker
Nærområdet
Annonsene kan være mangelfulle i forhold til lovpålagt opplysningsplikt. Før bindende avtale inngås oppfordres interessenter til å innhente komplett informasjon fra meglerforetaket, selger eller utleier.





















