Bildegalleri

Moderne leilighet i 5. etg
- Månedsleie
- 16 000,–
- Depositum
- 48 000,–
Nøkkelinfo
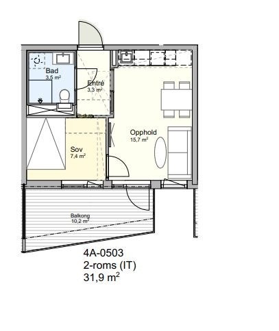
- Internt bruksareal
- 32 m² (BRA-i)
- Boligtype
- Leilighet
- Soverom
- 1
- Etasje
- 5.
- Leieperiode
- 15.03.2026
Fasiliteter
Balkong/Terrasse
Garasje/P-plass
Alarm
Vaktmester-/vektertjeneste
Heis
Parkett
Rolig
Barnevennlig
Moderne
Ingen gjenboere
Kabel-TV
Bredbåndstilknytning
Møblert
Beskrivelse
Vi er ferdig å studere og leier derfor vår nydelige leilighet fra og med midten av mars. Den vil være møblert og ligger svært godt til med kjøpesenter rett over gaten, busstopp til NTNU og byen rett utenfor og kort vei til Estenstadsmarka.
Leiligheten vil være møblert slik at det er bare å flytte rett inn. Det er bare vi som har bodd her siden den var ferdigbygd i slutten av 2024. Det følger med garasjeplass i parkeringskjeller.
Stuen og badet har vannbåren gulvvarme og det er en stor balkong med ekstremt gode solforhold gjennom sommeren.
NB: Knappen for å vise hele beskrivelsen har kun en visuell effekt.
NB: Knappen for å vise hele beskrivelsen har kun en visuell effekt.
Visning
Ta kontakt for å avtale visning
Hybel.no
Enkelt, trygt og effektivt
Nyttige lenker
Nærområdet
Annonseinformasjon
| FINN-kode | 449089050 |
|---|---|
| Sist endret | 02. feb. 2026 09:59 |
| Referanse | leilighet-2-roms-anders-estenstads-veg-3-trondheim |
Annonsene kan være mangelfulle i forhold til lovpålagt opplysningsplikt. Før bindende avtale inngås oppfordres interessenter til å innhente komplett informasjon fra meglerforetaket, selger eller utleier.












