Bildegalleri

Pen stue med stukkatur og rosett.
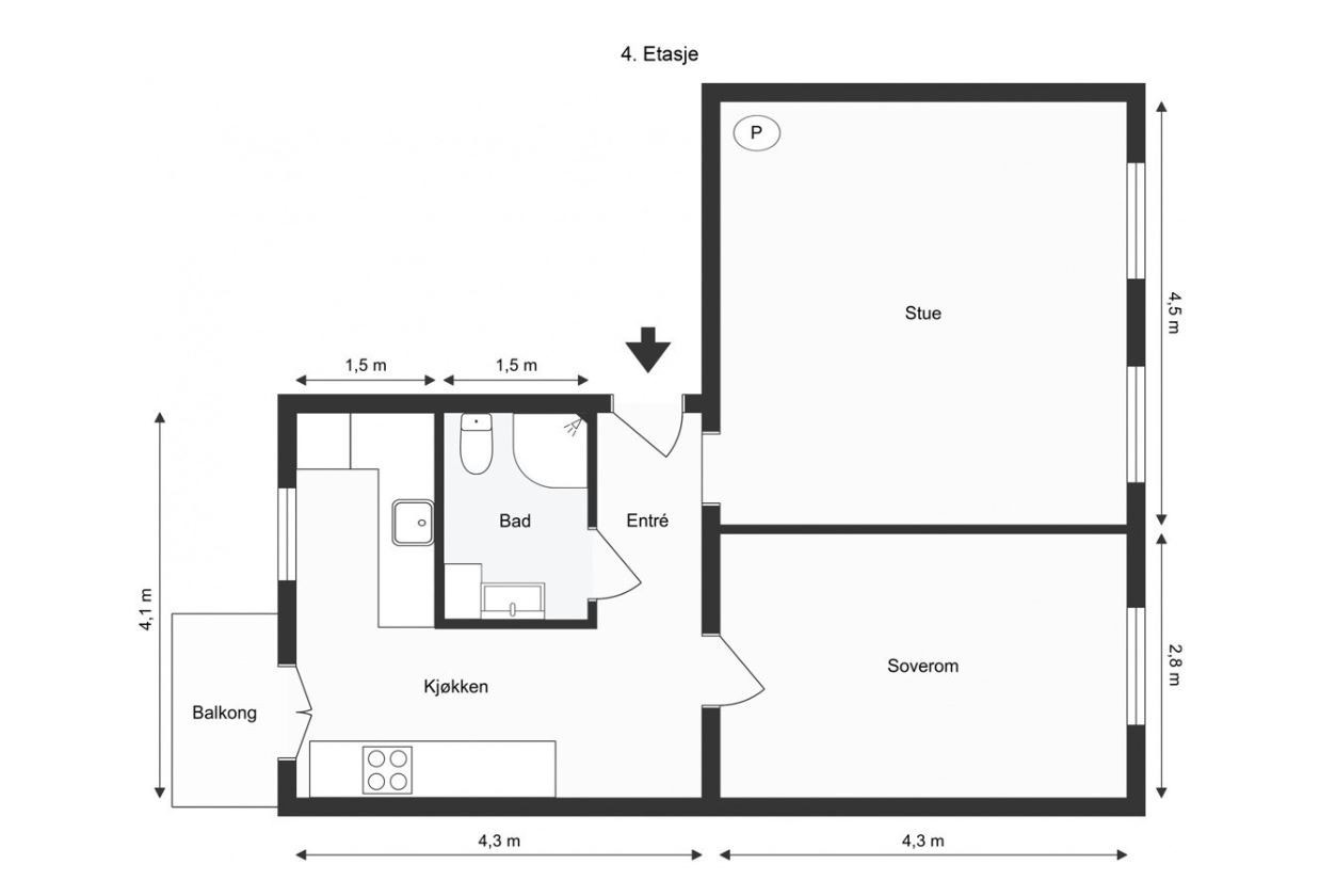
MAJORSTUA- Gjennomgående og lys 2-roms med balkong- Peis- Sentralt- God tak høyde- Nytt bad!
- Månedsleie
- 20 500 kr
Nøkkelinfo
- Internt bruksareal
- 51 m² (BRA-i)
- Bruksareal
- 53 m²
- Eksternt bruksareal
- 2 m² (BRA-e)
- Boligtype
- Leilighet
- Soverom
- 1
- Etasje
- 4.
- Leieperiode
- 01.05.2026 - 30.04.2029
- Energimerking
- G
Fasiliteter
Beskrivelse
Innhold
Velkommen til Schønings gate 9A:
En pen og lys leilighet med sentral beliggenhet på Majorstua. Leiligheten ligger i byggets 4.etg med trappeadkomst. Innholder: pen entré med god takhøyde, bad med dusjkabinett, varme i gulv og opplegg for vaskemaskin, godt kjøkken med god lagringsplass, samt utgang til balkong. Stor stue med store vinduer som slipper inn godt med naturlig lys og soverom meg bra størrelse og god takhøyde. Leiligheten er gjennomgående og har en bra planløsning.
Litt praktisk:
- Bygget er fra 1900.
- Peis i stue
- Dobbel isolerglass i vinduer fra 1983 og balkongdør fra 2013 med doble isolerglass.
- Bod
- Sentralt og kort vei til alt.
Leieboerforsikring – En enklere måte å leie bolig på!
Med Leieboerforsikring levert av If kan du flytte rett inn i ny bolig uten å tenke på hverken depositum eller innboforsikring.
Fordeler med Leieboerforsikring:
-Du slipper å innbetale depositum
-Innboforsikring som gjelder for alle som bor i boligen
-Unik uhellsdekning
-Månedlig betaling
Leieboerforsikring leveres av If Skadeforsikring. Ved mislighold av leiekontrakt vil leietaker holdes økonomisk ansvarlig av If for utleiers tap, på lik linje som ved en depositumskonto. Leieboerforsikring koster 2,6% (min. 300 kr, maks. 700 kr) av leieprisen, og legges til månedsleien.
Beliggenhet
Leiligheten ligger fint til i sentralt og har kort vei til "alt". Populært og sentralt boligområde på Majorstuen i Oslo. Her er hele byens fasiliteter innen kort rekkevidde, samtidig som du også har nærhet til fine tur- og rekreasjonsområder. Bogstadveien ligger kun 350 meter unna, og er en attraktiv og moderne handlegate.
Følger man Bogstadveien og Hegdehaugsveien ned forbi slottet, når man Karl Johans gate og de øvrige handlegatene i Oslo sentrum på ca. 30 min. Få også med deg Vestkanttorget med lørdagsmarked, eller bondens månedlige marked på Valkyrie Plass.
Videre er det kort vei til Marienlystparken og Frognerparken. Sistnevnte ligger innen gangavstand fra eiendommen, og inneholder populære Frognerbadet, Frogner stadion og skulpturanlegget Vigelandsparken. Sør i parken ligger Oslo Bymuseum. Bislett bad, Slottsparken, Stensparken og St. Hanshaugen Park ligger også alle godt innen rekkevidde til fots.
Dagligvarehandelen kan blant annet gjøres på Kiwi, Extra, Meny og Jacobs. Majorstuen og Bogstadveien er velkjent for sitt yrende folkeliv, og ikke minst rike utvalg av butikker, kafeer, restauranter og utesteder. Her finner du alt fra store, rimelige kleskjeder til fasjonable motehus du ikke finner andre steder i byen. Colosseum senter er et trivelig kjøpesenter og ligger vis-á-vis Colosseum Kino.
Området har et godt kollektivtilbud via buss, trikk, T-bane og flybuss. Nærmeste holdeplass er Bogstadveien som ligger ca. 350 meter fra boligen. Majorstuen er et viktig kollektivknutepunkt i Oslo, da alle T-banelinjene, tre sporvognslinjer og fem busslinjer trafikkerer stedet. Med bil fra Majorstuen tar det ca. 6 min til Oslo S, 8 min til Bygdøy og 35 min til Oslo Lufthavn.
Eiendommens rom
Indre rom:
4.etg: Entré, bad, kjøkken, soverom og stue.
Ytre rom:
Bod.
Standard
Gulv. Malte gulv og fliser på bad.
Vegger: Malte flater og fliser på baderomsvegger.
Kjøkken: Pent kjøkken med hvite frontet, integrerte hvitevarer og utgang til balkong med morgensol, og vender mot koselig bakgård.
Bad: Flislagt bad med varmekabler i gulv. Oppgradert med nytt dusjkabinett og servant i 2014.. Toalett og opplegg for vaskemaskin.
Inventar
Boligen leies ut umøblert.
Frittstående hvitevarer: kombiskap.
Integrerte hvitevarer: oppvaskmaskin, komfyr, steketopp.
Fasiliteter
Boligen har dørtelefon, balkong, ikke-røyk , sentralt , opplegg for kabel-tv, opplegg for internett.
Personlige abonnementer tegnes av leietaker og er ikke inkludert i husleien. Det tas forbehold om at lokale leverandører kan levere tjenesten.
Parkering
Parkering i gate etter gjeldende bestemmelser.
Eierforhold
Eierseksjon
Oppvarming
Boligen oppvarmes med elektrisitet.
Energimerking
Boligen har energikarakter G
Boligens energiattest, med oppvarmingskarakter, er tilgjengelig hos megler og utleveres ved forespørsel.
Egne abonnementer
Leietaker tegner eget abonnement for strøm.
Husleie
Kr. 20 500 pr. måned. Vann og avløpsutgifter og grunnpakke internett er inkludert i leien.
Utleiers krav til sikkerhet
Som sikkerhet i dette leieforholdet kan leietaker velge å kjøpe leieboerforsikring levert av IF eller opprette depositumskonto i SpareBank 1 SMN.
Sikkerhetsbeløpet for forsikring og depositum er fra 3 måneders husleie.
Velges leieboerforsikring fra IF er kostnaden 2,6% av løpende månedsleie, minimum kr 300,- og maksimalt beløp kr 700,- pr mnd. Forsikringspremien er en del av leien, og betales ved forfallstidspunktet for husleien. If vil kreve regress fra leietaker ved leietakers mislighold som medfører utbetaling fra forsikringen.
Ta kontakt med megler i Utleiemegleren for å finne ut om du tilfredsstiller vilkårene for å tegne leieboerforsikring levert av IF.
Leietiden og partenes oppsigelsesadgang
Overtakelse: 01.05.2026
Leietid: 01.05.2026 - 30.04.2029
Oppsigelsestiden i dette leieforholdet er 3 måneder for begge parter.
Leieforholdet har en bindingstid frem til 31.01.2027, og dette er første mulige tidspunkt en oppsigelse kan ha virkning fra. Sies leieforholdet opp innen denne dato vil leieforholdet ha en minste leietid frem til 30.04.2027.
Oppsigelser levert etter utløp av bindingstiden den 31.01.2027 vil ha virkning den første dag i den påfølgende måneden etter at oppsigelsen er mottatt.
Tidligste opphør av leiekontrakten ved oppsigelse forutsetter at leiekontrakten starter på det tidspunktet som er nevnt ovenfor.
Prospekt
Denne annonsen gir ikke komplett informasjon om boligen, og interessenter oppfordres til å lese prospektet.
Kontraktsinngåelse
Etter kontraktsinngåelse forfaller en måneds husleie til betaling.
Visning
Meld interesse via vårt digitale interessentskjema.
Kontaktperson
André Zimmer
Saksnummer
54906/0053-26
Matrikkelinformasjon
Visning
Utleiemegleren Frogner
Nyttige lenker
Nærområdet
Annonsene kan være mangelfulle i forhold til lovpålagt opplysningsplikt. Før bindende avtale inngås oppfordres interessenter til å innhente komplett informasjon fra meglerforetaket, selger eller utleier.










