Bildegalleri

Innbydende stue med gode møbleringsmuligheter
KJELSÅS: Fin og romslig 3-roms med balkong og garasje - Nærhet til marka - Ink. v-vann og internett - Ledig omgående
- Månedsleie
- 20 900 kr
Nøkkelinfo
- Internt bruksareal
- 70 m² (BRA-i)
- Bruksareal
- 70 m²
- Boligtype
- Leilighet
- Soverom
- 2
- Etasje
- 3.
- Leieperiode
- 15.02.2026 - 14.02.2029
- Energimerking
- G
Fasiliteter
Beskrivelse
Innhold
Kort fortalt:
- Romslig leilighet på 71 kvm
- Balkong med gode solforhold
- Varmtvann, internett inkludert
- Garasjeplass medfølger
- Bod i kjeller
- Sykkelbod
- Tørkerom
- Nærhet til marka
Leieboerforsikring – En enklere måte å leie bolig på!
Med Leieboerforsikring levert av If kan du flytte rett inn i ny bolig uten å tenke på hverken depositum eller innboforsikring.
Fordeler med Leieboerforsikring:
-Du slipper å innbetale depositum
-Innboforsikring som gjelder for alle som bor i boligen
-Unik uhellsdekning
-Månedlig betaling
Leieboerforsikring leveres av If Skadeforsikring. Ved mislighold av leiekontrakt vil leietaker holdes økonomisk ansvarlig av If for utleiers tap, på lik linje som ved en depositumskonto. Leieboerforsikring koster 2,6% (min. 300 kr, maks. 700 kr) av leieprisen, og legges til månedsleien.
Beliggenhet
Velkommen til Nordstjerneveien 3!
Leiligheten har en attraktiv beliggenhet i et veletablert og attraktivt boligfelt på Kjelsås. Området utmerker seg med lite trafikk, flotte turområder hele året og kort vei til alt man trenger i hverdagen.
Her bor du med Lillomarka, Nordmarka og Maridalen rett utenfor døren hvor du finner lysløype og flotte turveier, enten på ski, til fots eller på sykkel. Kjelsåsmyra fotballbane ligger rett over veien samt Myrerjordet. I området er det både kulturlandskap, historiske veier og fine rasteplasser med nydelig utsikt. Videre er det kort avstand til Akebakken, med blant annet gangavstand til Grefsenkleiva som fører inn til langrennsløypene ved Linderudkollen hvor snøkanoner sikrer en lang skisesong. Like nedenfor Maridalsvannet ligger Brekkedammen/Frysja med populære friområder og idylliske badeplasser. Andre populære badeplasser er Trollvann med blant annet brygger, bålplasser og benker. Alpinanlegget i Grefsenkleiva ligger like i nærheten, samt Grefsen Tennisklubb som har et flott anlegg med flere baner.
Kjelsås Idrettslag tilbyr i tillegg bl.a. basketball, fotball, håndball, langrenn, alpint, orientering og allidrett. På toppen av Grefsenkleiva ligger populære Grefsenkollen restaurant. Med fantastisk utsikt, samt fjorden og hovedstaden som glitrer i det fjerne, har restauranten en eventyrlig ramme for både dagsutflukter, utekonserter og andre trivelige begivenheter.
Dagligvarehandelen kan gjøres i kort gangavstand fra boligen hos Spar i Myrerskogveien eller Coop Prix i Grefsenveien. Ønsker du ytterligere servicetilbud har Storo Storsenter et rikt og variert utvalg med 130 butikker, spisesteder og tjenester. Oslo sentrum ligger også godt innen rekkevidde.
Boligen har nærhet til offentlig kommunikasjon med buss, trikk og tog. Trikk og buss tar deg til sentrum på 15 minutter. Med bil fra boligen tar det ca. 5 min til Storo, 14 min til Majorstuen, 17 min til Oslo S og 44 min til Oslo lufthavn.
Adkomst
Enkel adkomst med buss og trikk. Kort vei til Grefsen stadion buss og trikkeholdeplass.
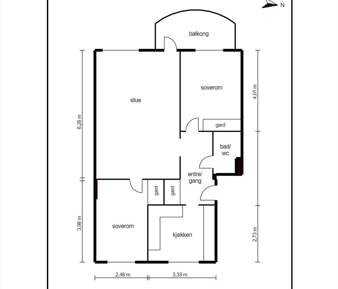
Eiendommens rom
Indre rom:
Entre. stue, kjøkken, bad og 2 soverom.
Ytre rom:
Balkong.
Garasjeplass i felles garasjeanlegg.
Egen plass i felle svaskeri.
Standard
Entre:
Lys og trivelig entre med plass til oppheng av klær og sko. Varmekabler i gulv. Gulv: Fliser. Vegg: Malt.
Kjøkken:
Praktisk og romslig kjøkken. Kjøkkenet har en tidløs innredning med hvitevarer. Godt med skap og benkplass.
Stue:
Innbydende og romslig stue med gode møbleringsmuligheter. Her er det plass til større spisebord, sofa og tilhørende møblement. Fra stuen er det utgang til balkong med gode solforhold.
Soverom 1:
Hovedsoverommet fremstår som lyst og romslig. God plass til dobbeltseng og nattbord. Skyvedørsgarderobe medfølger.
Soverom 2:
Lyst og romslig soverom med plass til dobbeltseng. Garderobeskap samt innebygd skapplass medfølger.
Felles vaskeri:
Egen plass i felles vaskeri. Vaskemaskin og tørketrommel medfølger.
Bod:
Bod i kjeller medfølger.
Inventar
Boligen leies ut umøblert.
Frittstående hvitevarer: kombiskap, vaskemaskin, tørketrommel.
Integrerte hvitevarer: oppvaskmaskin, komfyr, mikrobølgeovn.
Frittstående hvitevarer medfølger så lenge de virker, reparasjon/bytte inngår ikke i leieavtalen.
Fasiliteter
Boligen har dørtelefon, balkong, tilgang fellesvaskeri, opplegg internett, ikke-røyk , sentralt , utsikt , barnevennlig, rolig , turterreng, opplegg for internett.
Personlige abonnementer tegnes av leietaker og er ikke inkludert i husleien. Det tas forbehold om at lokale leverandører kan levere tjenesten.
Parkering
Parkering i garasje.
Eierforhold
Eierseksjon
Oppvarming
Boligen oppvarmes med elektrisitet.
Energimerking
Boligen har energikarakter G
Boligens energiattest, med oppvarmingskarakter, er tilgjengelig hos megler og utleveres ved forespørsel.
Egne abonnementer
Leietaker tegner eget abonnement for strøm.
Husleie
Kr. 20 900 pr. måned. Varmtvann, vann og avløpsutgifter, grunnpakke internett og parkering er inkludert i leien.
Utleiers krav til sikkerhet
Som sikkerhet i dette leieforholdet kan leietaker velge å kjøpe leieboerforsikring levert av IF eller opprette depositumskonto i SpareBank 1 SMN.
Sikkerhetsbeløpet for forsikring og depositum er fra 3 måneders husleie.
Velges leieboerforsikring fra IF er kostnaden 2,6% av løpende månedsleie, minimum kr 300,- og maksimalt beløp kr 700,- pr mnd. Forsikringspremien er en del av leien, og betales ved forfallstidspunktet for husleien. If vil kreve regress fra leietaker ved leietakers mislighold som medfører utbetaling fra forsikringen.
Ta kontakt med megler i Utleiemegleren for å finne ut om du tilfredsstiller vilkårene for å tegne leieboerforsikring levert av IF.
Leietiden og partenes oppsigelsesadgang
Overtakelse: 15.02.2026
Leietid: 15.02.2026 - 14.02.2029
Oppsigelsestiden i dette leieforholdet er 3 måneder for begge parter.
Leieforholdet har en bindingstid frem til 30.11.2026, og dette er første mulige tidspunkt en oppsigelse kan ha virkning fra. Sies leieforholdet opp innen denne dato vil leieforholdet ha en minste leietid frem til 28.02.2027.
Oppsigelser levert etter utløp av bindingstiden den 30.11.2026 vil ha virkning den første dag i den påfølgende måneden etter at oppsigelsen er mottatt.
Tidligste opphør av leiekontrakten ved oppsigelse forutsetter at leiekontrakten starter på det tidspunktet som er nevnt ovenfor.
Prospekt
Denne annonsen gir ikke komplett informasjon om boligen, og interessenter oppfordres til å lese prospektet.
Kontraktsinngåelse
Etter kontraktsinngåelse forfaller en måneds husleie til betaling.
Visning
Meld interesse via vårt digitale interessentskjema.
Kontaktperson
Julie Mariampillai
Saksnummer
65498/0481-25
Matrikkelinformasjon
Visning
Utleiemegleren Nydalen
Nyttige lenker
Nærområdet
Annonsene kan være mangelfulle i forhold til lovpålagt opplysningsplikt. Før bindende avtale inngås oppfordres interessenter til å innhente komplett informasjon fra meglerforetaket, selger eller utleier.










