Bildegalleri

Boligen har egen inngang på motsatt side av eier
FETSUND - Moderne, stor 2-roms leilighet - Biloppstillingsplass - internett inkl ledig 1/4!
- Månedsleie
- 13 500 kr
Nøkkelinfo
- Internt bruksareal
- 67 m² (BRA-i)
- Bruksareal
- 67 m²
- Boligtype
- Leilighet
- Soverom
- 1
- Etasje
- 1.
- Leieperiode
- 01.04.2026 - 31.03.2029
- Energimerking
- B
Fasiliteter
Beskrivelse
Innhold
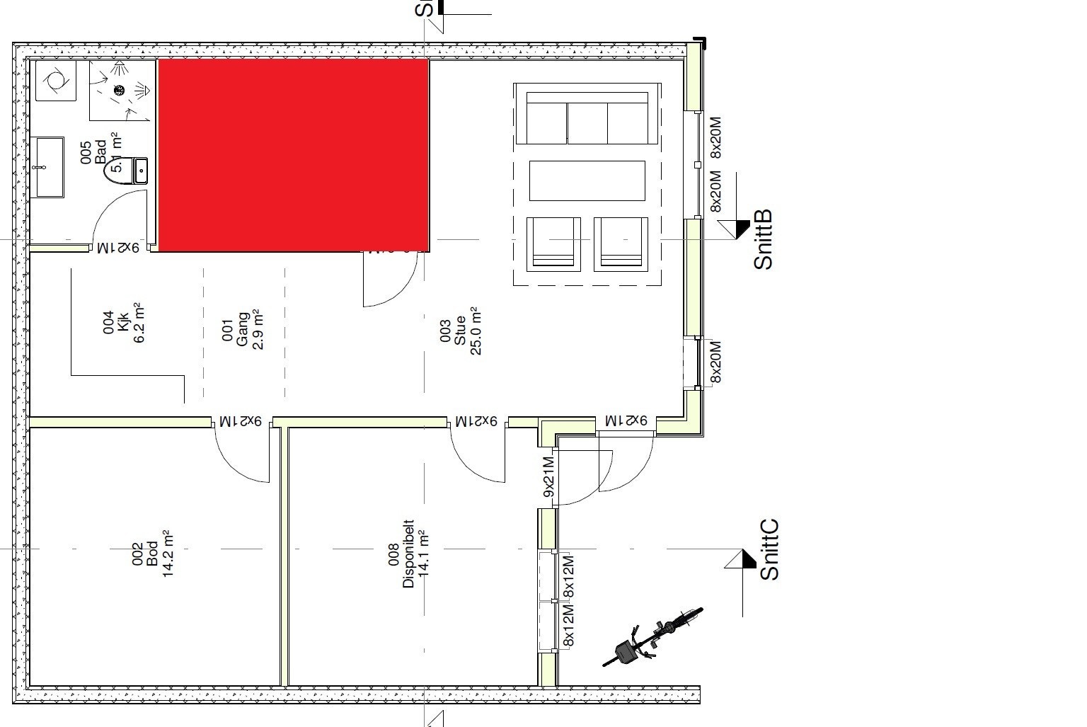
Stor 2-roms leilighet i kjedet enebolig som sto ny i 2021. Leiligheten har egen inngang. Eier bor i etasjen over. Leiligheten har en god planløsning. Det er store vinduer som slipper inn mye naturlig lys.
Leiligheten inneholder: Stue med plass til sofakrok og spiseplass. Kjøkken med integrerte hvitevarer. Romslig soverom med god plass til dobbeltseng og skap. Stor innvendig bod med plass til mye oppbevaring. Flislagt bad med varme i gulv.
Varmekabler i gulvet på bad, samt i stue og kjøkken.
Det medfølger plass til en bil.
Internett inkludert i husleien
Strøm: Det er undermåler for leiligheten, og eier avregner månedlig hva strømkostnaden vil være på, og leietaker betaler direkte til eier 1 gang i måneden.
Leieboerforsikring – En enklere måte å leie bolig på!
Med Leieboerforsikring levert av If kan du flytte rett inn i ny bolig uten å tenke på hverken depositum eller innboforsikring.
Fordeler med Leieboerforsikring:
-Du slipper å innbetale depositum
-Innboforsikring som gjelder for alle som bor i boligen
-Unik uhellsdekning
-Månedlig betaling
Leieboerforsikring leveres av If Skadeforsikring. Ved mislighold av leiekontrakt vil leietaker holdes økonomisk ansvarlig av If for utleiers tap, på lik linje som ved en depositumskonto. Leieboerforsikring koster 2,6% (min. 300 kr, maks. 700 kr) av leieprisen, og legges til månedsleien.
Beliggenhet
Beliggende i et rolig boligområde kun 15. minutter fra Lillestrøm med alle tenkelige fasiliteter, slik som kulturhus, kino, kjøesenter med mer. I Fetsund er det også flere matbutikker (ca. 3 min. fra boligen med bil), togforbindelse, bussforbindelse. Kun 9 minutters gange til Svingen stasjon. Der går det tog til Oslo S på 22 min. På sommerstid er det herfra ca. 12 min. kjøring til Gansvika, et fint bade- og familiested ved Øyeren. Det er også fine turmuligheter i nærområdet. Vinterstid er det gode muligheter for skigåing.
Se kart for mer informasjon.
Adkomst
se www.finn.no/kart
Eiendommens rom
Indre rom:
Stue, kjøkken, bad, soverom og innvendig bod.
Ytre rom:
Carport.
Standard
Vegger: Malte flater og flis.
Gulv: Laminat, flis, teppefliser som er lett å rengjøre.
Kjøkken med over- og underskap og integrerte hvitevarer.
Flislagt bad med varme i gulv. Vegghengt toalett, dusj med glassdør og servant innredning. Opplegg for vaskemaskin. Samsung AddWash vaskemaskin medfølger.
Inventar
Boligen leies ut umøblert.
Frittstående hvitevarer: vaskemaskin.
Integrerte hvitevarer: kombiskap, oppvaskmaskin, komfyr, steketopp.
Fasiliteter
Boligen har opplegg for internett.
Personlige abonnementer tegnes av leietaker og er ikke inkludert i husleien. Det tas forbehold om at lokale leverandører kan levere tjenesten.
Parkering
Parkering på biloppstillingsplass.
Eierforhold
Eierseksjon
Oppvarming
Boligen oppvarmes med elektrisitet.
Energimerking
Boligen har energikarakter B
Boligens energiattest, med oppvarmingskarakter, er tilgjengelig hos megler og utleveres ved forespørsel.
Egne abonnementer
Leietaker tegner eget abonnement for strøm.
Husleie
Kr. 13 500 pr. måned. Vann og avløpsutgifter, grunnpakke internett og parkering er inkludert i leien.
Utleiers krav til sikkerhet
Som sikkerhet i dette leieforholdet kan leietaker velge å kjøpe leieboerforsikring levert av IF eller opprette depositumskonto i SpareBank 1 SMN.
Sikkerhetsbeløpet for forsikring og depositum er fra 3 måneders husleie.
Velges leieboerforsikring fra IF er kostnaden 2,6% av løpende månedsleie, minimum kr 300,- og maksimalt beløp kr 700,- pr mnd. Forsikringspremien er en del av leien, og betales ved forfallstidspunktet for husleien. If vil kreve regress fra leietaker ved leietakers mislighold som medfører utbetaling fra forsikringen.
Ta kontakt med megler i Utleiemegleren for å finne ut om du tilfredsstiller vilkårene for å tegne leieboerforsikring levert av IF.
Leietiden og partenes oppsigelsesadgang
Overtakelse: 01.04.2025
Leietid: 01.04.2026 - 31.03.2029
Oppsigelsestiden i dette leieforholdet er 3 måneder for begge parter.
Leieforholdet har en bindingstid frem til 31.12.2026, og dette er første mulige tidspunkt en oppsigelse kan ha virkning fra. Sies leieforholdet opp innen denne dato vil leieforholdet ha en minste leietid frem til 31.03.2027.
Oppsigelser levert etter utløp av bindingstiden den 31.12.2026 vil ha virkning den første dag i den påfølgende måneden etter at oppsigelsen er mottatt.
Tidligste opphør av leiekontrakten ved oppsigelse forutsetter at leiekontrakten starter på det tidspunktet som er nevnt ovenfor.
Prospekt
Denne annonsen gir ikke komplett informasjon om boligen, og interessenter oppfordres til å lese prospektet.
Kontraktsinngåelse
Etter kontraktsinngåelse forfaller en måneds husleie til betaling.
Visning
Meld interesse via vårt digitale interessentskjema.
Kontaktperson
Per Martin Haugen
Saksnummer
56023/0046-26
Matrikkelinformasjon
Visning
Utleiemegleren Lillestrøm
Nyttige lenker
Nærområdet
Annonsene kan være mangelfulle i forhold til lovpålagt opplysningsplikt. Før bindende avtale inngås oppfordres interessenter til å innhente komplett informasjon fra meglerforetaket, selger eller utleier.








