Bildegalleri

Velkommen til Brutorget 8
BRUTORGET | Svært attraktiv leilighet med 4 soverom og 2 bad | Sentral beliggenhet
- Månedsleie
- 15 000 kr
Nøkkelinfo
- Internt bruksareal
- 112 m² (BRA-i)
- Bruksareal
- 112 m²
- Boligtype
- Leilighet
- Soverom
- 4
- Etasje
- 4.
- Leieperiode
- 01.02.2026 - 31.01.2029
- Energimerking
- C
Fasiliteter
Beskrivelse
Innhold
En meget romslig og særs attraktiv leilighet i hjertet av Hønefoss. Med en beliggenhet midt i sentrum, har man alle tilgjengelige sentrumsfasiliteter innenfor gangavstand. Bussholdeplass og togstasjon også like utenfør døren.
Oppvarming via fjernvarme, samt forbruk av vann og avløp betales av leietaker og er ikke inkludert i husleien.
Leieboerforsikring – En enklere måte å leie bolig på!
Med Leieboerforsikring levert av If kan du flytte rett inn i ny bolig uten å tenke på hverken depositum eller innboforsikring.
Fordeler med Leieboerforsikring:
-Du slipper å innbetale depositum
-Innboforsikring som gjelder for alle som bor i boligen
-Unik uhellsdekning
-Månedlig betaling
Leieboerforsikring leveres av If Skadeforsikring. Ved mislighold av leiekontrakt vil leietaker holdes økonomisk ansvarlig av If for utleiers tap, på lik linje som ved en depositumskonto. Leieboerforsikring koster 2,6% (min. 300 kr, maks. 700 kr) av leieprisen, og legges til månedsleien.
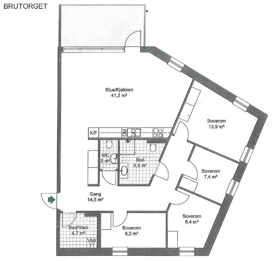
Eiendommens rom
Indre rom:
Leiligheten ligger i fjerde etasje og inneholder: entré/gang, vaskerom/bad, fire soverom, bad/WC, separat WC, samt stue med åpen kjøkkenløsning.
Ytre rom:
Fra stuen er det utgang til innglasset balkong. Det medfølger i tillegg en kjellerbod.
Standard
Gulv: parkett og fliser. Vegger: malte flater, fliser og våtromsplater. For øvrig en leilighet som holder høy standard. Leiligheten har de fasiliteter som man forventer av en leilighet fra 2018; komfyrvakt, waterguard, fjernbetjente screens/solskjerming, balansert ventilasjon og vannbåren gulvvarme. Kjøkken- og baderomsinnredning fra Sigdal. Dusjhjørne på hovedbaderom, dusjkabinett på vaskerom/bad. For øvrig godt med garderobeplass både på soverom og i skyvedørsgarderoben i gangen.
Inventar
Boligen leies ut umøblert. Følgende hvitevarer medfølger: kombiskap (kjøl/frys), oppvaskmaskin og komfyr med platetopp.
Fasiliteter
Boligen har heis, dørtelefon, balkong, samt opplegg for TV og Internett fra Fiber1 (Altibox).
Personlige abonnementer tegnes av leietaker og er ikke inkludert i husleien. Det tas forbehold om at lokale leverandører kan levere tjenesten.
Parkering
Parkering i gate etter gjeldende bestemmelser. Garasjeplass i kjeller kan leies av Tronrud Eiendom AS.
Eierforhold
Eierseksjon
Oppvarming
Boligen oppvarmes med elektrisitet og vannbåren gulvvarme.
Energimerking
Boligen har energikarakter C
Boligens energiattest, med oppvarmingskarakter, er tilgjengelig hos megler og utleveres ved forespørsel.
Egne abonnementer
Leietaker tegner eget abonnement for strøm.
Husleie
Kr. 15 000 pr. måned.
Utleiers krav til sikkerhet
Som sikkerhet i dette leieforholdet kan leietaker velge å kjøpe leieboerforsikring levert av IF eller opprette depositumskonto i SpareBank 1 SMN.
Sikkerhetsbeløpet for forsikring og depositum er fra 3 måneders husleie.
Velges leieboerforsikring fra IF er kostnaden 2,6% av løpende månedsleie, minimum kr 300,- og maksimalt beløp kr 700,- pr mnd. Forsikringspremien er en del av leien, og betales ved forfallstidspunktet for husleien. If vil kreve regress fra leietaker ved leietakers mislighold som medfører utbetaling fra forsikringen.
Ta kontakt med megler i Utleiemegleren for å finne ut om du tilfredsstiller vilkårene for å tegne leieboerforsikring levert av IF.
Leietiden og partenes oppsigelsesadgang
Overtakelse: 01.02.2026
Leietid: 01.02.2026 - 31.01.2029
Oppsigelsestiden i dette leieforholdet er 3 måneder for begge parter.
Leieforholdet har en bindingstid frem til 31.10.2026, og dette er første mulige tidspunkt en oppsigelse kan ha virkning fra. Sies leieforholdet opp innen denne dato vil leieforholdet ha en minste leietid frem til 31.01.2027.
Oppsigelser levert etter utløp av bindingstiden den 31.10.2026 vil ha virkning den første dag i den påfølgende måneden etter at oppsigelsen er mottatt.
Tidligste opphør av leiekontrakten ved oppsigelse forutsetter at leiekontrakten starter på det tidspunktet som er nevnt ovenfor.
Prospekt
Denne annonsen gir ikke komplett informasjon om boligen, og interessenter oppfordres til å lese prospektet.
Kontraktsinngåelse
Etter kontraktsinngåelse forfaller en måneds husleie til betaling.
Visning
Meld interesse via vårt digitale interessentskjema.
Kontaktperson
Morten Holmen
Saksnummer
32065/0006-26
Matrikkelinformasjon
Visning
Utleiemegleren Drammen
Nyttige lenker
Nærområdet
Annonsene kan være mangelfulle i forhold til lovpålagt opplysningsplikt. Før bindende avtale inngås oppfordres interessenter til å innhente komplett informasjon fra meglerforetaket, selger eller utleier.









