Bildegalleri

Huset fra front mot byen
Stor enebolig i rolig område med flott utsikt og turmuligheter
- Månedsleie
- 25 000,–
- Depositum
- 75 000,–
Nøkkelinfo
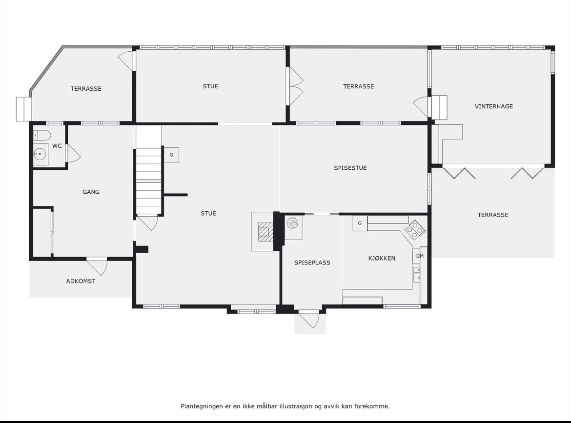
- Internt bruksareal
- 337 m² (BRA-i)
- Boligtype
- Enebolig
- Soverom
- 4
- Leieperiode
- 02.01.2026
Fasiliteter
Beskrivelse
Om boligen
Huset er lyst og trivelig med en god planløsning over 3 etasjer. Siden boligen leies ut møblert, kan du flytte rett inn med kun kofferten.
• Møblering: Fullt møblert (inkluderer sofagruppe, senger, spisebord og hvitevarer).
• Uteområde: Egen hage/uteplass og romslig terrasse med upåklagelig utsikt og sol fra morgen til kveld.
• Parkering: Garasje og parkering ved siden av garasjen
• Leieperiode: Vi er fleksible på varighet. Leieperiode avtales nærmere etter behov.
Beliggenhet
Huset ligger i et rolig og etablert nabolag på Nerby. Her bor du med skogen som nærmeste nabo, men samtidig med enkel tilgang til alt Gjøvik har å by på:
• Natur: Umiddelbar nærhet til flotte turstier / langrennsløyper og rekreasjonsområder.
• Skole/Barnehage: Kort vei til trygge oppvekstmiljøer.
• Sentrum: Rask adkomst til Gjøvik sentrum, sykehuset og NTNU.
Praktisk info
• Leieperiode: Etter avtale (fleksibel).
•Oppvarming: det er varmepumpe i første etasje og vedovn i både 1 og 2. etasje. Kost fir oppvarming og strøm kommer i tilegn til månedlig leie.
Visning og kontakt
Vi ønsker ordensmennesker som vil ta godt vare på huset vårt. Send en melding med litt informasjon om hvem dere er og hvor lenge dere ønsker å leie, så tar vi kontakt for å avtale visning.
Visning
Hybel.no
Nyttige lenker
Nærområdet
Annonseinformasjon
| FINN-kode | 444716712 |
|---|---|
| Sist endret | 05. jan. 2026 20:32 |
| Referanse | hus-annet-roms-nerby-terrasse-31-gjovik |
Annonsene kan være mangelfulle i forhold til lovpålagt opplysningsplikt. Før bindende avtale inngås oppfordres interessenter til å innhente komplett informasjon fra meglerforetaket, selger eller utleier.





























