Bildegalleri

Kjøkken/stue - bilder fra tilsvarende leilighet
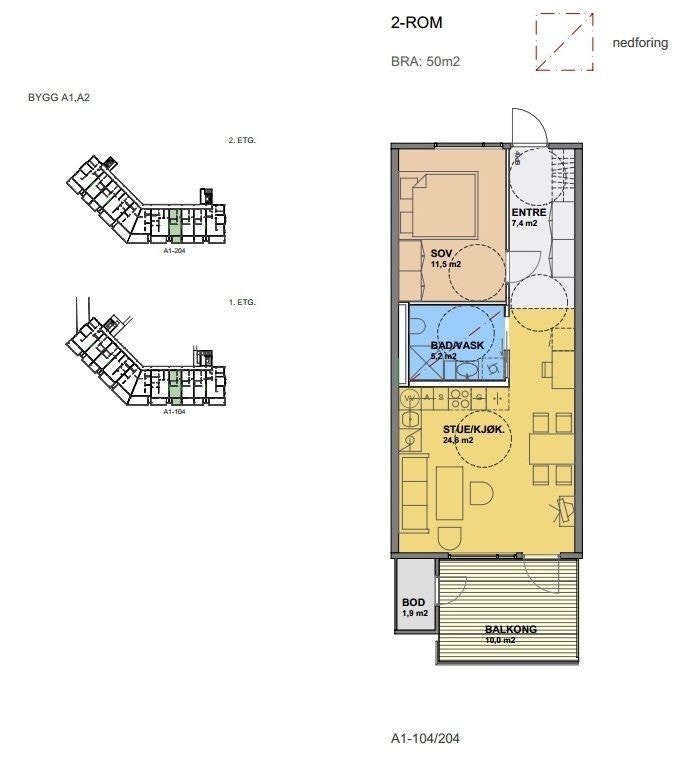
Brånåslia - Stor og moderne 2-roms leilighet med balkong og garasjeplass - Utsikt og gode solforhold - ledig 1/3
- Månedsleie
- 13 500 kr
Nøkkelinfo
- Internt bruksareal
- 52 m² (BRA-i)
- Bruksareal
- 52 m²
- Boligtype
- Leilighet
- Soverom
- 1
- Leieperiode
- 01.03.2026 - 28.02.2029
- Energimerking
- C
Fasiliteter
Beskrivelse
Innhold
Leilighetsbygg over 2 etasjer. Leiligheten fremstår som meget lys og luftig med god standard. Bygget er fra Desember 2012.
Bygning med bærekonstruksjon i plasstøpt betong med stålsøyler og ståldragere på gavler.
_________________________
INTERESSERT I VISNING OG/ELLER MER INFO?
Fyll ut interesseskjema eller send meg en melding via annonsen.
Jeg tar da kontakt for å avtale visning, og kommer med mer info.
Husk tlf nr.
_________________________
Leieboerforsikring – En enklere måte å leie bolig på!
Med Leieboerforsikring levert av If kan du flytte rett inn i ny bolig uten å tenke på hverken depositum eller innboforsikring.
Fordeler med Leieboerforsikring:
-Du slipper å innbetale depositum
-Innboforsikring som gjelder for alle som bor i boligen
-Unik uhellsdekning
-Månedlig betaling
Leieboerforsikring leveres av If Skadeforsikring. Ved mislighold av leiekontrakt vil leietaker holdes økonomisk ansvarlig av If for utleiers tap, på lik linje som ved en depositumskonto. Leieboerforsikring koster 2,6% (min. 300 kr, maks. 700 kr) av leieprisen, og legges til månedsleien.
Beliggenhet
Beliggende i nyetablert og populært boligområde midt mellom Oslo og Gardermoen. Sentralt og barnevennlig område .Korte avstander til offentlige og private servicetilbud.
Adkomst
Fra Oslo kjører du av E6 ved Olavsgård. ta til høyre på toppen og kjør rett frem mot Lillestrøm. Kjør forbi bensinstasjon på venstre side og ta venstre ved rundkjøringen. Følg denne veien forbi Holt Vestvollen, under motorveien og ta av til venstre ved Coop. Brånåslia får du på høyre side rett etter Coop.
Eiendommens rom
Indre rom:
Entre, soverom, bad, stue med åpen kjøkkenløsning og utgang til romslig balkong.
Ytre rom:
Bod.
Standard
Moderne 2 -roms leilighet med en god standard.
Gulv: 3 stavs woodlineparkett eik naturale hvit matt lakk.
Vegger: Malte flater.
Tak: Malte tak.
Kjøkken: Moderne og tiltalende åpen kjøkkenløsning. Sigdal kjøkken med integrerte kombiskap, komfyr og oppvaskmaskin.
Bad: Pent flislagt bad med vegghengt wc, dusj med dusjvegger, baderomsinnredning med servant og opplegg for vaskemaskin.
Inventar
Boligen leies ut umøblert.
Integrerte hvitevarer: kombiskap, oppvaskmaskin, komfyr, steketopp.
Fasiliteter
Boligen har heis, opplegg for kabel-tv, opplegg for bredbånd.
Personlige abonnementer tegnes av leietaker og er ikke inkludert i husleien. Det tas forbehold om at lokale leverandører kan levere tjenesten.
Parkering
Parkering i fellesgarasje.
Eierforhold
Eierseksjon
Oppvarming
Boligen oppvarmes med elektrisitet.
Energimerking
Boligen har energikarakter C
Boligens energiattest, med oppvarmingskarakter, er tilgjengelig hos megler og utleveres ved forespørsel.
Egne abonnementer
Leietaker tegner eget abonnement for strøm.
Husleie
Kr. 13 500 pr. måned. Vann og avløpsutgifter og parkering er inkludert i leien.
Utleiers krav til sikkerhet
Som sikkerhet i dette leieforholdet kan leietaker velge å kjøpe leieboerforsikring levert av IF eller opprette depositumskonto i SpareBank 1 SMN.
Sikkerhetsbeløpet for forsikring og depositum er fra 3 måneders husleie.
Velges leieboerforsikring fra IF er kostnaden 2,6% av løpende månedsleie, minimum kr 300,- og maksimalt beløp kr 700,- pr mnd. Forsikringspremien er en del av leien, og betales ved forfallstidspunktet for husleien. If vil kreve regress fra leietaker ved leietakers mislighold som medfører utbetaling fra forsikringen.
Ta kontakt med megler i Utleiemegleren for å finne ut om du tilfredsstiller vilkårene for å tegne leieboerforsikring levert av IF.
Leietiden og partenes oppsigelsesadgang
Overtakelse: 01.03.2026
Leietid: 01.03.2026 - 28.02.2029
Oppsigelsestiden i dette leieforholdet er 3 måneder for begge parter.
Leieforholdet har en bindingstid frem til 30.11.2026, og dette er første mulige tidspunkt en oppsigelse kan ha virkning fra. Sies leieforholdet opp innen denne dato vil leieforholdet ha en minste leietid frem til 28.02.2027.
Oppsigelser levert etter utløp av bindingstiden den 30.11.2026 vil ha virkning den første dag i den påfølgende måneden etter at oppsigelsen er mottatt.
Tidligste opphør av leiekontrakten ved oppsigelse forutsetter at leiekontrakten starter på det tidspunktet som er nevnt ovenfor.
Prospekt
Denne annonsen gir ikke komplett informasjon om boligen, og interessenter oppfordres til å lese prospektet.
Kontraktsinngåelse
Etter kontraktsinngåelse forfaller en måneds husleie til betaling.
Visning
Meld interesse via vårt digitale interessentskjema.
Kontaktperson
Alexander Simonsen
Saksnummer
19973/0837-25
Matrikkelinformasjon
Visning
Utleiemegleren Lillestrøm
Nyttige lenker
Nærområdet
Annonsene kan være mangelfulle i forhold til lovpålagt opplysningsplikt. Før bindende avtale inngås oppfordres interessenter til å innhente komplett informasjon fra meglerforetaket, selger eller utleier.









