Bildegalleri

Leilighet i Trondheim ledig fra 05.01.2026
- Månedsleie
- 21 000,–
- Depositum
- 50 000,–
Nøkkelinfo
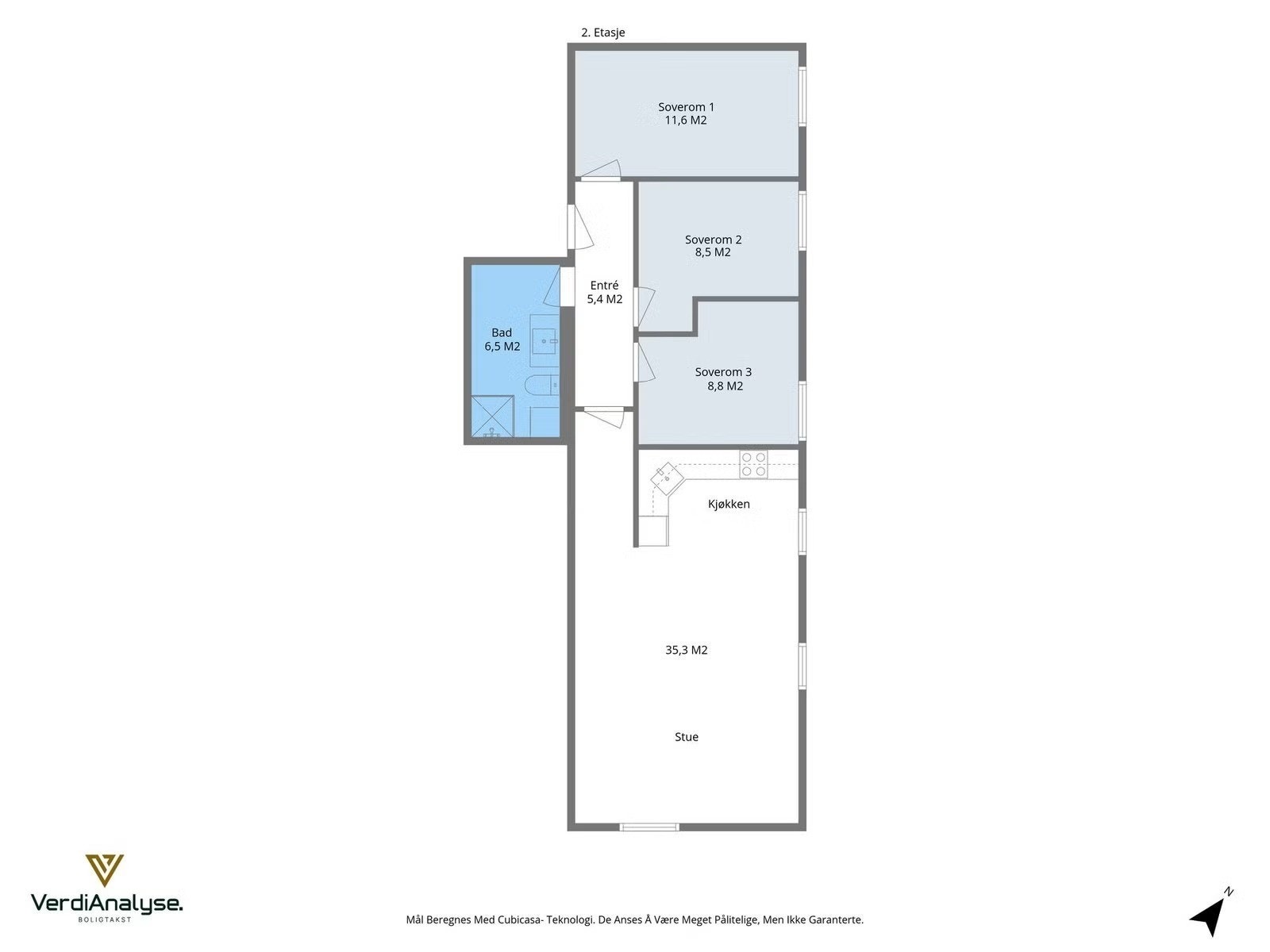
- Primærrom
- 95 m²
- Boligtype
- Leilighet
- Soverom
- 3
- Etasje
- 2.
- Leieperiode
- 05.01.2026
- Byggeår
- 1945
- Energimerking
- - Mørkegrønn
Fasiliteter
Beskrivelse
Leilighet på 95 kvm på Ulavegen 8 i Trondheim leies ut fra 05.01.2026. Boligen er umøblert. Den innehar fasiliteter som garasje/p-plass, kabel-tv. Leiligheten leies ut for 21 000,00 kr per måned. Husleien inkluderer komfyr, oppvaskmaskin, kjøleskap . Depositumet, som må være på plass innen overtakelsen av boligen, er 50 000,00 kr.
Vennligst benytt interesseskjemaet i menyen til høyre. Klikk på knappen "Meld interesse her".
Forvaltning på Husleie.no
Utleier vil forvalte leieforholdet på Husleie.no. For leietaker betyr dette i all hovedsak at husleien faktures og innkreves av Husleie.no
Husleiekontrakt
For partenes trygghet vil utleier benytte Husleie.no sin leiekontrakt. Begge parter signerer kontrakten med BankID.
Depositumskonto
Depositumet skal innbetales til depositumskonto i Instabank opprettet av utleier på Husleie.no
Kredittsjekk
Utleier kan velge å kredittsjekke potensielle leietakere på Husleie.no. Det vil da bli stilt krav om inntekt og null betalingsanmerkninger.
Visning
Ta kontakt for å avtale visning.Husleie.no
Nærområdet
Annonsene kan være mangelfulle i forhold til lovpålagt opplysningsplikt. Før bindende avtale inngås oppfordres interessenter til å innhente komplett informasjon fra meglerforetaket, selger eller utleier.

























