Bildegalleri

Et av soverommene
Skuteviken – Nyoppusset 3 ledige rom i bofellesskap | 2 bad | Wifi og strøm inkl.-
- Månedsleie
- 8 000,–
- Depositum
- 16 000,–
Nøkkelinfo
- Internt bruksareal
- 12 m² (BRA-i)
- Boligtype
- Rom i bofellesskap
- Soverom
- 3
- Etasje
- 3.
- Leieperiode
- 18.12.2025
Fasiliteter
Beskrivelse
Vi leier ut en lys og moderne 6-roms leilighet i hjertet av Skuteviken – et av Bergens mest populære og sjarmerende områder. Her bor du i rolige omgivelser med kort vei til sentrum, NHH, UiB og HVL, samtidig som du har sjø, fjell, Bryggen, bakeri og restauranter rett utenfor døren
Leiligheten er totalrenovert i 2025 og holder gjennomgående moderne standard.
Areal: ca. 92 m² BRA
Innflytting: Ledig fra og med desember 2025
Beliggenhet: 6 min gangtid til bryggen.
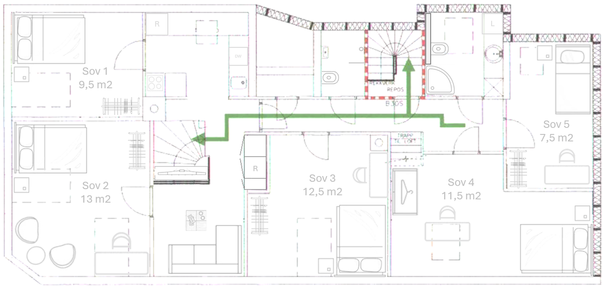
Rom og månedlig leie:
• Sov 1 (9,5 m²): 8000,- pr mnd. Ledig fra 1.april
• Sov 2 (13 m²): UTLEID
• Sov 3 (12,5 m²): 8900,- pr mnd. Ledig fra 1.april
• Sov 4 (11 m²): 8700,- pr mnd. Ledig fra 1.mars
• Sov 5 (7,5 m²): UTLEID
Leiligheten inneholder
• 5 lyse og romslige soverom
• 2 helt nye bad – begge med dusj og WC
• Kjøkken med integrerte hvitevarer + ekstra kjøleskap og lagring
• Hyggelig fellesområde i tilknytning til kjøkken
• Felles vaskemaskin på bad
• Basismøbler inkludert: seng (uten overmadrass), skrivebord, nattbord, sofa og tv i fellesareal
• Raskt bredbånd inkludert i leien
• Helt nytt El og VVS-anlegg, brannvarsling etter dagens krav
Basismøbler og internett inkludert i leien
Strøm og kostnader
• Inntil 10 000 kWh strøm per år inkludert i husleien
• Eventuelt merbruk avregnes rettferdig etter fast fordelingsnøkkel
• Internett inkludert
• Ingen felleskostnader
Kontrakt og vilkår
• Tidsbestemt leieavtale på 3 år, med utvidet oppsigelsesrett
• Leietaker kan si opp med 3 måneders varsel, med fratredelse 1. januar eller 1. august
• Mulighet for overdragelse av kontrakt til ny godkjent leietaker
• Depositum: 2 måneders leie, innbetales til depositumskonto
• Røykfritt og ikke dyrehold
Les mer om vilkår og ofte stilte spørsmål under “Leiemodeller” på vår hjemmeside
Leiemodeller:
• Enkeltrom: Egenkontrakt for hvert rom
• Gruppeleie: Hele leiligheten kan leies samlet med rabatterte alternativer (Dette kan diskuteres ut fra gruppens ønsker.
Ta kontakt om du har spørsmål.
Svenn Egil Aarekol - 41554272
Visning
Hybel.no
Nærområdet
Annonseinformasjon
| FINN-kode | 440090792 |
|---|---|
| Sist endret | 31. jan. 2026 08:37 |
| Referanse | rom-i-bofellesskap-skuteviksveien-31-bergen |
Annonsene kan være mangelfulle i forhold til lovpålagt opplysningsplikt. Før bindende avtale inngås oppfordres interessenter til å innhente komplett informasjon fra meglerforetaket, selger eller utleier.





























