Bildegalleri

God utsikt
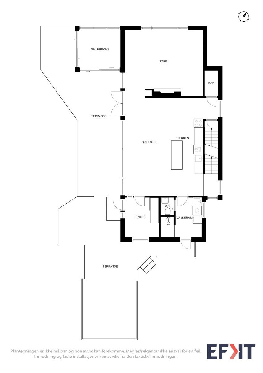
Moderne arkitekttegnet enebolig i barnevennlig område
- Månedsleie
- 15 000,–
- Depositum
- 45 000,–
Nøkkelinfo
- Internt bruksareal
- 200 m² (BRA-i)
- Boligtype
- Enebolig
- Soverom
- 4
- Etasje
- 1.
- Leieperiode
- 10.01.2026
Fasiliteter
Beskrivelse
Spennende arkitekttegnet eiendom med familievennlig
beliggenhet på Tallmoen, med marka som nærmeste nabo.
Boligen er gjennomført med påkostet standard, moderne detaljer og et
åpent og luftig preg. Boligen blir varmet opp med vannbåren
gulvvarme og har balansert ventilasjonssystem med
varmegjenvinner. Det er valgt materialer av høy standard
med et gjennomført preg. Vinduene strekker seg fra gulv til
tak og fyller rommene med mye naturlig lys og en følelse av
nærhet til naturen og skogen - som ligger tett på. Boligen
har en effektiv planløsning over tre plan med gode løsninger.
Her har du totalt fire soverom og to bad - hvor av ett er
kombinert vaskerom med egen utvendig adkomst. Utvendig
har boligen flere fine uteplasser, innglasset hagestue og en
dobbel garasje med hems. Med grense til skogen har du fine
turområder rett utenfor døren og naturen tett på. Fra
eiendommen er det også kort veg til både skole, barnehage
og sentrum av Rena. For deg som er utkikk etter en unik
bolig utenom det vanlige - er dette en sjelden mulighet!
Hybel i kjelleretasjen er ikke en del av denne kontrakten.
Boligen kan leies frem til august 2027, med 3 måneders gjensidig oppsigelse.
Visning
Hybel.no
Nyttige lenker
Nærområdet
Annonseinformasjon
| FINN-kode | 435571319 |
|---|---|
| Sist endret | 25. jan. 2026 13:16 |
| Referanse | hus-6-roms-haralosen-9-rena |
Annonsene kan være mangelfulle i forhold til lovpålagt opplysningsplikt. Før bindende avtale inngås oppfordres interessenter til å innhente komplett informasjon fra meglerforetaket, selger eller utleier.



























