Bildegalleri

Nye leiligheter nært Sykkylven sentrum
- Månedsleie
- 12 500 kr
- Depositum
- 0 kr
Nøkkelinfo
- Internt bruksareal
- 60 m² (BRA-i)
- Eksternt bruksareal
- 5 m² (BRA-e)
- Balkong/Terrasse
- 7 m² (TBA)
- Boligtype
- Leilighet
- Soverom
- 2
- Leieperiode
- 01.05.2026
- Energimerking
- B
Fasiliteter
Beskrivelse
8 sentrumsnære, moderne og praktiske leiligheter under oppføring for utleie. Alle leilighetene har privat balkong eller terrasse, sportsbod og parkeringsplass. Her bor du komfortabelt med kort vei til alt du trenger i hverdagen.
INNHOLD
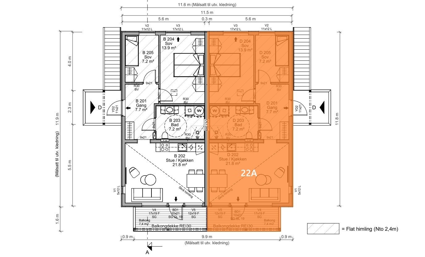
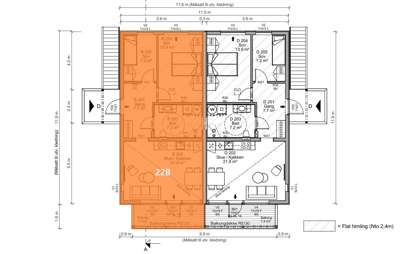
Eiendommen består av 8 like leiligheter fordelt på to firemannsboliger.
Hver leilighet inneholder entré/gang, to soverom, dusj/wc, vaskerom samt stue med åpen kjøkkenløsning og utgang til egen privat balkong/terrasse. Egen utvendig sportsbod i bodbygg.
STANDARD
Leilighetene er bygget i henhold til gjeldende byggestandard (TEK17). Overflatene er gjennomgående lyse og moderne, og planløsningene er praktiske og funksjonelle. Balansert ventilasjon med varmegjenvinning i hver leilighet. Varmekabler i våtrom. Panelovn i stue (1000W) og på hvert soverom (500W). Sensorstyrt utebelysning.
Disse leilighetene er et svært godt valg for deg som ønsker en moderne bolig, et stabilt leieforhold hos en profesjonell utleier og et hjem med god kvalitet. Med kort vei til sentrum, kollektivtilbud og servicetilbud ligger alt til rette for en komfortabel og praktisk hverdag.
LEIEPRIS
Leieprisen inkluderer alle felleskostnader slik som kommunale avgifter, plenklipping, snørydding med traktor (snømåking av gangveier og trapper er leietakers ansvar), felles strøm, brannforsikring, service og kontroll på brannalarm og felles vedlikehold. Det som kommer i tillegg til leieprisen er hver enkelt sin innboforsikring, strøm i egen leileghet og eventuelt bredbåndabonnement.
PARKERING
Eiedommen har parkering på egen grunn. På gårdsplassen er det gratis utvendige parkeringsplasser.
Visning
Ta kontakt for å avtale visning.Aursnes | Hjemmelkompaniet | Prosjektutbygging
Nærområdet
Annonsene kan være mangelfulle i forhold til lovpålagt opplysningsplikt. Før bindende avtale inngås oppfordres interessenter til å innhente komplett informasjon fra meglerforetaket, selger eller utleier.






