Bildegalleri

Rett ved buss stasjonen
Sentrumskollektiv - EGET BAD på rommet, fullt møblert og nyoppusset 2025
- Månedsleie
- 5 400 kr
- Depositum
- 9 900 kr
Nøkkelinfo
- Primærrom
- 15 m²
- Boligtype
- Rom i bofellesskap
- Soverom
- 7
- Etasje
- 1.
- Leieperiode
- 01.08.2026 - 31.07.2027
- Bruttoareal
- 122 m²
- Energimerking
Fasiliteter
Beskrivelse
Ta kontakt for visning eller trykk på 3d visningen i annonsen
3d Visning: https://my.matterport.com/show/?m=gnreks6wsNQ
Helt nytt kollektiv med høy standard (Nyoppusset sommeren 2025)
Ønsker du å bo i noe som føles splitter nytt? Da er dette kollektivet noe for deg! Her bor du moderne, energieffektivt og komfortabelt – supersentralt! Boligen er fullt møblert. Her kan du flytte rett inn uten å tenke på noe som helst!
Om boligen
Denne boligen er totalrenovert i 2025. Det er lagt vekt på kvalitet og smarte løsninger. Boligen er etterisolert og har varmepumpe for lavere strømregning og god komfort året rundt. Her flytter du inn i et hjem som oppleves som nytt!
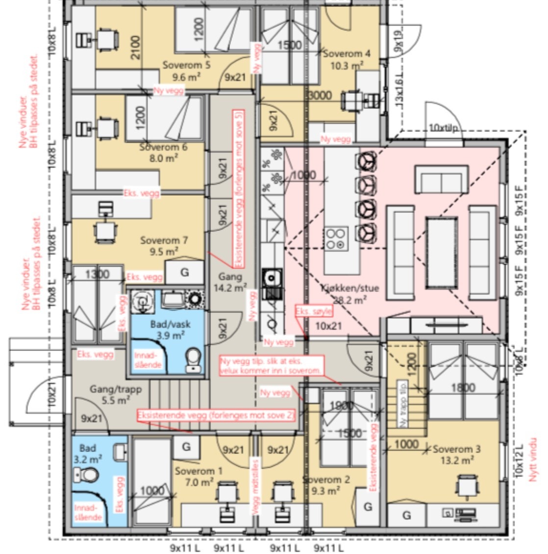
Planløsning
Boligen har en praktisk planløsning med felles kjøkken og oppholdsrom, og flere romslige soverom med plass til både seng, skrivebord og skap. boligen er fullt møblert. Mæblene er også det meste nytt eller brukt med høy standard. Plantegning følger annonsen. Høy standard. God kvalitet på senger (kjøpt 2025 og er ikke de billigste)
Fellesareal
Utstyrt kjøkken og stue fullt møblert og moderne, med god plass til å lage mat og slappe av. Her får du et hjem du vil trives i!
Beliggenhet
Kollektivet ligger sentralt med kort vei til både skole, buss og dagligvare. Perfekt for studenter som ønsker å bo nær det meste. Hoved bussstasjonen i Haugesund ligger 2 min gangavstand. Her går det buss til Bergen, Stavanger og Oslo. Sentrum er en kort spasertur unna.
Inkludert/Standard
- Totalrenovert i 2025
- 3 Bad (ett av de hører til det ene soverommet)
- Etterisolert og energieffektiv bolig
- Varmepumpe
- Internett inkludert
- Møblert og utstyrt
- Høy standard på kjøkken og bad (alt nytt)
- Klar for innflytting 01.08.2026
- Alarm og brannvarsling tilkoblet sentral fra Verisure
- Kodelås på dør for nøkkelfri adkomst
- Faste vaskeplaner
- Nøye utvelgelseprosess
- Depositumskonto eller depositumsgaranti fra tryg forsikring
Visning
Ta kontakt for å avtale visning.Glr AS
Nyttige lenker
Nærområdet
Annonsene kan være mangelfulle i forhold til lovpålagt opplysningsplikt. Før bindende avtale inngås oppfordres interessenter til å innhente komplett informasjon fra meglerforetaket, selger eller utleier.



























