Bildegalleri

Velkommen til Vestgrensa 4!
ULLEVÅL - Flott 3-roms leilighet med egen balkong - Ledig fra januar 2026!
- Månedsleie
- 22 500,–
- Depositum
- 45 000,–
Nøkkelinfo
- Internt bruksareal
- 50 m² (BRA-i)
- Boligtype
- Leilighet
- Soverom
- 2
- Etasje
- 2.
- Leieperiode
- 01.04.2026
Fasiliteter
Beskrivelse
Velkommen til Vestgrensa 4!
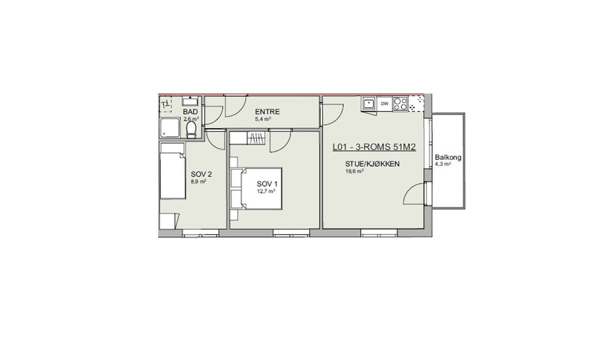
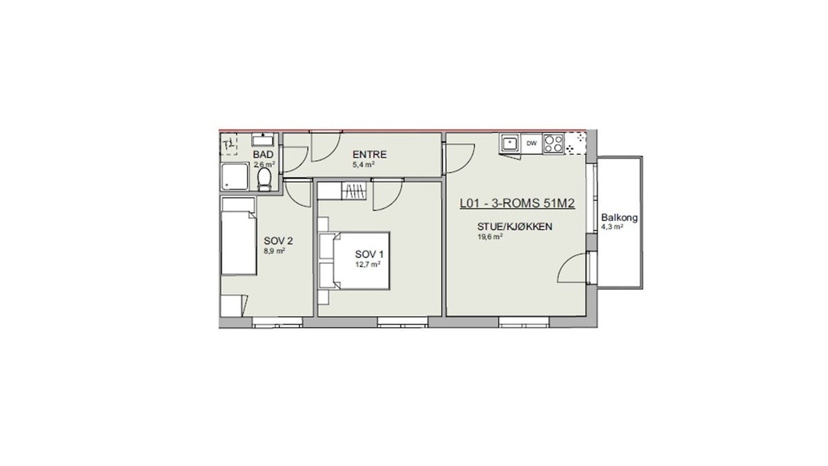
Leiligheten har god takhøyde, 2 soverom, stue med åpen kjøkkenløsning, bad med opplegg for vaskemaskin og egen balkong. Vi har flere leiligheter som blir ledige i bygget - både 2 og 3 soverom. Innflyttingsdato kan tilpasses. Ta kontakt for å høre mer om hva vi har ledig!
Leiligheten har en ettertraktet og attraktiv beliggenhet på John Colletts Plass på Ullevål/Blindern i Oslo med kort vei til Universitetet i Oslo og god offentlig kommunikasjon et steinkast unna med blant annet trikk fra John Colletts Plass, T-bane fra Ullevål Stadion/Forskningsparken og buss fra Sognsveien.
Leiligheten har det meste av servicetilbud rett utenfor døra med Kiwi, Eckers Cafe, Treningsenter, Pizza Pancetta, frisør, apotek med mer.
Overtakelse:
01.02.2026.
Muligheter for å leie andre leiligheter i bygget med tidligere innflyttingsdato.
Oppvarming og strøm:
Strøm og oppvarming er ikke inkludert i husleien. Leietaker tegner eget abonnement. Leiligheten har egen varmtvannsbreder i leilighet.
Internett:
Inkludert i leien har du også en basishastighet for internett som gir deg muligheten til å utføre grunnleggende oppgaver på internett. Hastigheten lar seg enkelt oppgradere ved behov til gunstige priser, men bekostes av leietaker.
Sikkerhetsstillelse:
Leietakere kan velge mellom 2 mnd. depositum eller leiegaranti via Hybel.no
Leiebetingelser:
Ni måneders bindingstid og tre måneders oppsigelse etter de ni første måneder.
Parkering:
Beboerparkering i området.
Visning:
Visning etter avtale. Aktuelle leietakere vil bli kontaktet vedrørende visning.
Ta kontakt for å høre mer om andre ledige boliger i bygget!
Vi tar referanse- og kredittsjekk av aktuelle leietakere.
Vi tar forbehold om feil i annonsen.
Visning
Ta kontakt for å avtale visning.Hybel.no
Nærområdet
Annonseinformasjon
| FINN-kode | 412022394 |
|---|---|
| Sist endret | 02. mars 2026 14:14 |
| Referanse | leilighet-3-roms-vestgrensa-4-oslo |
Annonsene kan være mangelfulle i forhold til lovpålagt opplysningsplikt. Før bindende avtale inngås oppfordres interessenter til å innhente komplett informasjon fra meglerforetaket, selger eller utleier.
















