Bildegalleri

Velkommen til Jørgenstrøa 2 - En pen og romslig 2.romsleilighet beliggende på Tanem!
TANEM| Pen og romslig 2-romsleilighet- Parkering medfølger - Ledig omgående
- Månedsleie
- 10 000 kr
Nøkkelinfo
- Internt bruksareal
- 57 m² (BRA-i)
- Bruksareal
- 57 m²
- Boligtype
- Leilighet
- Soverom
- 1
- Leieperiode
- 10.03.2025 - 09.03.2028
- Energimerking
- F
Fasiliteter
Beskrivelse
Innhold
Velkommen til Jørgenstrøa 2!
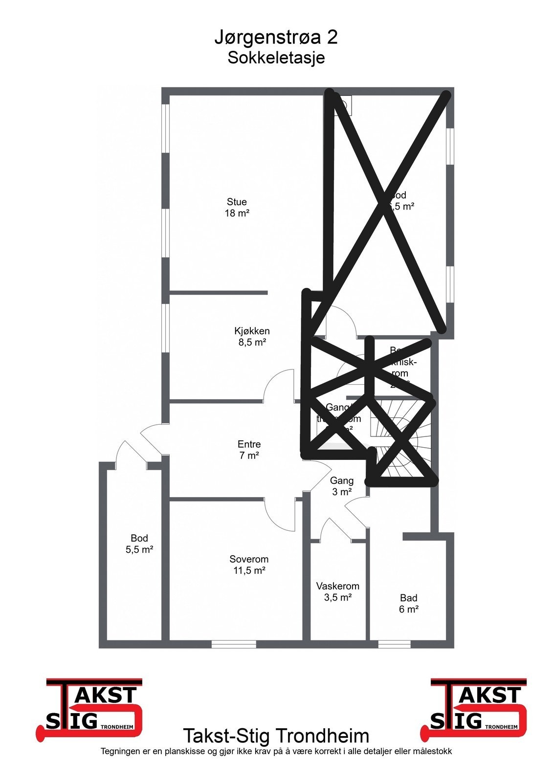
Her har du en pen og romslig 2-romsleilighet med landlig beliggenhet på Tanem.
Leiligheten består av en romslig entrè, stue-og kjøkken i delvis åpen løsning, et godt soverom, bad og vaskerom. Det er også en sportsbod utenfor inngangen på 5.5kvm som leietaker disponerer.
Det medfølger parkeringsplass til leiligheten.
Leiligheten er ledig omgående.
Er du interessert i visning? Ta kontakt med daniel.willadsen@utleiemegleren.no for mer informasjon.
Leieboerforsikring – En enklere måte å leie bolig på!
Med Leieboerforsikring levert av If kan du flytte rett inn i ny bolig uten å tenke på hverken depositum eller innboforsikring.
Fordeler med Leieboerforsikring:
-Du slipper å innbetale depositum
-Innboforsikring som gjelder for alle som bor i boligen
-Unik uhellsdekning
-Månedlig betaling
Leieboerforsikring leveres av If Skadeforsikring. Ved mislighold av leiekontrakt vil leietaker holdes økonomisk ansvarlig av If for utleiers tap, på lik linje som ved en depositumskonto. Leieboerforsikring koster 2,6% (min. 300 kr, maks. 700 kr) av leieprisen, og legges til månedsleien.
Beliggenhet
Boligen har en idyllisk usjenert og landlig beliggenhet i et idyllisk område ved Nidelva. Her er også kort vei til Klæbu sentrum med blant annet diverse butikker, treningssenter, bank, apotek, restauranter og frisør. Skoler, barnehage, og idrettsanlegg ligger også i nærheten.
Det er ellers kun en kort kjøretur til Trondheim sentrum, og det tar ca. 10 minutter med bil til Tiller og City Syd. Her finner du et bredt spekter av butikker og servicetilbud. Nærmeste busstopp ligger ca. 250 meter fra eiendommen. Her går det buss med hyppige avganger til både Klæbu sentrum og retning Trondheim.
Adkomst
Se kart i annonse!
Eiendommens rom
Indre rom:
Entrè, kjøkken, stue, soverom, vaskerom og bad.
Ytre rom:
Bod
Inventar
Boligen leies ut umøblert.
Frittstående hvitevarer: kjøleskap, komfyr, oppvaskmaskin.
Integrerte hvitevarer: steketopp.
Frittstående hvitevarer medfølger så lenge de virker, reparasjon/bytte inngår ikke i leieavtalen.
Fasiliteter
Boligen har utsikt , barnevennlig, rolig .
Parkering
Parkering på biloppstillingsplass.
Eierforhold
Eierseksjon
Oppvarming
Boligen oppvarmes med elektrisitet.
Energimerking
Boligen har energikarakter F
Boligens energiattest, med oppvarmingskarakter, er tilgjengelig hos megler og utleveres ved forespørsel.
Egne abonnementer
Leietaker tegner eget abonnement for strøm.
Husleie
Kr. 10 000 pr. måned. Vann og avløpsutgifter, parkering og alarm er inkludert i leien.
Utleiers krav til sikkerhet
Som sikkerhet i dette leieforholdet kan leietaker velge å kjøpe leieboerforsikring levert av IF eller opprette depositumskonto i SpareBank 1 SMN.
Sikkerhetsbeløpet for forsikring og depositum er fra 3 måneders husleie.
Velges leieboerforsikring fra IF er kostnaden 2,6% av løpende månedsleie, minimum kr 300,- og maksimalt beløp kr 700,- pr mnd. Forsikringspremien er en del av leien, og betales ved forfallstidspunktet for husleien. If vil kreve regress fra leietaker ved leietakers mislighold som medfører utbetaling fra forsikringen.
Ta kontakt med megler i Utleiemegleren for å finne ut om du tilfredsstiller vilkårene for å tegne leieboerforsikring levert av IF.
Leietiden og partenes oppsigelsesadgang
Overtakelse: 10.03.2025
Leietid: 10.03.2025 - 09.03.2028
Leieforholdet kan sies opp av begge parter med 3 måneders varsel om oppsigelse, regnet fra kontraktsstart. Oppsigelsestiden vil løpe fra den første dag i den påfølgende måned etter at oppsigelsen er mottatt. Dette innebærer at første mulige opphørstidspunkt i dette leieforholdet er 30.06.2025
Prospekt
Denne annonsen gir ikke komplett informasjon om boligen, og interessenter oppfordres til å lese prospektet.
Kontraktsinngåelse
Ved kontraktsinngåelse forfaller inntil 1 måneds husleie til betaling.
Visning
Bruk interessentskjema eller epost: frida.akeroy@utleiemegleren.no. Skriv visning + adressen på boligen i emnefeltet ved bruk av e-post.
Utleiemegleren holder både fellesvisninger og privatvisninger på sine boliger.
Ønsker du å melde interesse for boligen gjør du det ved å sende megler en melding gjennom annonsen eller ta kontakt pr e-post.
Vårt digitale-interessentskjema fyller du ut på eller i forkant av visning.
Utleiemegleren ønsker deg velkommen på visning!
Kontaktperson
Frida Hjortdahl Åkerøy
Saksnummer
65128/0102-25
Matrikkelinformasjon
Visning
Utleiemegleren Trondheim
Nyttige lenker
Nærområdet
Annonsene kan være mangelfulle i forhold til lovpålagt opplysningsplikt. Før bindende avtale inngås oppfordres interessenter til å innhente komplett informasjon fra meglerforetaket, selger eller utleier.








