Bildegalleri

Moderne og lettstelt leilighet på Fornebu. **Parkering.
- Månedsleie
- 20 000,–
- Depositum
- 63 000,–
Nøkkelinfo
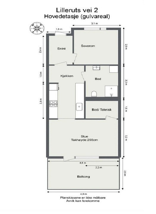
- Internt bruksareal
- 50 m² (BRA-i)
- Boligtype
- Leilighet
- Soverom
- 1
- Etasje
- 2.
- Leieperiode
- 01.03.2026
Fasiliteter
Beskrivelse
Leiligheten ligger i et attraktivt område på Fornebu, like ved Fornebu S kjøpesenter, som byr på et bredt utvalg av butikker, restauranter og servicetilbud.
Om leiligheten
Denne moderne og lettstelte 2-roms leiligheten har en høy standard, med gjennomgående parkett, lyse og trivelige farger samt vannbåren gulvvarme i alle rom.
🔹 Luftig stue med åpen kjøkkenløsning
🔹 Flislagt bad med stilrene detaljer
🔹 Sørøstvendt balkong på 12 m² med gode solforhold og utsikt til den grønne innergården
🔹 Heis i bygget
🔹 Balansert ventilasjon for et behagelig inneklima
Leiligheten leies ut delvis møblert, og følgende er inkludert:
? Hvitevarer på kjøkkenet
? Vaskemaskin
? Garderobeskap
? Gardinoppheng
? Fastmontert belysning i entre, kjøkken og stue
💡 A-konto for oppvarming og varmt vann kommer i tillegg.
? Strøm dekkes av leietaker, men kostnadene er lave
📶 Bredbånd (standardpakke levert av sameiet) er inkludert. Oppgraderinger kan gjøres på egen regning
Møbler på bildene er kun for illustrasjon og følger ikke med.
Nærområdet
Leiligheten har en unik beliggenhet med kort vei til både natur og byliv:
🌿 Fantastiske turområder rett utenfor døren
🏖 Kort vei til flotte badestrender på Snarøya og Storøya
🏋? ?? Treningsmuligheter på SATS Fornebu, Hundsund Idrettsanlegg og svømmehallen
🚗 Parkeringsplass tilgjengelig for leie i felles garasjeanlegg (mot tillegg)
Visning
Hybel.no
Nyttige lenker
Nærområdet
Annonseinformasjon
| FINN-kode | 393670614 |
|---|---|
| Sist endret | 06. feb. 2026 15:42 |
| Referanse | leilighet-2-roms-lillerutsvei-2-fornebu |
Annonsene kan være mangelfulle i forhold til lovpålagt opplysningsplikt. Før bindende avtale inngås oppfordres interessenter til å innhente komplett informasjon fra meglerforetaket, selger eller utleier.



















