Bildegalleri

3-roms leilighet Midt i Rena
- Månedsleie
- 9 000 kr
- Depositum
- 24 900 kr
Nøkkelinfo
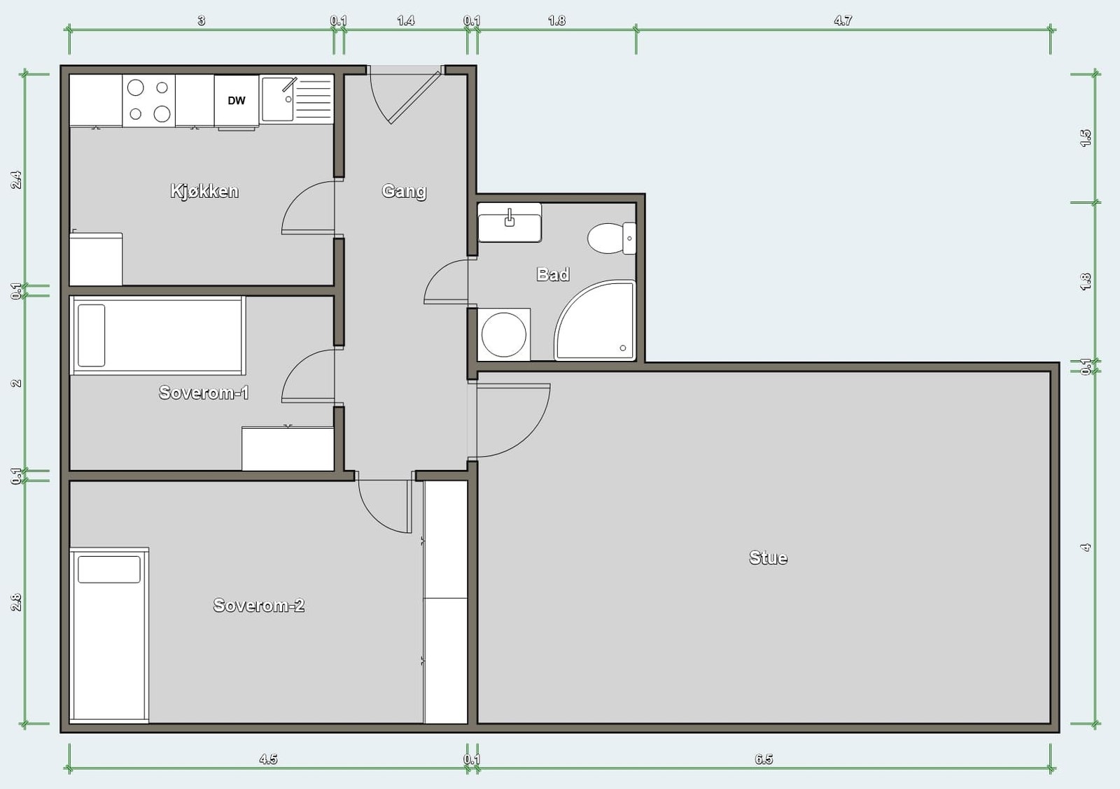
- Bruksareal
- 52 m²
- Boligtype
- Leilighet
- Soverom
- 2
- Etasje
- 2.
- Leieperiode
- 01.09.2025
Fasiliteter
Beskrivelse
Meget sentralt beliggende leilighet i Rena sentrum, kun 2min fra Unitversitetet i Innlandet. Gangastand til alt herunder matbutikker, torget, kjøpesenteret og tog/skysstasjon. Leiligheten ligger i et rolig og hyggelig nabolag med flott utsikt over parken og fjellene i det fjerne. I umiddelbar nærhet finner du to restauranter, en frisør og flere ulike butikker, noe som gjør hverdagen praktisk og enkel.
Leiligheten ligger i Parkgården som ligger langs Renas hovedgate. Byggets første etasje er bruktbutikk. Inngang er er F-oppgangen på baksiden av bygget.
Leiligheten er perfekt for studenter, par og små familier.
Beliggenhet
- 2 minutter fra Universitetet i Innlandet
- 1 minutt fra tog- og skysstasjonen
- Nærmeste nabo til parken
- Nærmeste nabo til to restauranter
- 4 min bygdas matbutikker og kjøpesenter
- 5 min til kulturhuset med kino, kafé, bibliotek med mer
Detaljer om leiligheten:
- Fiber-nett inkludert
- Kan møbleres etter behov
- Eget kjøkken
- Eget bad
- To soverom
- Romslig stue med flott utsikt
- Kan møbleres fullt ut
Strøm faktureres a konto med fast månedlig beløp, slik at du slipper de høye regningene vinterstid.
Ta kontakt for visning!
Visning
Ta kontakt for å avtale visning.KRISMARINE AS
Nærområdet
Annonsene kan være mangelfulle i forhold til lovpålagt opplysningsplikt. Før bindende avtale inngås oppfordres interessenter til å innhente komplett informasjon fra meglerforetaket, selger eller utleier.














