Bildegalleri

Park mot Bygg A
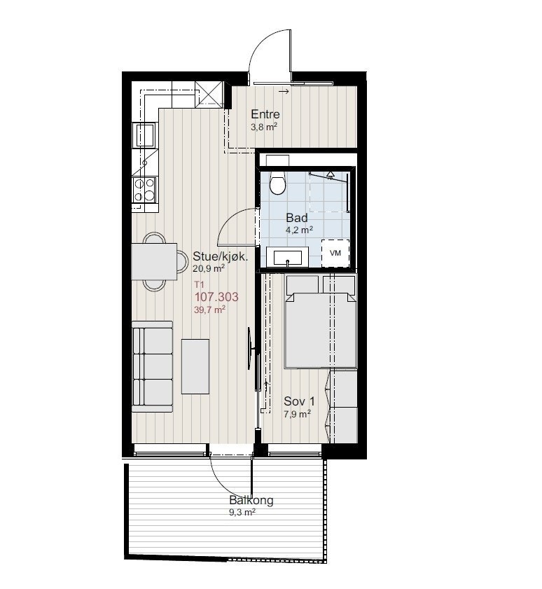
Moderne 2-roms m terrasse i sentralt nybygg ink fjernvarme
- Månedsleie
- 15 500,–
- Depositum
- 46 500,–
Nøkkelinfo
- Internt bruksareal
- 40 m² (BRA-i)
- Boligtype
- Leilighet
- Soverom
- 1
- Etasje
- 1.
- Leieperiode
- 01.04.2026
Fasiliteter
Beskrivelse
Velkommen til Via Rosendal! Her har vi bygget 58 leiligheter fordelt på to bygg i et av Trondheims mest sentrale og attraktive områder.
Via Rosendal ligger på terskelen til den pulserende bykjernen, bare et steinkast unna Solsiden. Innherredsveien er under ombygging og vil framstå som en hyggelig miljøgate. I tillegg etableres det metrobuss-holdeplass rett ved prosjektet.
Bygg A består av 18 leiligheter for utleie.
Her finner du også et velutstyrt treningssenter i 1.etg (TrenHer).
For mer info om treningskjeden, se trenher. no
Bygg B består av 40 leiligheter med både selveierleiligheter og leiligheter for utleie.
Leiligheten leveres med integrerte hvitevarer, komfyr/koketopp, kjøl/frys og oppvaskmaskin. Leiligheten blir møblert med garderobeskap på soverom, klesoppheng i entrè, oppheng for håndklær på bad samt toalettrullholder, gardinstenger på stue, lystette gardiner på soverom. Ekstern sportsbod (2,5 kvm) i parkeringskjeller. Det er plass til standard vaskemaskin på bad.
Oppvarming med fjernvarme er inkludert i leien. Leier betaler selv utgifter til elektrisitet. Telenor Frihet S trådløst bredbånd inngår i leien. Med Frihet får du som beboer et visst antall poeng som du fritt kan bruke til bredbånd, TV og strømmetjenester.
Leietaker har tilgang til sykkelrom i parkeringskjeller.
Det er installert Unlock portelefon ved hovedinngang. Låssystem med tilhørende 3 nøkler til leilighet/postkasse og sportsbod. Unlock adgangskontroll er etablerert på hovedinnganger.
Leilighetene innehar følgende kvaliteter:
- Vannbåren gulvvarme (inkludert i leie)
- Kvalitetskjøkken med alle integrerte hvitevarer
- 1-stavs parkett
- Stor sydvendt balkong/terrasse
- Tilgang til stor opparbeidet hage mot syd, skjermet fra veien
- Heis
- Sportsbod i kjeller medfølger
Parkeringskjeller med mulighet for leie av p-plass med lademulighet. Leie p.d 1500/mnd. Ingen ledige plasser p.d.
Fleksibel overtagelse etter avtale med nåværende leietakere i perioden 01.03.26-01.05.2026.
Leieavtale inngås for 3 år i ht gjeldende Husleielov
Leietaker kan tidligst si opp avtalen 9 måneder etter avtalens startdato.
Husdyrhold er ikke tillatt.
Visning
Hybel.no
Nyttige lenker
Nærområdet
Annonseinformasjon
| FINN-kode | 392375941 |
|---|---|
| Sist endret | 12. feb. 2026 10:57 |
| Referanse | leilighet-2-roms-innherredsveien-105-trondheim |
Annonsene kan være mangelfulle i forhold til lovpålagt opplysningsplikt. Før bindende avtale inngås oppfordres interessenter til å innhente komplett informasjon fra meglerforetaket, selger eller utleier.



















