Bildegalleri

Sentral enebolig til leie. Passer for bedrift / 6 rom
- Månedsleie
- 29 000 kr
Nøkkelinfo
- Bruksareal
- 278 m²
- Boligtype
- Enebolig
- Soverom
- 2
- Leieperiode
- 01.03.2024
Fasiliteter
Beskrivelse
Beliggenhet
Eiendommen ligger urbant og flott til, midt i Lillestrøm sentrum, med umiddelbar nærhet til offentlig kommunikasjon og byens fasiliteter. Eiendommen ligger i et område under utvikling.
Innhold
Kjeller: Tørkerom, vaskerom og brendsel.
1. Etasje:
Entre: En innbydende entre med skyvedørsgarderobe tilbyr praktisk oppbevaring for sko og yttertøy. Downlights skaper en varm velkomst og lyser opp området.
Kjøkken: Et romslig kjøkken med rikelig med lagringsplass i hyller og skap. Inkluderer integrerte apparater som oppvaskmaskin, komfyr og et kjølehjørne for maksimal funksjonalitet og stil.
Stue: To stuer som flyter sammen i en åpen og lys planløsning. Den ene stuen har en elegant kakkelovn, mens det i en mellomgang er en sjarmerende peis. Fra stuen er det utgang til en hage, noe som skaper en sømløs overgang mellom innendørs og utendørs områder.
Soverom: Et behagelig soverom som gir ro og privatliv, utstyrt med skyvedørsgarderobe for smart oppbevaring.
Bad: Et tiltalende bad utstyrt med det nødvendige, inkludert et komfortabelt badekar. Rommet har flislagt gulv med varme for ekstra komfort.
WC: Et separat WC som er praktisk plassert i etasjen, noe som gir ekstra bekvemmelighet.
Gang/Garderobe: Et funksjonelt område som binder sammen etasjens rom, med muligheter for ytterligere oppbevaring.
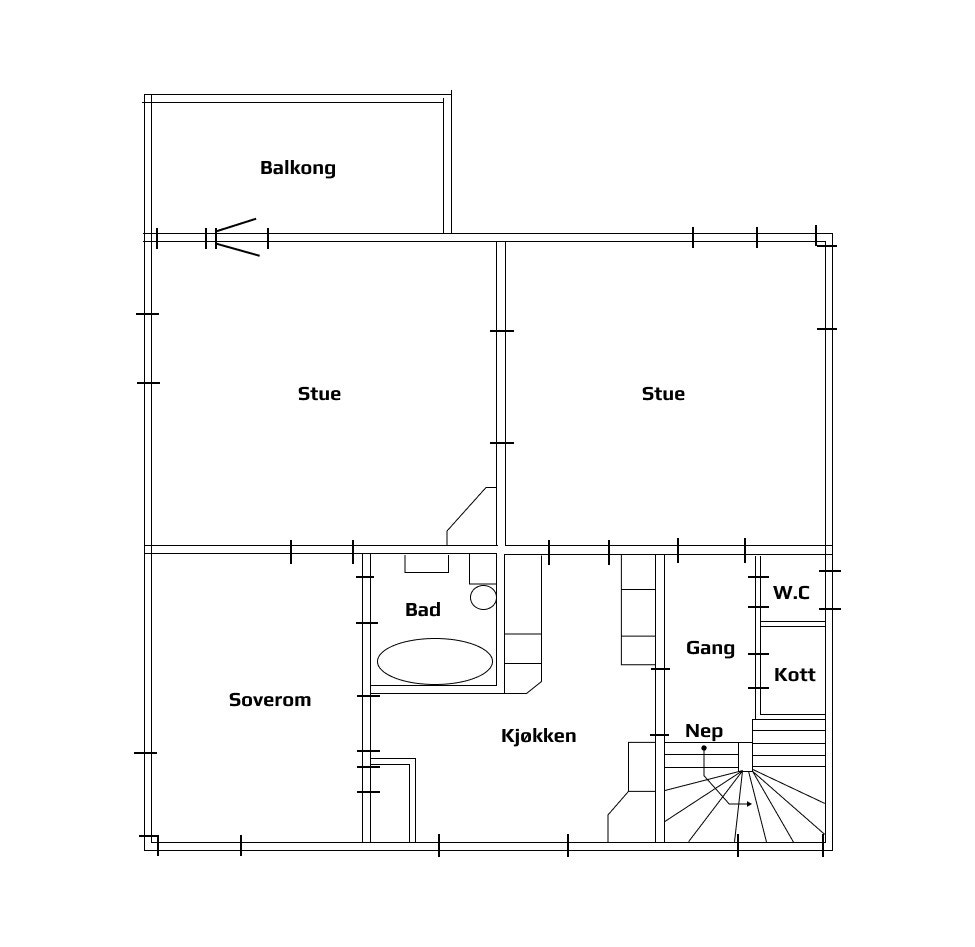
2. Etasje:
Stue #1: En romslig og lys stue med rikelig med plass for komfortabel sitteplass og underholdning. Store vinduer gir god belysning, og rommet er perfekt for både hverdagslig avslapning og å underholde gjester.
Stue #2: En ekstra stue gir fleksibilitet for bruken – ideell som et tv-rom, bibliotek, eller et spillrom. Denne flerbruksstuen er et perfekt sted for hobbyer og fritid.
Kjøkken: Et funksjonelt og godt utstyrt kjøkken med moderne fasiliteter og stilige overflater. Kjøkkenet tilbyr god plass for matlaging og samvær, og er hjertet av hjemmet.
Soverom: Et rolig og luftig soverom som tilbyr en rolig tilflukt fra hjemmets travlere områder. Innebygde garderobeskap sørger for god oppbevaring og holder rommet ryddig og innbydende.
Bad #1 (hovedbad): Et hovedbad som kombinerer funksjonalitet med moderne komfort. Flislagt med varme i gulvet, utstyrt med badekar, toalett og en elegant vaskeservant.
Bad #2 (gjestetoalett): Et separat toalettrom som er praktisk for gjester, bidrar til å holde hovedbadet privat og avlaster bruk når huset er fullt.
Balkong: En intim balkong som tilbyr et privat utendørsrom for avslapning eller et morgenmåltid i frisk luft. Balkongen kan være tilgjengelig fra soverommet, noe som gir et eget lite fristed for eierne.
OBS! Mange rom kan konverteres til soverom.
Parkering
Dobbelgarasje eller parkering tegnes separat.
Oppvarming
Strøm, leietaker tegner eget abonnement.
Sikkerhetsstillelse
Utleiers krav til sikkerhet
Sikkerhetsbeløp: 108000
Som sikkerhet i dette leieforholdet kan leietaker velge å innbetale depositum i Handelsbanken eller garanti tilsvarende 3 måneders leie. Ved benyttelse av garanti må det være tilknyttet fysiske personer.
Energimerking
Eier har ikke energiklassifisert boligen, og interessenter bør derfor legge til grunn at boligen har energiklasse G.
Leieperiode og partenes oppsigelsesadgang
I de ni første månedene er det ikke adgang for partene til å si opp avtalen. Etter utløpet av ni månedersperioden kan avtalen sies opp av begge parter med 3 måneders frist til fraflytting fra den datoen oppsigelsen er levert skriftlig.
Innvendig areal
Innvendige arealer er ikke kontrollmålt.
Annet
Normal leietid er 3 år, men det er mulighet for at utleier kan si opp med 3 mnd frist for utflytting hvis bygningen skal bygges om, rives eller dersom eier selv skal ta boligen I bruk til eget formål. Leieforholdet har en bindingstid på minimum 9 måneder+ 3mnd oppsigelsestid fra leiestart. Boligen leies ut i den stand den er i ved overtakelsen jfr. Husleielovens 2-5.Forbeholdet omfatter også eventuelle avvik fra dagens byggetekniske krav.) Hvitevarer medfølger så lenge de fungerer og vil derfor ikke byttes dersom de blir ødelagt. Forbruk av strøm, avløp, vann og brensel dekkes av leietaker.
Dyrehold
Dyrehold er tillatt uten Utleiers skriftlige samtykke så lenge dyret ikke er til sjenanse.
Fremleie
Leietaker tillates å fremleie med utleiers godkjenning, men vil likevel stå fortsatt fult ut ansvarlig for leieobjektet, innbetaling av husleie og eventuelle skader som måtte oppstå under fremleien.
Visning
Ta kontakt for å avtale visning.Taraldset Eiendom AS
Nærområdet
Annonsene kan være mangelfulle i forhold til lovpålagt opplysningsplikt. Før bindende avtale inngås oppfordres interessenter til å innhente komplett informasjon fra meglerforetaket, selger eller utleier.
































