Bildegalleri

Huset
Utleie av stor 4-roms leilighet - sentralt i Kongsvinger
- Månedsleie
- 12 500 kr
- Depositum
- 31 500 kr
Nøkkelinfo
- Primærrom
- 71 m²
- Boligtype
- Leilighet
- Soverom
- 3
- Etasje
- 1.
- Leieperiode
- 01.12.2025
Fasiliteter
Beskrivelse
Leiligheten ligger i et populært og veletablert boligfelt i Glåmlia, i umiddelbar nærhet til Kongsvinger festning, ca. 2,5 km fra Kongsvinger sentrum. Korte avstander til de fleste fasiliteter, som butikker, offentlig kommunikasjon, barnehager og skoler. I tillegg har Glåmlia også friluftsområder og lekeplass. Her får man en fin utsikt over landskapet, Vingersjøen og Glomma i øst og en liten spasertur unna finner du en meget populær badestrand. Det er også mulig å rusle på strandpromenaden hele veien til sentrum.
Leiligheten er på 71kvm. Elektrisk gulvvarme i alle rom. Egen biloppstillingsplass. Leiligheten leies ut umøblert. Dyrehold ikke tillatt.
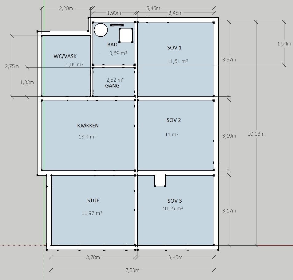
Rommenes størrelser:
Entré/Stue 12kvm
Gang 2.5kvm
Kjøkken 13.5kvm
Vaskerom 6kvm
Bad 4kvm
Soverom nr 1 12kvm
Soverom nr 2 11kvm
Soverom nr 3 10kvm
Prisen på 12500kr/mnd er inkl. strø, internett og vann/avløp.
Ta kontakt ved spørsmål og for å eventuelt avtale en visning. Leiligheten er bebodd i dag.
Visning
Ta kontakt for å avtale visning.Trenger du en kontrakt?
- Utfylt kontrakt med opplysninger fra annonsen
- Digital signering
- Gratis tjeneste
- Godkjent av Forbrukerrådet
Nærområdet
Annonsene kan være mangelfulle i forhold til lovpålagt opplysningsplikt. Før bindende avtale inngås oppfordres interessenter til å innhente komplett informasjon fra meglerforetaket, selger eller utleier.



























