Bildegalleri

Kontakt megler på 980 45 319 for avtale om privatvisning.
Perle midt i Wyllerløypa - Vakker, velholdt tømmerhytte m/moderne påbygg og bad. Idyllisk tomt på nær 14 mål. 2 årlige s
- Kommunale avg.
- 255 kr per år
- Formuesverdi
- 2 310 000 kr
Nøkkelinfo
- Beliggenhet
- Innlandet
- Boligtype
- Annet fritid
- Eieform
- Eier (Selveier)
- Primærrom
- 125 m²
- Bruksareal
- 132 m²
- Tomteareal
- 13 736 m² (eiet)
- Bruttoareal
- 152 m²
- Byggeår
- 1930
- Soverom
- 3
- Rom
- 6
- Sengeplasser
- 10
- Energimerking
- G - Rød
Fasiliteter
Om eiendommen
Beliggenhet
Kontakt megler på 980 45 319 for avtale om privatvisning.
Det nødvendig med ski for å komme seg ned til eiendommen.
Eiendommen ligger i et naturskjønt og attraktivt område i Sørkedalen i Oslo kommune. Eiendommen på nesten 14 mål ligger midt i Wyllerløypa, med grense mot Tryvann Skisenter. Eiendommen ligger svært usjenert til - og er tilnærmet usynlig fra bakken.
Området er preget av vakker natur og store friluftsområder som byr på god rekreasjon året rundt. I marka finnes flere vann, fantastisk turterreng og skiløyper om vinteren.
Oslo Vinterpark på Tryvannshøgda har 14 nedfarter og 7 heiser, hvorav én stolheis har seks seter, og en annen fire. Den lengste bakken er 1400 meter lang. Anlegget har en fallhøyde på 381 meter. Tryvann har eget område for barn og uerfarne, en flott terrengpark med halfpipe av internasjonal standard, samt utfordrende bakker, x-crossløype og cruisingbakker. Alle bakker er belyst for kveldskjøring. Det følger med 2 upersonlige sesongkort til Tryvann Skisenter per år og rettighet til å kjøp av ytterligere 2 upersonlige sesongkort til 50% rabatt.
Det er også kort vei til Bogstadvannet med mulighet for bading om sommeren og ski/skøyter om vinteren. Her ligger også Bogstad gård med kafé og kulturaktiviteter, kunstutstillinger og gårdsopplevelser. Bogstad har også en attraktiv golfbane. Holmenkollen Park hotell byr i tillegg på treningssenter, spa og svømmebasseng.
Hytta ligger ca. 20 min fra Oslo sentrum. Det går buss til Wyller, og derfra er det ca. 30 min gange fra veien og opp til hytta. Eiendommen har fem parkeringsplasser.
Kort fortalt
- Velholdt tømmerhytte over to plan.
- Moderne påbygg utført i reisverk ble ferdigstilt i 2012.
- Romslig tomt på nærmere 14 mål.
- Fem parkeringsplasser på egen tomt.
- Kort reisevei på ca. 20 min til Oslo.
- Naturtomt beliggende ved Wyllerløypa.
- Optimale solforhold og frisk fjelluft.
- Stor stue med peis og ekstra takhøyde.
- Kjøkken fra 2011 med hvitevarer.
- Bad med to dusjnisjer i nybygd del.
- To toaletter og et vaskerom/teknisk rom.
- Badstue med plass for seks personer.
- Tre soverom og to gode hemser.
- Lagringsmuligheter i innvendig bod.
- Nyere elanlegg fra 2010/2012 med automatsikringer.
- Nyere vinduer i isolerglass fra 2010/2012.
- Det følger med 2 upersonlige sesongkort til Tryvann Skisenter per år og rettighet til kjøp av ytterligere 2 upersonlige sesongkort til 50% rabatt.
Byggemåte
Grunn: Ringmur og pilarer. Krypkjeller under opprinnelige hytte. Tilbygget står på pilarer og original grunnmur. Drenering: Naturlig drenering til terreng. Tak: Rundlaft og tømmer, bordtak. Frittbærende dekker: Gulvkonstruksjon med rundlaft og tømmer. Tilfarergulv med malt tregulv. Gulvkonstruksjon i tilbygget med bindingsverk og linoleumsgulv.
Arealer og fordeling per etasje
Primærrom: 125 kvm, Bruksareal: 132 kvm, Bruttoareal: 152 kvm
Innhold
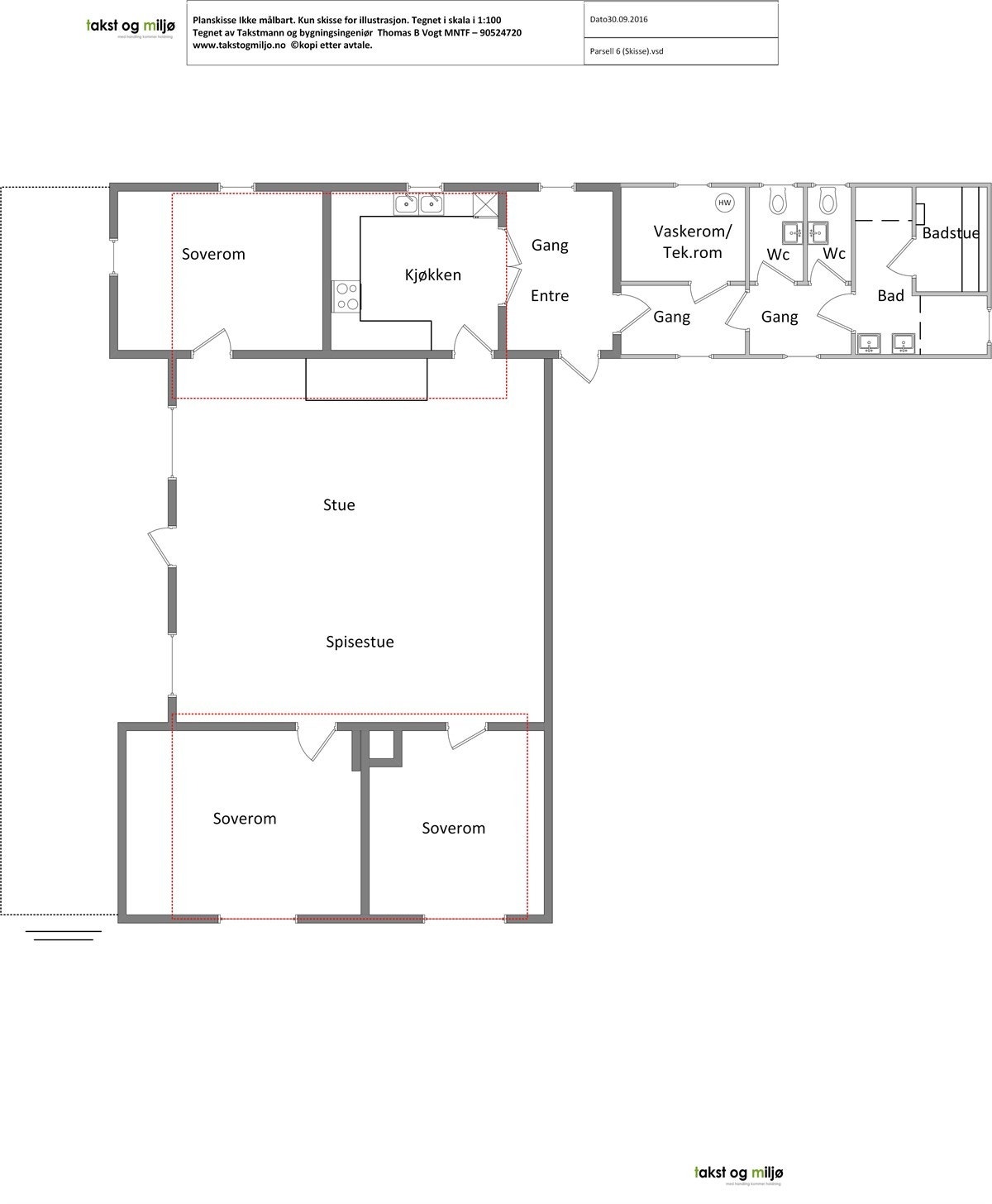
1. etasje: Entré, gang, kjøkken, 3 soverom, stue, spisestue, bad, vaskerom/teknisk rom og 2 wc.
Hems: To hemser med gulvareal på tilsammen ca. 26 kvm.
Kjeller: Potetkjeller.
Standard
Velholdt og vakker tømmerhytte over to plan, inkludert hems på ca. 26 kvm. Eiendommen på nesten 14 mål ligger i naturskjønne omgivelser i Wyllerløypa og med grense mot Tryvann Skisenter. Den opprinnelige tømmerhytta ble oppført i 1930, men ble betydelig oppgradert og påbygd i 2010-2012, der farger og materialvalg ble plukket ut i samarbeid med interiørarkitekt.
Langs hele langveggen er det en stor, overbygd terrasse hvor sol og frisk luft kan nytes. Her er det også direkte inngang til stuen, mens hovedinngangen ligger i nybygget del. Stuen er ca. 50 kvm med generøs takhøyde og knitrende hygge fra åpen peis. Kjøkken fikk ny innredning fra Sigdal og integrerte hvitevarer i 2011.
Videre har hytta et moderne bad med to dusjnisjer, en deilig badstue med plass til seks personer, to toaletter og et vaskerom/teknisk rom. Hytta har også tre pene soverom med rom for flere sengeplasser, og to hemser med adkomst fra stuen.
Entré
Entreen ligger i tilbygg fra 2010-2012 og fremstår som innbydende. Rommet har praktisk belegg på gulv og åpen garderobeløsning. Fra entreen er det direkte adkomst til kjøkken. Hytta har ellers inngang direkte til stuen via overbygd terrasse.
Kjøkken
Kjøkkenet fra 2011 er pent og holdt i en klassisk stil som passer utmerket til fritidsboligen. Innredningen fra Sigdal har hvite, profilerte fronter og benkeplate i lys laminat med dobbel vaskekum.
Kjøkkenet er utstyrt med stekeovn, induksjonstopp, kombinert kjøl/frys og oppvaskmaskin. Det er belysning og vindu over benk, i tillegg til slimline-ventilator over kokesonen. Rommet har lysegule veggflater, hvitmalt tak med bjelker og gulvbelegg.
Stue
Stuen på ca. 50 kvm oppleves som flott og koselig. Generøs takhøye opp til mønet og store sprossevinduer gir en lett og lys atmosfære, mens en åpen peis byr på knitrende hygge. Peisen er plassert i enden av rommet, og gir et naturlig blikkfang. Rommet har vegger i lysmalt tømmer, hvitmalt tak med synlige åser og malt tregulv.
Stuen har god plass for flere sofagrupper, og langbord som kan dekkes til flere gjester. Fra stuen er det adkomst til to hemser, og utgang til en stor terrasse med overbygg.
Bad/wc/vaskerom
Boligen inneholder et bad, to separate wc og en badstue. Badet ble etablert i tilbygg fra 2010-2012 og har praktisk belegg på gulv, malt trepanel på vegg og direkte adkomst til badstuen med plass for seks personer.
Innredningen består av dobbelservant på hvitt servantskap, speil med belysning og to dusjnisjer med regnfallsdusj. Badstuen er laget i kvistfri badstupanel og det er plass for vaskemaskin i teknisk rom.
Soverom og garderobe
Hytta har tre gode soverom med mulighet for flere sengeplasser. Rommene er avstemt i paletten og oppleves som innbydende. Stuen har ellers en hems i hver ende, noe som kan gi ytterligere soveplasser eller ekstra lagringsplass. Fritidsboligen har for øvrig god lagringsplass i innvendig bod.
Utstyr
Ventilasjonen har naturlig tilluft med mekanisk avtrekk fra kjøkken og bad. Elanlegget ble oppgradert og fornyet i 2010-2012 med vippebrytere og jordfeilautomater. Hytta har innbruddsalarm og brannalarm med mulighet for direkte tilknytning til alarmsentral.
Oppvarming
Boligen er elektrisk oppvarmet, supplert med vedfyring i åpen peis i stuen. I badstuen er det badstueovn fra Tylø. Varmtvannsbereder fra 2011 er på ca. 200 liter.
Parkering / Garasje
Det er fem parkeringsplasser på egen eiendom. Det går sommervei helt frem til eiendommen.
Adkomst
Fra Sørkedalsveien: Ta høyre inn Wyllerveien og følg veien inn til Tryvann Skisenter. Derfra går det sommervei helt frem til eiendommen, hvor det er godt med parkeringsplasser. Vinterstid er stolheisen til toppen, med påfølgende hyggelig skitur ned beste alternativ.
Beskrivelse av tomt/hage
Eiendommen på 13736,2 kvm har en vakker beliggenhet rett ved Wyllerløypa, i naturskjønne og idylliske omgivelser. Den opprinnelige laftehytta er fra 1930, men er blitt betydelig påkostet og påbygd de senere årene. Hytta fremstår likevel i tradisjonell stil med stølsbrune tømmervegger og kledning, kombinert med hvitmalte vinduskarmer og bonderøde dører.
Hytta har en lun terrasse som går langs hele langsiden av bygget. Uteplassen ligger skjermet av overbygg og har god plass for utesofa og spisebord. Beliggenhet på en liten kolle gir utmerkede solforhold og fint utsyn. Her er livet lagt til rette for lave skulder og hvilepuls i den friske fjellufta, kun 20 min fra sentrum.
Hytta ligger omkranset av naturtomt med gress, kjerr, fine busker og trær. Deler av tomten er bygslet bort til Tryvann skisenter. Det er avtalt veirett og bruk av vei til skisenteret. Med salget følger også to sesongkort.
Tinglyste rettigheter og forpliktelser
Kommunen har legalpant som sikkerhet for betaling av kommunale avgifter. Legalpant er pant som følger av loven, og som ikke tinglyses. Legalpant følger derfor eiendommen ved salg. På eiendommen kan det være tinglyst erklæringer som f eks rett for kommunen til å vedlikeholde rørsystemer for vann- og kloakk. Disse erklæringene vil følge eiendommen ved salg. Kontakt megler for nærmere informasjon.
Vei / Vann / Avløp
Hytta har adkomst via privat vei fra parkeringsplassen. Nyere sti/ adkomst til hytta fra oppstillingsplassen. Hytta er tilknyttet privat vann og avløp via Tryvann skisenter. Avtalen som omhandler vei, vann og avløp ligger vedlagt i salgsoppgaven.
Ferdigattest eller midl. brukstillatelse
Det ble gitt ferdigattest for ombygging den 20.10.2016.
Verdi ved skattefastsetting
Ligningsverdi kr 2 310 000,- pr 2014.
Reguleringsforhold
LNF-område ihht. reguleringsbestemmelse S-4552. Reguleringskart ligger vedlagt i salgsoppgaven. Ta kontakt med ansvarlig megler for nærmere informasjon.
Ny kommuneplan fra 23. september 2015. Oslo kommune har vedtatt en ny kommuneplan. Dette får betydning for en rekke av de vedtatte reguleringsplanene i kommunen.
For informasjon om eventuelle arbeider i nærliggende områder anbefaler vi et søk på plan og bygg sin sakinnsyn portal: https://www.oslo.kommune.no/plan-bygg-og-eiendom/
Faste, løpende kostnader
Kommunale avgifter Kr. 255.
Forsikring i Tryg kr 9 192 (polisenummer 3172510)
Oppgjør
Kjøpesum med tillegg av omkostninger skal være disponibelt på meglers klientkonto innen overtagelse.
Finansiering
Kontakt megler for avklaring av finansielle forhold, herunder lån til kjøp av eiendom. Privatmegleren har avtale med Nordea om formidling av lån og andre finansielle tjenester. Privatmegleren mottar godtgjørelse for dette.
Festeavtale
Eiendommen bygsler bort deler av tomten til Tryvann Skisenter. Avtale med skisenteret ligger vedlagt i salgsoppgaven.
Annen nyttig informasjon
Alle innvendige og utvendige arealangivelser er hentet fra vedlagte takstdokumenter.
Det gjøres oppmerksom på at megler ikke har innhentet særskilte opplysninger om det finnes pålegg fra brann/feiervesen på eiendommen.
Dersom det ikke er varmekilder i alle rom, fravikes NEFs normgivende liste over løsøre og tilbehør i "Viktig informasjon for selger og kjøper". Hvitevarer, som ikke er integrert i innredning, medfølger ikke i handelen.
Konsesjon / Odel
Det er krav til egenerklæring om konsesjonsfrihet.
Overtagelse
Etter nærmere avtale.
Eierskifteforsikring
Selger har ikke bebodd eiendommen og har derfor ingen kjennskap til feil og mangler. Selger har ikke tegnet eierskifteforsikring.
Budgiving
Bud kan legges inn via Privatmeglerens "gi bud-knapp" som finnes på Privatmegleren.no/eiendommens hjemmeside og i nettannonsen. Bud legges inn trygt og enkelt med bank-ID.
For mer informasjon om budgivning, se "Viktig informasjon" i salgsoppgaven.
Solgt 'som den er'
Eiendommen selges "som den er", jf. avhendingsloven (avhl) § 3-9.
Boligen har mangel i følgende tilfelle:
1) Når kjøper ikke har fått opplysninger om forhold ved boligen som selger kjente eller måtte kjenne til, og som kjøper hadde grunn til å regne med å få, jf. avhl § 3-7. Dette gjelder likevel bare dersom man kan gå ut fra at det har virket inn på avtalen at opplysningene ikke ble gitt.
2) Når selger har gitt uriktige opplysninger om boligen, jf. avhl § 3-8. Det samme gjelder dersom boligen ikke er i samsvar med opplysninger som er gitt i annonse, salgsprospekt eller ved annen markedsføring på vegne av selgeren. Dette gjelder likevel bare dersom man kan gå ut fra at opplysningene har virket inn på avtalen, og ikke på en tydelig måte er blitt rettet i tide.
3) Når boligen er i vesentlig dårligere stand enn kjøper hadde grunn til å regne med ut fra kjøpesummen og forholdene ellers, jf. avhl § 3-9.
Alle interessenter oppfordres til å sette seg godt inn i opplysninger som fremgår av salgsoppgave og vedlegg til denne, også egenerklæring fra selger. Videre oppfordres interessenter til å undersøke eiendommen nøye, gjerne sammen med fagkyndig. Deretter kan bud gis.
Ta kontakt med megler for komplett informasjon
Nyttige lenker
Nærområdet

PrivatMegleren Dyve & Partnere
Annonseinformasjon
| FINN-kode | 83793628 |
|---|---|
| Sist endret | 19. juli 2018 10:54 |
| Referanse | 159160432 |
Annonsene kan være mangelfulle i forhold til lovpålagt opplysningsplikt. Før bindende avtale inngås oppfordres interessenter til å innhente komplett informasjon fra meglerforetaket, selger eller utleier.



























