Bildegalleri

Anette Strøm presenterer Amundrud 121. Foto: Creative Foto
Koselig hytte med 3 soverom - Strøm og bilvei helt frem - Fine turmuligheter - 45 min fra Oslo - Kort vei til Lyseren
Prisantydning590 000 kr
- Omkostninger
- 16 140 kr
- Totalpris
- 606 140 kr
- Kommunale avg.
- 4 500 kr per år
Nøkkelinfo
- Beliggenhet
- Innlandet
- Boligtype
- Hytte
- Eieform
- Eier (Selveier)
- Internt bruksareal
- 54 m² (BRA-i)
- Bruksareal
- 65 m²
- Eksternt bruksareal
- 11 m² (BRA-e)
- Balkong/Terrasse
- 28 m² (TBA)
- Tomteareal
- 600 m² (festet)
- Festeavgift
- 3 514 kr
- Byggeår
- 1976
- Soverom
- 3
- Energimerking
- F
Fasiliteter
Balkong/Terrasse
Barnevennlig
Bilvei frem
Peis/Ildsted
Rolig
Innlagt strøm
Turterreng
Visning
onsdag, 11. mars
17:00 – 18:00
Husk å lese komplett salgsoppgave før visning. Bestill komplett, utskriftsvennlig salgsoppgave.
VisningspåmeldingOm boligen
Amundrud 121 er en koselig hytte med fin og usjenert beliggenhet i skogfelt.
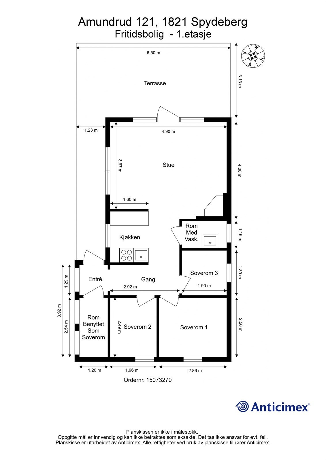
Hytta består av: Entré/gang, rom benyttet som soverom, 3 soverom, rom med vask og stue med åpen kjøkkenløsning.
Annet: Frittstående uthus/redskapsbod med komposttoalett.
Hytta har innlagt strøm og det er bilvei frem. Borrevann til utekran. Alt av møbler og løsøre medfølger.
Fra hytta er det ca. 2,3 km til populær badeplass på Hallerud ved Lyseren, med bil er det ca. 15 min til Spydeberg sentrum og 45 min til Oslo. Fine turområder rett utenfor hyttedøren, med mange populære turstier.
Velkommen til visning!
Hytta består av: Entré/gang, rom benyttet som soverom, 3 soverom, rom med vask og stue med åpen kjøkkenløsning.
Annet: Frittstående uthus/redskapsbod med komposttoalett.
Hytta har innlagt strøm og det er bilvei frem. Borrevann til utekran. Alt av møbler og løsøre medfølger.
Fra hytta er det ca. 2,3 km til populær badeplass på Hallerud ved Lyseren, med bil er det ca. 15 min til Spydeberg sentrum og 45 min til Oslo. Fine turområder rett utenfor hyttedøren, med mange populære turstier.
Velkommen til visning!
NB: Knappen for å vise hele beskrivelsen har kun en visuell effekt.
NB: Knappen for å vise hele beskrivelsen har kun en visuell effekt.
Salgsoppgaven beskriver vesentlig og lovpålagt informasjon om eiendommen
Se komplett salgsoppgaveNærområdet
Aktiv Askim
Annonseinformasjon
| FINN-kode | 453609417 |
|---|---|
| Sist endret | 04. mars 2026 13:50 |
| Referanse | 1102260023 |
Annonsene kan være mangelfulle i forhold til lovpålagt opplysningsplikt. Før bindende avtale inngås oppfordres interessenter til å innhente komplett informasjon fra meglerforetaket, selger eller utleier.

















