Bildegalleri

Nydelig småbruk med attraktiv, landlig og fin beliggenhet! Nærhet til natur og sjø (PÅMELDINGSVISNING)
Prisantydning3 990 000 kr
- Omkostninger
- 100 840 kr
- Totalpris
- 4 090 840 kr
- Kommunale avg.
- 9 066 kr per år
- Formuesverdi
- 353 192 kr
Nøkkelinfo
- Boligtype
- Enebolig
- Eieform
- Eier (Selveier)
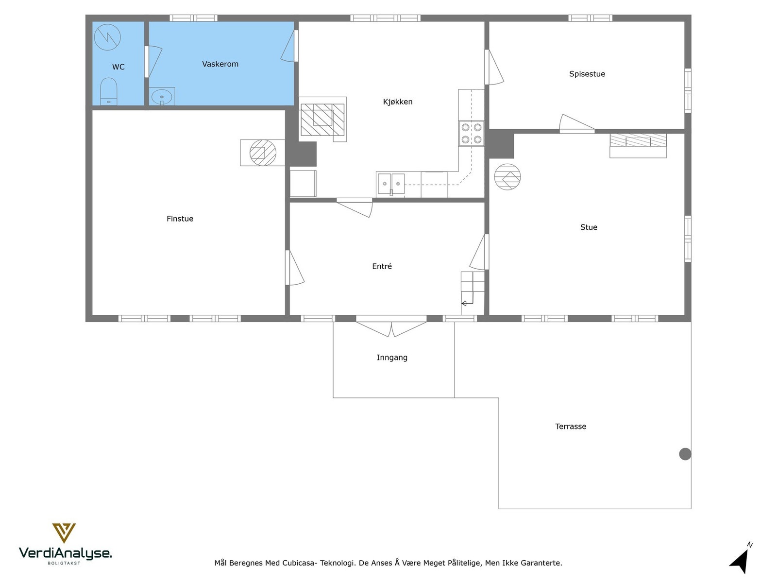
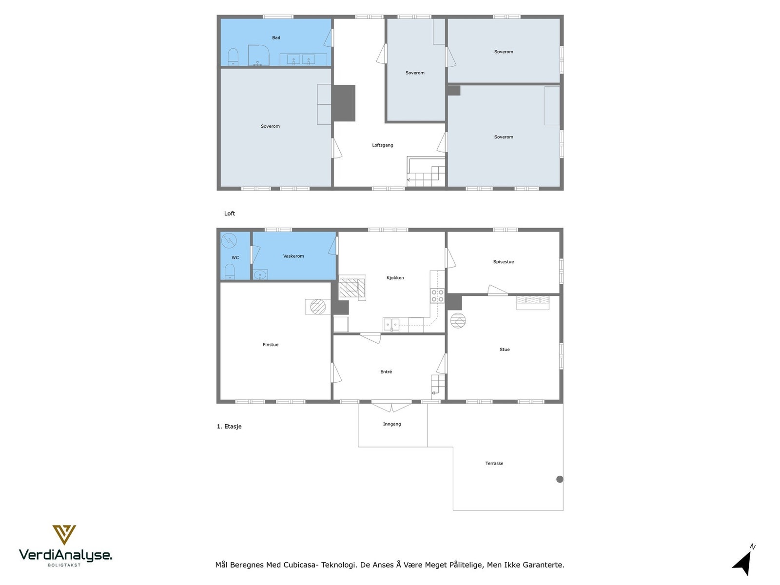
- Internt bruksareal
- 180 m² (BRA-i)
- Bruksareal
- 268 m²
- Eksternt bruksareal
- 88 m² (BRA-e)
- Tomteareal
- 1 809 522 m² (eiet)
- Byggeår
- 1856
- Soverom
- 4
- Rom
- 7
- Energimerking
- G - Rød
Fasiliteter
Balkong/Terrasse
Garasje/P-plass
Fiskemulighet
Peis/Ildsted
Strandlinje
Turterreng
Utsikt
Bilvei frem
Golfbane
Innlagt strøm
Innlagt vann
Visning
Ta kontakt for å avtale visning.Husk å lese komplett salgsoppgave før visning. Bestill komplett, utskriftsvennlig salgsoppgave.
VisningspåmeldingOm boligen
EiendomsMegler1 v/ Morten Høvik har gleden av å presentere Jøveien 191!
Jøveien 191 - Småbruk med umiddelbar nærhet til sjø og natur. Eiendommen ligger usjenert og fint til på Jøa. God sol- og lysforhold. Tomten er på hele 1810 mål.
Eiendommen inneholder både stabbur, fjøs/låve og utebod. Eiendommen ligger landlig til på Jøa i Smøla kommune og har et samlet areal på ca. 1 810 dekar, fordelt på 255 teiger. Tomten består av både fastland og flere holmer og skjær, og omfatter hovedsakelig skog og utmark.
Velkommen til visning!
Jøveien 191 - Småbruk med umiddelbar nærhet til sjø og natur. Eiendommen ligger usjenert og fint til på Jøa. God sol- og lysforhold. Tomten er på hele 1810 mål.
Eiendommen inneholder både stabbur, fjøs/låve og utebod. Eiendommen ligger landlig til på Jøa i Smøla kommune og har et samlet areal på ca. 1 810 dekar, fordelt på 255 teiger. Tomten består av både fastland og flere holmer og skjær, og omfatter hovedsakelig skog og utmark.
Velkommen til visning!
NB: Knappen for å vise hele beskrivelsen har kun en visuell effekt.
NB: Knappen for å vise hele beskrivelsen har kun en visuell effekt.
Salgsoppgaven beskriver vesentlig og lovpålagt informasjon om eiendommen
Se komplett salgsoppgaveNyttige lenker
Nærområdet
EiendomsMegler 1 Kristiansund
Vi loser deg trygt gjennom hele boligsalget
Annonseinformasjon
| FINN-kode | 453170867 |
|---|---|
| Sist endret | 04. mars 2026 16:27 |
| Referanse | 17250278 |
Annonsene kan være mangelfulle i forhold til lovpålagt opplysningsplikt. Før bindende avtale inngås oppfordres interessenter til å innhente komplett informasjon fra meglerforetaket, selger eller utleier.











































