Bildegalleri

Innbydende hytte med stor solrik terrasse.
Bamble-Skarsvika/Ivarsand
Solrik og usjenert med fantastisk utsikt
Prisantydning4 290 000 kr
- Omkostninger
- 128 240 kr
- Totalpris
- 4 418 240 kr
- Kommunale avg.
- 23 250 kr per år
Nøkkelinfo
- Beliggenhet
- Ved sjøen
- Boligtype
- Hytte
- Eieform
- Eier (Selveier)
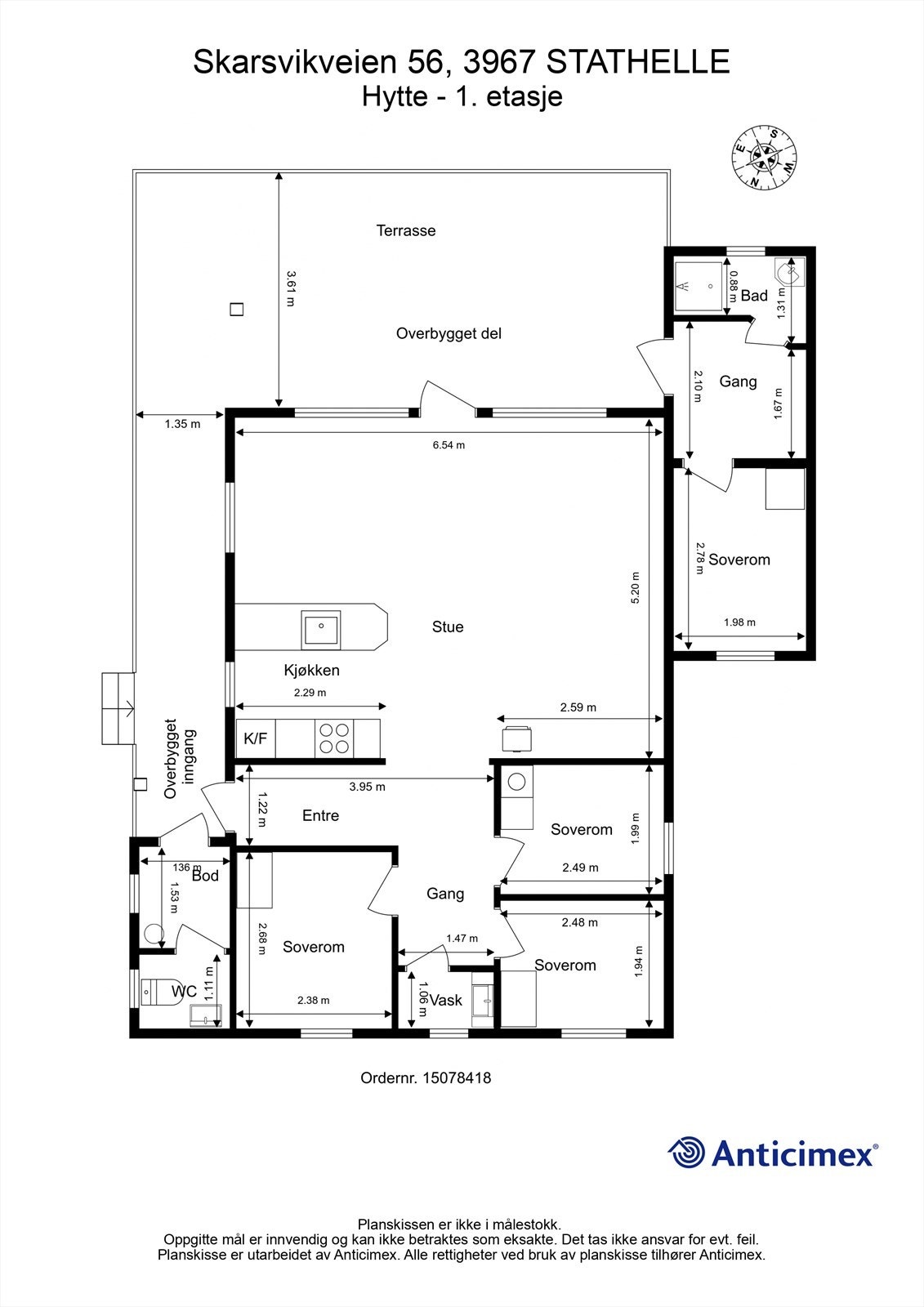
- Internt bruksareal
- 61 m² (BRA-i)
- Bruksareal
- 78 m²
- Eksternt bruksareal
- 17 m² (BRA-e)
- Balkong/Terrasse
- 75 m² (TBA)
- Tomteareal
- 898 m² (festet)
- Festeavgift
- 1 000 kr
- Byggeår
- 1986
- Soverom
- 4
- Rom
- 5
- Energimerking
- D - Gul
Fasiliteter
Balkong/Terrasse
Peis/Ildsted
Utsikt
Bademulighet
Innlagt strøm
Offentlig vann/kloakk
Visning
lørdag, 14. mars
11:30
For å delta på visning, ber vi om at du melder deg på. Da sikrer vi at du får nødvendig informasjon og at det er satt av tilstrekkelig med tid. Kontakt megler dersom annet tidspunkt ønskes. Husk å lese salgsoppgaven før visningen, så du stiller forberedt.
Ønsker du kun å bli holdt orientert, kan du fra eiendommens hjemmeside få varsel om solgtpris, eller kontakte megler.
VisningspåmeldingOm boligen
Hytta ligger høyt og fritt med gode solforhold og kort vei ned til sjøen. Rett ned for hytta er det fine svaberg og en liten sandstrand. Her nede har hytta også rett til båtfeste. Fra parkeringen er det ca. 300 meters gange på fin sti. Hytta som er oppført i 1986/87 og er arealeffektiv med soverom i bakkant og oppholdsrom i front med store vindusflater som gir lys og utsikt. Hytta ble påbygget med enkelt bad og ekstra soverom i 2006. Rundt hytta er finnes terrasseflater og frittliggende uteplasser.
NB: Knappen for å vise hele beskrivelsen har kun en visuell effekt.
NB: Knappen for å vise hele beskrivelsen har kun en visuell effekt.
Salgsoppgaven beskriver vesentlig og lovpålagt informasjon om eiendommen
Se komplett salgsoppgaveNyttige lenker
Nærområdet
Krogsveen Bamble og Porsgrunn
Verdien av en god megler.
Annonseinformasjon
| FINN-kode | 452966452 |
|---|---|
| Sist endret | 03. mars 2026 07:38 |
| Referanse | KR28.25103 |
Annonsene kan være mangelfulle i forhold til lovpålagt opplysningsplikt. Før bindende avtale inngås oppfordres interessenter til å innhente komplett informasjon fra meglerforetaket, selger eller utleier.


































