Bildegalleri

Velkommen til Nedre Hammarveien 41! Foto: Uthus
VISNING 22.02|LEKKER LAFTEHYTTE| Attraktiv beliggenhet v/Norefjell Alpinanlegg| 5 sov + 4 bad| Badstue| Boblebad| Anneks
Prisantydning9 450 000 kr
- Omkostninger
- 237 630 kr
- Totalpris
- 9 687 630 kr
- Kommunale avg.
- 18 893 kr per år
- Eiendomsskatt
- 5 960 kr per år
Nøkkelinfo
- Beliggenhet
- På fjellet
- Boligtype
- Enebolig
- Eieform
- Eier (Selveier)
- Internt bruksareal
- 211 m² (BRA-i)
- Bruksareal
- 214 m²
- Eksternt bruksareal
- 3 m² (BRA-e)
- Balkong/Terrasse
- 37 m² (TBA)
- Tomteareal
- 789 m² (eiet)
- Byggeår
- 2014
- Soverom
- 5
- Energimerking
- C - Lysegrønn
Fasiliteter
Alpinanlegg
Balkong/Terrasse
Barnevennlig
Garasje/P-plass
Hage
Peis/Ildsted
Rolig
Utsikt
Turterreng
Visning
søndag, 22. februar
15:00 – 15:45
Husk å lese komplett salgsoppgave før visning. Bestill komplett, utskriftsvennlig salgsoppgave.
VisningspåmeldingOm boligen
Nordvik Eiendomsmegling ved Bendik Blumenthal har gleden av å presentere Nedre Hammarveien 41, en sjarmerende familiehytte over tre etasjer med attraktiv beliggenhet på Norehammaren. Eiendommen ligger i naturskjønne og rolige omgivelser, med milevis av preparerte ski in/out til langrennsløyper og 5/2 min til Norefjell Alpinbakke
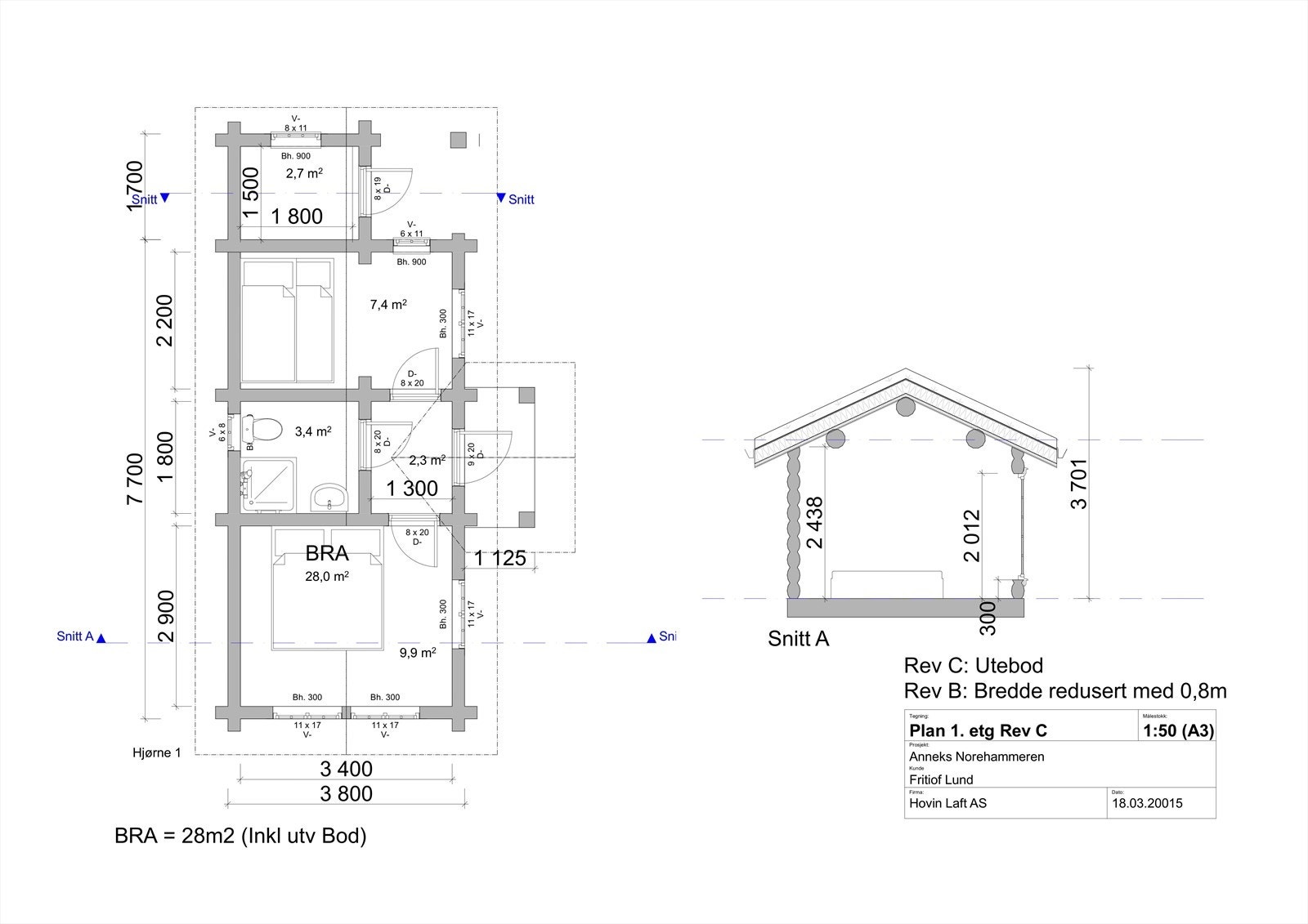
- 3 soverom i hytta + 2 soverom i anneks
- 3 bad i hytta + 1 bad i anneks
- Stue, spisestue og kjellerstue
- Boblebad
- Badstue
- Garasje med direkte inngang til kjellerstue
- 37 kvm terrasse
- Fantastisk turterreng året rundt
- Attraktiv beliggenhet med kort vei til alpinbakken på Norefjell og ski-in/out til langrennsløyper
NB: Knappen for å vise hele beskrivelsen har kun en visuell effekt.
NB: Knappen for å vise hele beskrivelsen har kun en visuell effekt.
Salgsoppgaven beskriver vesentlig og lovpålagt informasjon om eiendommen
Se komplett salgsoppgaveNyttige lenker
Nærområdet
Nordvik Ullevål
Annonseinformasjon
| FINN-kode | 451676603 |
|---|---|
| Sist endret | 19. feb. 2026 14:35 |
| Referanse | 23-0030/26 |
Annonsene kan være mangelfulle i forhold til lovpålagt opplysningsplikt. Før bindende avtale inngås oppfordres interessenter til å innhente komplett informasjon fra meglerforetaket, selger eller utleier.























































