Bildegalleri

En anledning av de sjeldne! Moderne fritidsbolig fra norske Rindalshytter, oppført i 2018.
Mjøsli
Moderne fritidsbolig - Kun 1 time fra Oslo - Panoramautsikt - Gode solforhold - Usjenert - 4 sov. - 2 bad - Jacuzzi ++
Prisantydning5 890 000 kr
- Omkostninger
- 148 340 kr
- Totalpris
- 6 038 340 kr
- Kommunale avg.
- 17 842 kr per år
- Eiendomsskatt
- 9 945 kr per år
Nøkkelinfo
- Beliggenhet
- Innlandet
- Boligtype
- Hytte
- Eieform
- Eier (Selveier)
- Internt bruksareal
- 116 m² (BRA-i)
- Bruksareal
- 116 m²
- Balkong/Terrasse
- 140 m² (TBA)
- Tomteareal
- 1 312 m² (eiet)
- Byggeår
- 2018
- Soverom
- 4
- Rom
- 5
- Sengeplasser
- 9
- Energimerking
- C - Oransje
Fasiliteter
Balkong/Terrasse
Garasje/P-plass
Fiskemulighet
Peis/Ildsted
Turterreng
Utsikt
Bilvei frem
Innlagt strøm
Innlagt vann
Visning
søndag, 01. mars
12:00 – 13:00
Velkommen til visning!
Alle våre visninger har påmelding. På denne måten sikrer vi at megler har god oversikt og tid til å imøtekomme alle interessenter på beste måte. Dette er veldig verdifullt for boligkjøpere og for oss. Det er enkelt å melde seg på, og du kan like enkelt melde deg av. Kontakt også gjerne megler i forkant av visning dersom du har spørsmål.
Husk å lese komplett salgsoppgave før visning. Bestill komplett, utskriftsvennlig salgsoppgave.
VisningspåmeldingOm boligen
En anledning av de sjeldne!
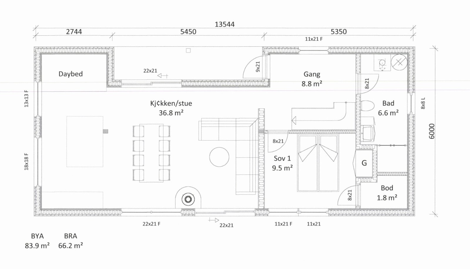
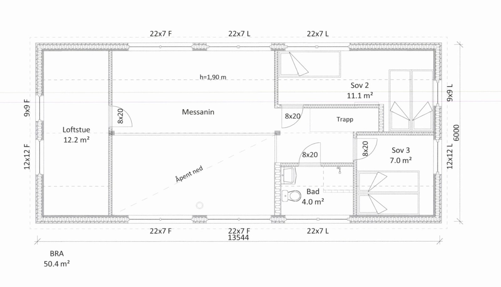
Moderne fritidsbolig fra norske Rindalshytter. Hytta holder gjennomgående god kvalitet og byr på flere unike og praktiske løsninger.
Eiendommen har en attraktiv beliggenhet i et idyllisk og naturskjønt område på populære Mjøsli, med direkte grense mot marka og flotte turmuligheter rett utenfor døren. Her får du fantastiske solforhold og panoramautsikt over Mjøsa!
Kort fortalt:
- Stue m/panoramavinduer, åpen himling i deler av stuen
- 4 gode soverom + mezanin/hems
- 2 smakfulle bad (ett med badekar), opplegg for vaskemaskin
- Stilrent kjøkken m/integrerte hvitevarer og ventilator integrert i himling
- Plassbygd daybed i nisje ved kjøkkenet
- Fliser m/varmekabler i gang og på bad
- Utvendige screens i stue og soverom 1.etg.
- Sol fra morgen til kveld
- Populært utleieobjekt
- Ski-/turløyper i området
- Helårsvei
- Kun 1 time fra Oslo, 35 min fra Gardermoen og 30 min fra Hamar
- Mjøsli hyttefelt tilbyr en rekke aktiviteter, se www.mjosli.no/
Velkommen!
Moderne fritidsbolig fra norske Rindalshytter. Hytta holder gjennomgående god kvalitet og byr på flere unike og praktiske løsninger.
Eiendommen har en attraktiv beliggenhet i et idyllisk og naturskjønt område på populære Mjøsli, med direkte grense mot marka og flotte turmuligheter rett utenfor døren. Her får du fantastiske solforhold og panoramautsikt over Mjøsa!
Kort fortalt:
- Stue m/panoramavinduer, åpen himling i deler av stuen
- 4 gode soverom + mezanin/hems
- 2 smakfulle bad (ett med badekar), opplegg for vaskemaskin
- Stilrent kjøkken m/integrerte hvitevarer og ventilator integrert i himling
- Plassbygd daybed i nisje ved kjøkkenet
- Fliser m/varmekabler i gang og på bad
- Utvendige screens i stue og soverom 1.etg.
- Sol fra morgen til kveld
- Populært utleieobjekt
- Ski-/turløyper i området
- Helårsvei
- Kun 1 time fra Oslo, 35 min fra Gardermoen og 30 min fra Hamar
- Mjøsli hyttefelt tilbyr en rekke aktiviteter, se www.mjosli.no/
Velkommen!
NB: Knappen for å vise hele beskrivelsen har kun en visuell effekt.
NB: Knappen for å vise hele beskrivelsen har kun en visuell effekt.
Salgsoppgaven beskriver vesentlig og lovpålagt informasjon om eiendommen
Se komplett salgsoppgaveNyttige lenker
Nærområdet

PrivatMegleren Brustad & Partnere
Kun det beste på dine vegne
Annonseinformasjon
| FINN-kode | 451353058 |
|---|---|
| Sist endret | 19. feb. 2026 09:56 |
| Referanse | 121260047 |
Annonsene kan være mangelfulle i forhold til lovpålagt opplysningsplikt. Før bindende avtale inngås oppfordres interessenter til å innhente komplett informasjon fra meglerforetaket, selger eller utleier.




































