Bildegalleri

Velkommen til Båtsøynvegen 27, en eiendom presentert av EIE Fjellmegleren. Foto: Terje Bjørnsen
Nyere (2018) hytte med anneks
Prisantydning2 750 000 kr
- Omkostninger
- 70 100 kr
- Totalpris
- 2 820 100 kr
- Kommunale avg.
- 15 651 kr per år
- Eiendomsskatt
- 1 910 kr per år
- Formuesverdi
- 844 000 kr
Nøkkelinfo
- Beliggenhet
- På fjellet
- Boligtype
- Hytte
- Eieform
- Eier (Selveier)
- Internt bruksareal
- 59 m² (BRA-i)
- Bruksareal
- 71 m²
- Eksternt bruksareal
- 12 m² (BRA-e)
- Tomteareal
- 962 m² (eiet)
- Byggeår
- 2018
- Soverom
- 3
- Rom
- 4
- Energimerking
- C - Lysegrønn
Fasiliteter
Balkong/Terrasse
Garasje/P-plass
Offentlig vann/kloakk
Peis/Ildsted
Turterreng
Utsikt
Bilvei frem
Innlagt strøm
Innlagt vann
Lademulighet
Visning
Ta kontakt for å avtale visning.Husk å lese komplett salgsoppgave før visning. Bestill komplett, utskriftsvennlig salgsoppgave.
VisningspåmeldingOm boligen
Velkommen til en pen, nyere hytte - lunt beliggende i Hovet. .
Naturskjønn beliggenhet omkranset med skog og dal. Et perfekt utgangspunkt for hyttekos, turer og aktiviteter.
Kort vei til alpint, ca. 10 minutter til Hallingskarvet Skisenter.
Kort vei til langrenn, enten i lysløypa i Hovet (3 min) eller høyfjellsturer fra Myrland (15 min).
Fra hytta er det turstier og grusveier i alle retninger til både gange og sykkel. 15 minutter spasertur til badeplassen ved Grytebrue, hvor det er friskt vann, men veldig artige kulper!
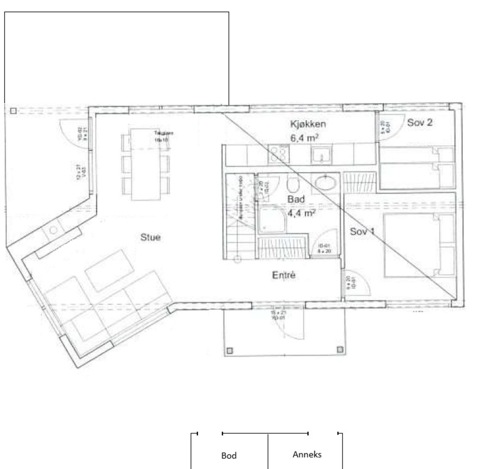
Hytta inneholder stue/kjøkken, 2 soverom, bad, gang og hems.
Anneks med soverom og bod.
Velkommen på visning!
Naturskjønn beliggenhet omkranset med skog og dal. Et perfekt utgangspunkt for hyttekos, turer og aktiviteter.
Kort vei til alpint, ca. 10 minutter til Hallingskarvet Skisenter.
Kort vei til langrenn, enten i lysløypa i Hovet (3 min) eller høyfjellsturer fra Myrland (15 min).
Fra hytta er det turstier og grusveier i alle retninger til både gange og sykkel. 15 minutter spasertur til badeplassen ved Grytebrue, hvor det er friskt vann, men veldig artige kulper!
Hytta inneholder stue/kjøkken, 2 soverom, bad, gang og hems.
Anneks med soverom og bod.
Velkommen på visning!
NB: Knappen for å vise hele beskrivelsen har kun en visuell effekt.
NB: Knappen for å vise hele beskrivelsen har kun en visuell effekt.
Salgsoppgaven beskriver vesentlig og lovpålagt informasjon om eiendommen
Se komplett salgsoppgaveNyttige lenker
Nærområdet
EIE Fjellmegleren Geilo
Annonseinformasjon
| FINN-kode | 451096219 |
|---|---|
| Sist endret | 01. mars 2026 15:08 |
| Referanse | 47260052 |
Annonsene kan være mangelfulle i forhold til lovpålagt opplysningsplikt. Før bindende avtale inngås oppfordres interessenter til å innhente komplett informasjon fra meglerforetaket, selger eller utleier.









































