Bildegalleri

Ali Khoshnau ved EiendomsMegler 1 har gleden av å presentere Gjetdalsvegen 26! Foto: EFKT (Vilde Dahl)
VELHOLDT & LEKKER FRITIDSBOLIG FRA 2011 MED SOLRIK BELIGGENHET - 2 stuer - 3 soverom - 2 terrasser
Prisantydning2 890 000 kr
- Omkostninger
- 73 340 kr
- Totalpris
- 2 963 340 kr
- Kommunale avg.
- 6 481 kr per år
- Formuesverdi
- 812 213 kr
Nøkkelinfo
- Boligtype
- Hytte
- Eieform
- Eier (Selveier)
- Internt bruksareal
- 86 m² (BRA-i)
- Bruksareal
- 97 m²
- Eksternt bruksareal
- 11 m² (BRA-e)
- Balkong/Terrasse
- 38 m² (TBA)
- Tomteareal
- 233 m² (eiet)
- Byggeår
- 2011
- Soverom
- 3
- Rom
- 5
- Energimerking
- C - Lysegrønn
Fasiliteter
Balkong/Terrasse
Garasje/P-plass
Peis/Ildsted
Turterreng
Utsikt
Bilvei frem
Innlagt strøm
Innlagt vann
Visning
søndag, 01. mars
14:00 – 15:00
Våre visninger har påmelding. Dette gjør vi for å kunne yte bedre service for våre kunder. Verdifullt for boligkjøper og for oss. Vi anbefaler at salgsoppgaven lastes ned digitalt før visning, og ring oss gjerne på forhånd for spørsmål om boligen. Passer ikke angitt tidspunkt, ta kontakt så finner vi en løsning. Skulle det mot formodning ikke være påmeldte til angitt visningstidspunkt vil ikke visning bli gjennomført.
Husk å lese komplett salgsoppgave før visning. Bestill komplett, utskriftsvennlig salgsoppgave.
VisningspåmeldingOm boligen
Ali Khoshnau ved EiendomsMegler 1 har gleden av å presentere
Gjetdalsvegen 26!
Flott hytte med attraktiv og barnevennlig beliggenhet på Breesgården i Oppdal kommune. Et utmerket utgangspunkt for deg som er interessert i friluftsliv, da helårs turterreng finnes i umiddelbar nærhet.
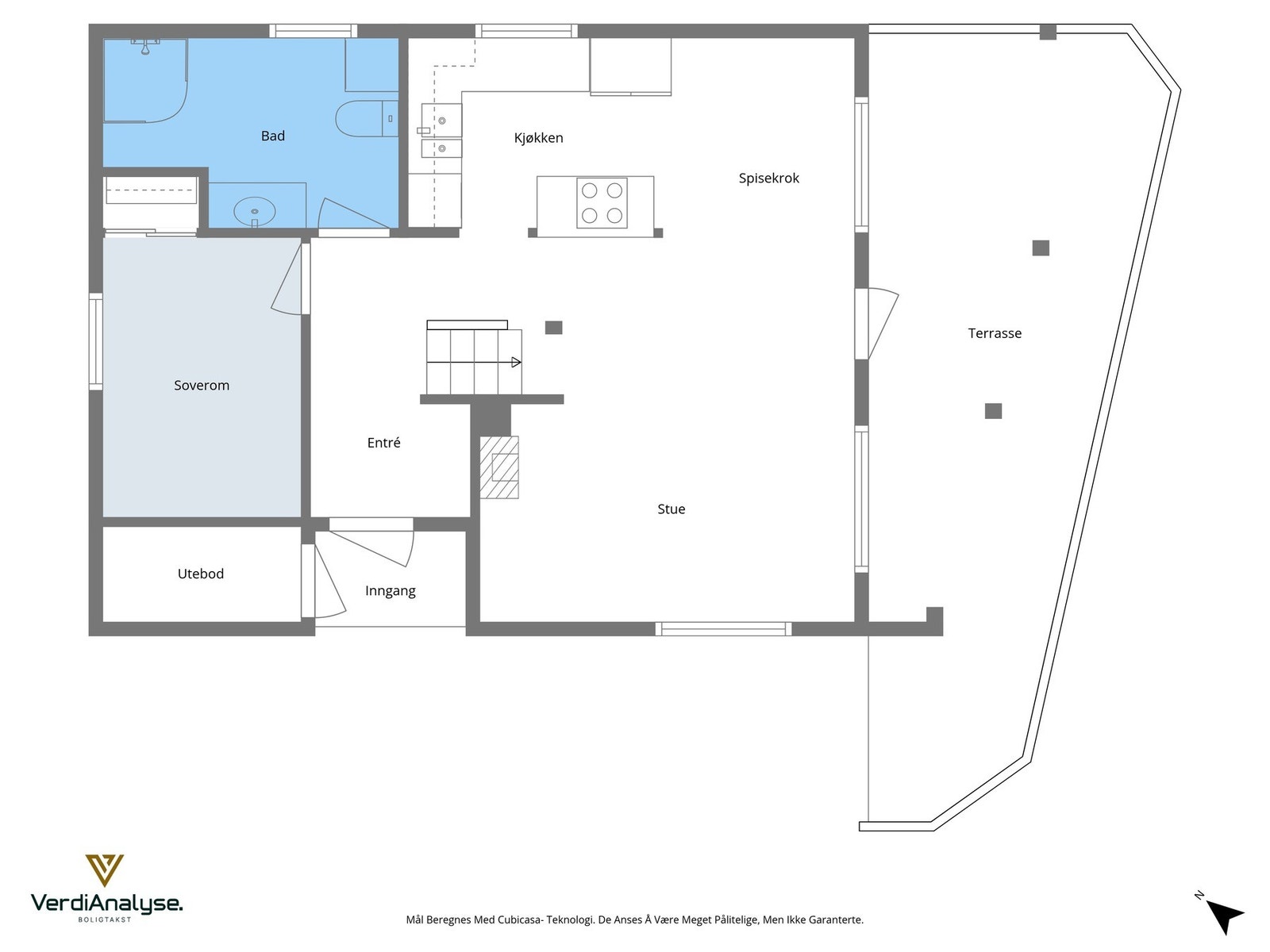
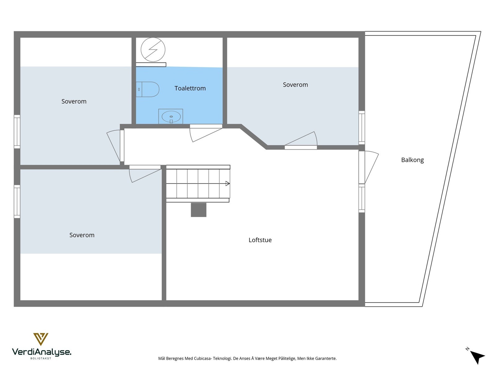
Flott, innholdsrik og koselig hytte bygget i 2011, med bl.a. 3 soverom, 2 stuer, 2 toalett, solrik terrasse og veranda, samt parkering på egen tomt.
Fra Hytten er det kort vei til Gjevillvassdalen. Eiendommen er omkranset av vakkert helårs turterreng og oppkjørte skispor finnes like i nærheten. Fantastiske turmuligheter både sommer og vinter rett utenfor døra. For randonee-interesserte kan man gå direkte på Storhornet fra hytta. Om de mer urbane behov skulle melde seg, er sentrum av Oppdal med alpinanlegg og et rikt handels-, fritids- og kulturtilbud kort kjøretur unna.
Velkommen til hyggelig visning!
Gjetdalsvegen 26!
Flott hytte med attraktiv og barnevennlig beliggenhet på Breesgården i Oppdal kommune. Et utmerket utgangspunkt for deg som er interessert i friluftsliv, da helårs turterreng finnes i umiddelbar nærhet.
Flott, innholdsrik og koselig hytte bygget i 2011, med bl.a. 3 soverom, 2 stuer, 2 toalett, solrik terrasse og veranda, samt parkering på egen tomt.
Fra Hytten er det kort vei til Gjevillvassdalen. Eiendommen er omkranset av vakkert helårs turterreng og oppkjørte skispor finnes like i nærheten. Fantastiske turmuligheter både sommer og vinter rett utenfor døra. For randonee-interesserte kan man gå direkte på Storhornet fra hytta. Om de mer urbane behov skulle melde seg, er sentrum av Oppdal med alpinanlegg og et rikt handels-, fritids- og kulturtilbud kort kjøretur unna.
Velkommen til hyggelig visning!
NB: Knappen for å vise hele beskrivelsen har kun en visuell effekt.
NB: Knappen for å vise hele beskrivelsen har kun en visuell effekt.
Salgsoppgaven beskriver vesentlig og lovpålagt informasjon om eiendommen
Se komplett salgsoppgaveNyttige lenker
Nærområdet
EiendomsMegler 1 Kristiansund
Vi loser deg trygt gjennom hele boligsalget
Annonseinformasjon
| FINN-kode | 451019004 |
|---|---|
| Sist endret | 17. feb. 2026 13:01 |
| Referanse | 17260027 |
Annonsene kan være mangelfulle i forhold til lovpålagt opplysningsplikt. Før bindende avtale inngås oppfordres interessenter til å innhente komplett informasjon fra meglerforetaket, selger eller utleier.



























