Bildegalleri

PrivatMegleren v/ Eiendomsmegler MNEF Erlend Haglund presenterer Borestranda 415 for salg.
Borestranda
Lekker strandhytte i første rekke fra 2022 med oppgradert standard. Mulighet for gode leieinntekter. Gode solforhold.
Prisantydning4 490 000 kr
- Omkostninger
- 113 340 kr
- Totalpris
- 4 603 340 kr
- Kommunale avg.
- 11 084 kr per år
- Formuesverdi
- 900 000 kr
Nøkkelinfo
- Beliggenhet
- Ved sjøen
- Boligtype
- Hytte
- Eieform
- Eier (Selveier)
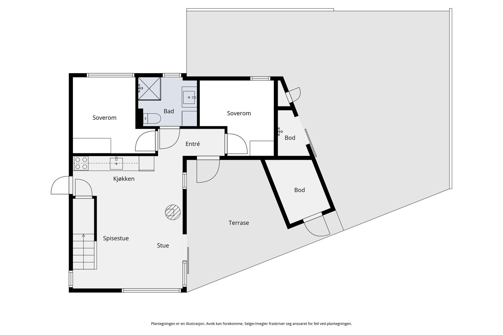
- Internt bruksareal
- 53 m² (BRA-i)
- Bruksareal
- 57 m²
- Eksternt bruksareal
- 4 m² (BRA-e)
- Balkong/Terrasse
- 18 m² (TBA)
- Tomteareal
- 294 m² (eiet)
- Byggeår
- 2022
- Soverom
- 2
- Rom
- 4
- Energimerking
- C - Lysegrønn
Fasiliteter
Balkong/Terrasse
Offentlig vann/kloakk
Peis/Ildsted
Turterreng
Utsikt
Bilvei frem
Innlagt strøm
Innlagt vann
Lademulighet
Visning
søndag, 22. februar
14:00 – 15:00
Velkommen til visning!
Alle våre visninger har påmelding. På denne måten sikrer vi at megler har god oversikt og tid til å imøtekomme alle interessenter på beste måte. Dette er veldig verdifullt for boligkjøpere og for oss. Det er enkelt å melde seg på, og du kan like enkelt melde deg av. Kontakt også gjerne megler i forkant av visning dersom du har spørsmål.
Husk å lese komplett salgsoppgave før visning. Bestill komplett, utskriftsvennlig salgsoppgave.
VisningspåmeldingOm boligen
Velkommen til en sjelden mulighet ved havet. Denne moderne hytten fra 2022 har en unik beliggenhet, rett ved Borestranda - en av Norges mest ikoniske og attraktive strender. Her kan du nyte hvit sand, mektige surfebølger og naturskjønne turmuligheter, alt rett utenfor døren.
Det er bilvei helt frem til hytteveggen med el-billader, noe som gir enkel adkomst året rundt. Samtidig ligger hytten kun ca. 20-30 minutters kjøretur fra Sandnes og Stavanger, perfekt for deg som ønsker et eksklusivt fristed med kort vei fra byen.
Den fremstår moderne og stilren, med gode materialvalg og en funksjonell planløsning som gir rom for både avslapning og sosiale sammenkomster. Store, solrike uteområder innbyr til lange dager ute.
Hytta må stilles tilgjengelig for utleie minimum 9 av 12 måneder per år.
Det er bilvei helt frem til hytteveggen med el-billader, noe som gir enkel adkomst året rundt. Samtidig ligger hytten kun ca. 20-30 minutters kjøretur fra Sandnes og Stavanger, perfekt for deg som ønsker et eksklusivt fristed med kort vei fra byen.
Den fremstår moderne og stilren, med gode materialvalg og en funksjonell planløsning som gir rom for både avslapning og sosiale sammenkomster. Store, solrike uteområder innbyr til lange dager ute.
Hytta må stilles tilgjengelig for utleie minimum 9 av 12 måneder per år.
NB: Knappen for å vise hele beskrivelsen har kun en visuell effekt.
NB: Knappen for å vise hele beskrivelsen har kun en visuell effekt.
Salgsoppgaven beskriver vesentlig og lovpålagt informasjon om eiendommen
Se komplett salgsoppgaveNyttige lenker
Nærområdet
Privatmegleren Galleri
Kun det beste på dine vegne
Annonseinformasjon
| FINN-kode | 450908161 |
|---|---|
| Sist endret | 14. feb. 2026 14:32 |
| Referanse | 317260008 |
Annonsene kan være mangelfulle i forhold til lovpålagt opplysningsplikt. Før bindende avtale inngås oppfordres interessenter til å innhente komplett informasjon fra meglerforetaket, selger eller utleier.
















































