Bildegalleri

Damtjednhallin 64 ligger flott til i Skarsdalen i Flå kommune, på om lag 1020 moh. Eiendomsfoto: Fotograf Terje Bjørnsen.
Skarsdalen nær Turufjell
Skarsdalen - aller øverst i Damtjernhallin - panoramautsikt - innholdsrik hytte - stor tomt - 1020 moh
Prisantydning5 650 000 kr
- Omkostninger
- 142 340 kr
- Totalpris
- 5 792 340 kr
- Kommunale avg.
- 3 532 kr per år
- Eiendomsskatt
- 8 032 kr per år
Nøkkelinfo
- Beliggenhet
- På fjellet
- Boligtype
- Hytte
- Eieform
- Eier (Selveier)
- Internt bruksareal
- 142 m² (BRA-i)
- Bruksareal
- 146 m²
- Eksternt bruksareal
- 4 m² (BRA-e)
- Balkong/Terrasse
- 60 m² (TBA)
- Tomteareal
- 2 523 m² (eiet)
- Byggeår
- 2006
- Soverom
- 4
- Rom
- 6
- Energimerking
- D - Oransje
Fasiliteter
Balkong/Terrasse
Garasje/P-plass
Fiskemulighet
Peis/Ildsted
Turterreng
Utsikt
Bilvei frem
Innlagt strøm
Innlagt vann
Visning
lørdag, 28. februar
12:00 – 13:00
Husk å lese komplett salgsoppgave før visning. Bestill komplett, utskriftsvennlig salgsoppgave.
VisningspåmeldingOm boligen
Denne hytta med god plass til både familie og gjester ligger høyt og fritt til på en stor og vestvendt tomt, ca. 1020 moh. i fjelldalen Skarsdalen i Flå i Hallingdal.
Her er det fantastisk utsikt, gode solforhold og turmuligheter utafor hyttedøra året rundt.
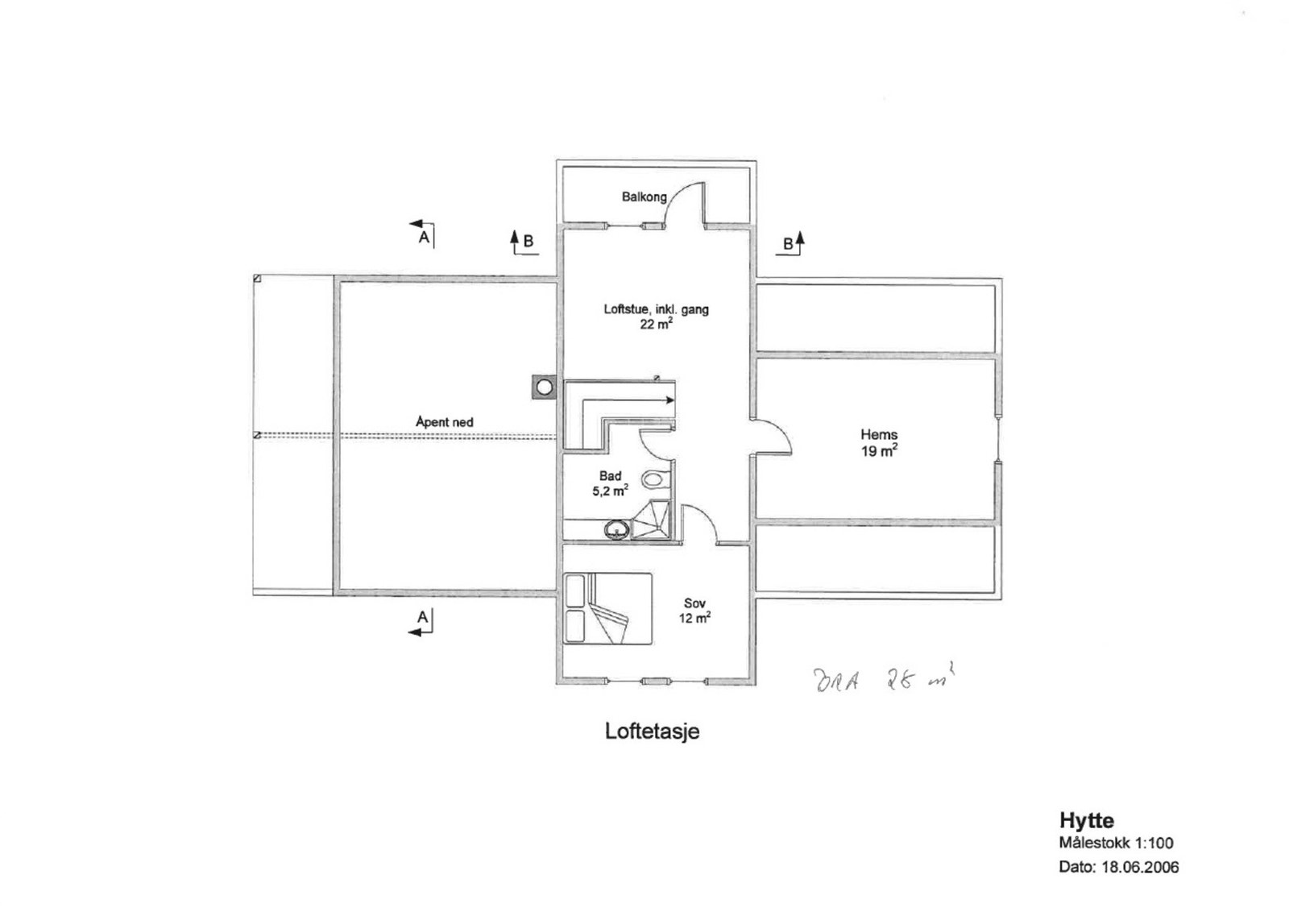
Hytta er bygget i 2006, den er romslig og innholdsrik med god planløsning, to stuer, to bad, badstue og fire soverom. Peis i stua og utstrakt bruk av treverk i innredning og overflater gir den koselige hyttefølelsen.
Den store tomta er planert rundt hytta med gruset innkjøring og parkeringsplass, og ellers naturtomt med lav fjellvegetasjon. Det er god avstand til de omkringliggende hyttene og friareal på oversiden. Alpinbakken på Turufjell er kun ca 10-12 minutter unna med den nye fjellveien fra Skarsdalen til Flå.
Med beliggenhet i et ettertraktet fjellområde omtrent to timer fra Oslo/Drammen og med kort vei til Flå sentrum, er denne eiendommen et godt valg for den som ønsker et komfortabelt fristed i høyfjellet.
Her er det fantastisk utsikt, gode solforhold og turmuligheter utafor hyttedøra året rundt.
Hytta er bygget i 2006, den er romslig og innholdsrik med god planløsning, to stuer, to bad, badstue og fire soverom. Peis i stua og utstrakt bruk av treverk i innredning og overflater gir den koselige hyttefølelsen.
Den store tomta er planert rundt hytta med gruset innkjøring og parkeringsplass, og ellers naturtomt med lav fjellvegetasjon. Det er god avstand til de omkringliggende hyttene og friareal på oversiden. Alpinbakken på Turufjell er kun ca 10-12 minutter unna med den nye fjellveien fra Skarsdalen til Flå.
Med beliggenhet i et ettertraktet fjellområde omtrent to timer fra Oslo/Drammen og med kort vei til Flå sentrum, er denne eiendommen et godt valg for den som ønsker et komfortabelt fristed i høyfjellet.
NB: Knappen for å vise hele beskrivelsen har kun en visuell effekt.
NB: Knappen for å vise hele beskrivelsen har kun en visuell effekt.
Salgsoppgaven beskriver vesentlig og lovpålagt informasjon om eiendommen
Se komplett salgsoppgaveNyttige lenker
Nærområdet
EIE Fjellmegleren Gol / Nesbyen / Flå
Annonseinformasjon
| FINN-kode | 450882467 |
|---|---|
| Sist endret | 13. feb. 2026 11:16 |
| Referanse | 28260014 |
Annonsene kan være mangelfulle i forhold til lovpålagt opplysningsplikt. Før bindende avtale inngås oppfordres interessenter til å innhente komplett informasjon fra meglerforetaket, selger eller utleier.



















































