Bildegalleri

Velkommen til Nedre Håkkådalsvei 850 - en fritidsbolig oppført i 2015, idyllisk plassert 606 moh. Hytten ligger fritt og usjenert på eiet tomt, omgitt av skog og åpne landskap.
Soknedal
Flott hytte i rolige og idylliske omgivelser |To soverom og hems |Helårs vei |Innlagt strøm |Elbillader |Uthus og utedo
Prisantydning1 120 000 kr
- Omkostninger
- 48 990 kr
- Totalpris
- 1 168 990 kr
- Kommunale avg.
- 3 396 kr per år
Nøkkelinfo
- Beliggenhet
- På fjellet
- Boligtype
- Hytte
- Eieform
- Selveier
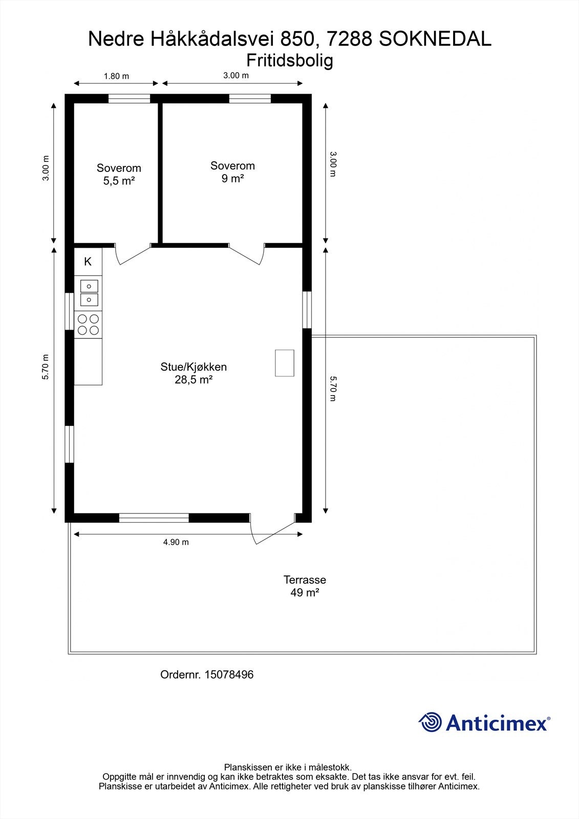
- Internt bruksareal
- 43 m² (BRA-i)
- Bruksareal
- 52 m²
- Eksternt bruksareal
- 9 m² (BRA-e)
- Balkong/Terrasse
- 49 m² (TBA)
- Tomteareal
- 1 041 m² (eiet)
- Byggeår
- 2015
- Soverom
- 2
- Rom
- 2
- Energimerking
Om boligen
Velkommen til Nedre Håkkådalsvei 850 - og denne sjarmerende hytta beliggende i et naturskjønt og idyllisk område i Soknedal! Her får du kombinasjonen av privat og tilbaketrukket beliggenhet samtidig som helårsvei gir enkel tilgjengelighet. Kun ca. 250 meter unna finner du preparerte skiløyper med tilgang til et omfattende løypenett. Trondheim nås på rundt 1 time og 15 minutter med bil.
Verdt å nevne:
- Lys og luftig stue- og kjøkkenareal med utstrakte vindusflater som sikrer rikelig med naturlig dagslys.
- To romslige soverom med god plass til garderobe.
- Peisovn som bidrar til ekstra hygge.
- Delvis overbygd terrasse på hele 49 kvm med gode solforhold.
- Uthus og utedo med gode lagringsmuligheter.
- Helårs bilvei, flere biloppstillingsplasser og elbillader.
- Innlagt strøm.
Verdt å nevne:
- Lys og luftig stue- og kjøkkenareal med utstrakte vindusflater som sikrer rikelig med naturlig dagslys.
- To romslige soverom med god plass til garderobe.
- Peisovn som bidrar til ekstra hygge.
- Delvis overbygd terrasse på hele 49 kvm med gode solforhold.
- Uthus og utedo med gode lagringsmuligheter.
- Helårs bilvei, flere biloppstillingsplasser og elbillader.
- Innlagt strøm.
NB: Knappen for å vise hele beskrivelsen har kun en visuell effekt.
NB: Knappen for å vise hele beskrivelsen har kun en visuell effekt.
Salgsoppgaven beskriver vesentlig og lovpålagt informasjon om eiendommen
Se komplett salgsoppgaveNyttige lenker
Nærområdet
Krogsveen Trondheim
Verdien av en god megler.
Annonseinformasjon
| FINN-kode | 450762487 |
|---|---|
| Sist endret | 19. apr. 2026 09:27 |
| Referanse | KR68.264 |
Annonsene kan være mangelfulle i forhold til lovpålagt opplysningsplikt. Før bindende avtale inngås oppfordres interessenter til å innhente komplett informasjon fra meglerforetaket, selger eller utleier.





















