Bildegalleri

Velkommen til Ryskdalen Hytteområde 65, presentert av Fredrik Langsø ved Nordvik.

Ryskdalen/Trysil

Familievennlig og usjenert helårshytte m/​nydelig utsikt og fine uteplasser. Flotte friluftsmuligheter rett utenfor døren

Prisantydning2 250 000 kr
Omkostninger
57 630 kr
Totalpris
2 307 630 kr
Kommunale avg.
2 351 kr per år
Eiendomsskatt
1 399 kr per år

Nøkkelinfo

Beliggenhet
På fjellet
Boligtype
Hytte
Eieform
Eier (Selveier)
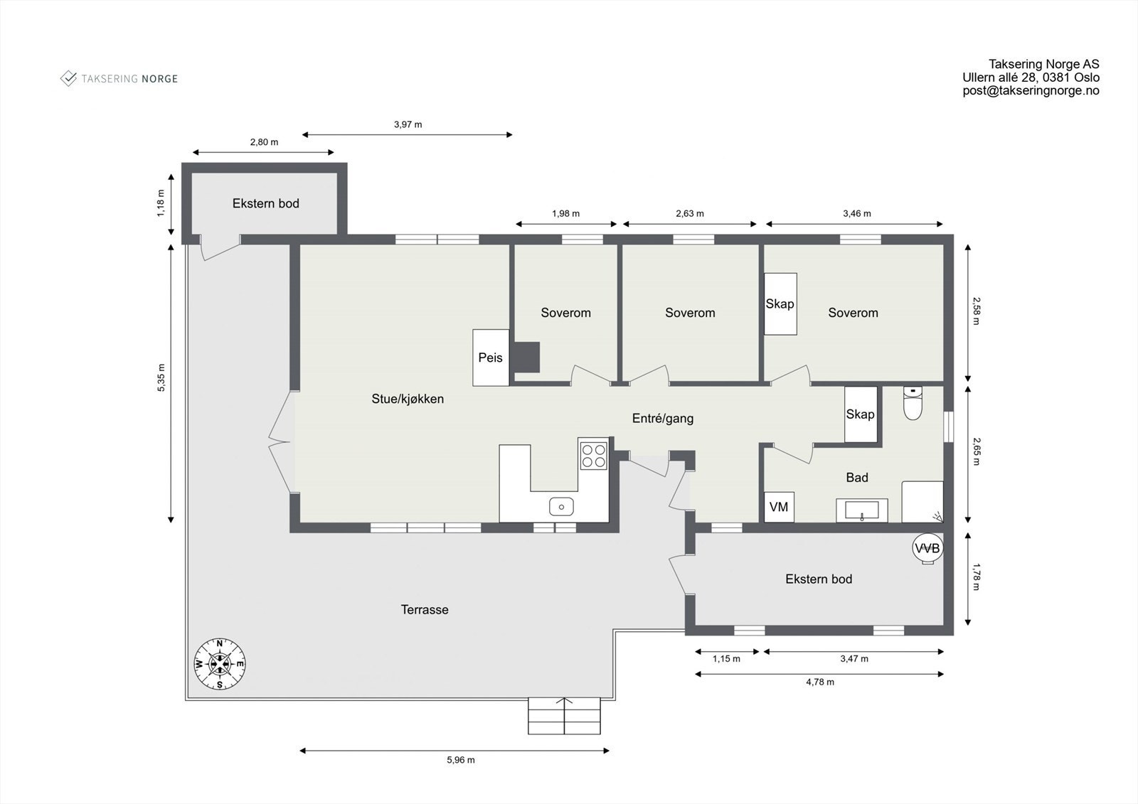
Internt bruksareal
65 m² (BRA-i)
Bruksareal
68 m²
Eksternt bruksareal
3 m² (BRA-e)
Balkong/Terrasse
40 m² (TBA)
Byggeår
1984
Soverom
3
Rom
4
Energimerking
G - Oransje

Les mer om bruksareal her

Fasiliteter

Innlagt vann
Alpinanlegg
Balkong/Terrasse
Barnevennlig
Bilvei frem
Bredbåndstilknytning
Garasje/P-plass
Golfbane
Hage
Kabel-TV
Peis/Ildsted
Rolig
Utsikt
Bademulighet
Fiskemulighet
Innlagt strøm
Turterreng
Lademulighet

Visning

Ta kontakt med megler på 913 99 834 for visning.

Husk å lese komplett salgsoppgave før visning. Bestill komplett, utskriftsvennlig salgsoppgave.

Visningspåmelding

Om boligen

Familievennlig hytte i Ryskdalen med nydelig utsikt, sol hele dagen og fine uteplasser. Idyllisk hyttefelt for hele året hvor du kan gå rett ut i skiløypa eller akebakken på vinterstid. Områdene rundt hytta er like attraktive om sommeren med fine tur- og fjellterreng. Rett ved et eldorado av friluftsmuligheter som Fulufjellet, Sälen og Trysilfjellet.

Hytta fremstår som velholdt med koselig atmosfære. God takhøyde, gode lysforhold og nydelig utsikt fra vinduer på flere sider. God planløsning med egen soveromsdel på den ene siden og romslig, åpen stue og kjøkken på andre siden.

Ta kontakt for privatvisning

Legg merke til:
- Peis
- Store soverom
- Kan benyttes året rundt
- Solrike uteplasser
- 2 uteboder
- Store friområder
- Skiløype rett utenfor
- Rolig og usjenert
- Trysil sentrum 30 km

Salgsoppgaven beskriver vesentlig og lovpålagt informasjon om eiendommen

Se komplett salgsoppgave

Nærområdet

Annonseinformasjon

FINN-kode450749999
Sist endret12. feb. 2026 12:30
Referanse13-0104/24

Rapporter annonse

Annonsene kan være mangelfulle i forhold til lovpålagt opplysningsplikt. Før bindende avtale inngås oppfordres interessenter til å innhente komplett informasjon fra meglerforetaket, selger eller utleier.