Bildegalleri

Velkommen til Favn Hafjell Chalet - presentert av Stian Pøhner og Siril Sloreby. Foto: Lene Sæther

FAVN HAFJELL på GONDOLTOPPEN

Svært lekker & påkostet toppleilighet med 4 sov & 2 bad | Ski in/​out | Reiulf Ramstad Ark | Garasjeplass | Møbelpakke*

Prisantydning8 250 000 kr
Omkostninger
207 630 kr
Totalpris
8 457 630 kr
Kommunale avg.
14 273 kr per år
Felleskost/mnd.
3 137 kr
Fellesformue
46 934 kr
Eiendomsskatt
7 501 kr per år

Nøkkelinfo

Beliggenhet
På fjellet
Boligtype
Leilighet
Eieform
Eier (Selveier)
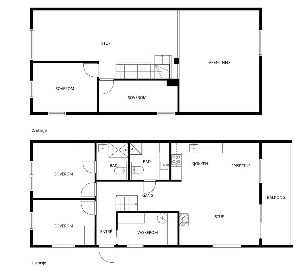
Internt bruksareal
131 m² (BRA-i)
Bruksareal
131 m²
Balkong/Terrasse
10 m² (TBA)
Tomteareal
5 416 m² (eiet)
Byggeår
2022
Soverom
4
Rom
6
Energimerking
B - Oransje

Les mer om bruksareal her

Fasiliteter

Innlagt vann
Alpinanlegg
Balkong/Terrasse
Barnevennlig
Bilvei frem
Bredbåndstilknytning
Garasje/P-plass
Kabel-TV
Peis/Ildsted
Rolig
Utsikt
Innlagt strøm
Offentlig vann/kloakk
Turterreng
Lademulighet

Visning

torsdag, 19. februar
11:30 – 12:30
fredag, 20. februar
11:30 – 12:30
Alle våre visninger har påmelding. Meld deg på visning ved å trykke på lenken visningspåmelding.

Husk å lese komplett salgsoppgave før visning. Bestill komplett, utskriftsvennlig salgsoppgave.

Visningspåmelding

Om boligen

Velkommen til Favn Hafjell Chalet - på Gondoltoppen med alle fasiliteter!

Ved gondolens toppstasjon Mosetertoppen - finner man den nye fjellandsbyen Favn Hafjell hvor ark. Reiulf Ramstad (RRA) har tegnet en urban fjellandsby.

  • Meget attraktiv påkostet chaletleilighet med gjennomgående høy standard
  • Vestvendt beliggenhet med gode solforhold
  • Solrik terrasse på 10 m²
  • Lekker vedovn
  • Garasjeplass i lukket anlegg m. el lader
  • Sportsbod m. strømuttak skirack
  • Felles smørebod
  • Fri tilgang til treningslokaler på FAVN
  • Umiddelbar nærhet til alle servicefasiliteter, alpinanlegget og langrennsløyper
  • Delingsøkonomi - leiligheten har utleieklausul. Se salgsoppgaven

    *Mulighet for kjøp av leiligheten med inventar (oversikt vedlagt salgsoppgave)

Salgsoppgaven beskriver vesentlig og lovpålagt informasjon om eiendommen

Se komplett salgsoppgave

Nærområdet

Annonseinformasjon

FINN-kode450729843
Sist endret13. feb. 2026 07:43
Referanse14-0045/26

Rapporter annonse

Annonsene kan være mangelfulle i forhold til lovpålagt opplysningsplikt. Før bindende avtale inngås oppfordres interessenter til å innhente komplett informasjon fra meglerforetaket, selger eller utleier.