Bildegalleri

Dan Chruickshank presenterer: Delikat hytteidyll m/fantastisk utsikt, sol og umiddelbar tilgang til alt fjellet tilbyr. Parkering m/lader.
TJØRHOMFJELLET
Delikat hytteidyll m/fantastisk utsikt, sol og umiddelbar tilgang til alt fjellet tilbyr. Parkering m/lader. Innholdsrik
Prisantydning6 300 000 kr
- Omkostninger
- 158 590 kr
- Totalpris
- 6 458 590 kr
- Kommunale avg.
- 14 627 kr per år
- Formuesverdi
- 1 875 000 kr
Nøkkelinfo
- Beliggenhet
- På fjellet
- Boligtype
- Hytte
- Eieform
- Eier (Selveier)
- Internt bruksareal
- 128 m² (BRA-i)
- Bruksareal
- 128 m²
- Balkong/Terrasse
- 6 m² (TBA)
- Tomt
- Festet
- Festeavgift
- 7 345 kr
- Byggeår
- 2019
- Soverom
- 5
- Rom
- 7
- Energimerking
- C - Lysegrønn
Fasiliteter
Innlagt vann
Alpinanlegg
Balkong/Terrasse
Barnevennlig
Bilvei frem
Garasje/P-plass
Golfbane
Peis/Ildsted
Utsikt
Bademulighet
Innlagt strøm
Offentlig vann/kloakk
Turterreng
Lademulighet
Visning
søndag, 15. februar
11:00 – 12:00
OBS. VELKOMMEN TIL PÅMELDINGSVISNING. UTEN PÅMELDING INNEN KL 12:00 DAGEN FØR, UTGÅR VISNING.
Ta kontakt på tlf/sms for privatvisning utenom oppsatt tid.
Husk å lese komplett salgsoppgave før visning. Bestill komplett, utskriftsvennlig salgsoppgave.
VisningspåmeldingOm boligen
Herlig beliggenhet, i første rekke m/formidabel utsikt uten innsyn, i et nyere hyttefelt hvor du fra hytten renner umiddelbart inn i langrennssporet og med videre tilgang til stolheisen. Dette er et eldorado for familien. Første rekke mot Beinesvatnet, uforstyrret utsikt og fine uterom for grilling og moro. Plasseringen er perfekt for deg som er glad i alpint. Langrennsløypen like nedenfor hytten, med rask tilgang til Degevassløypen, Forsbergløypen og øvrig løypenett videre oppover i Sirdal. Langrennsløypen går langs Beinesvatnet forbi Slettekvæv og til Ålsheia.
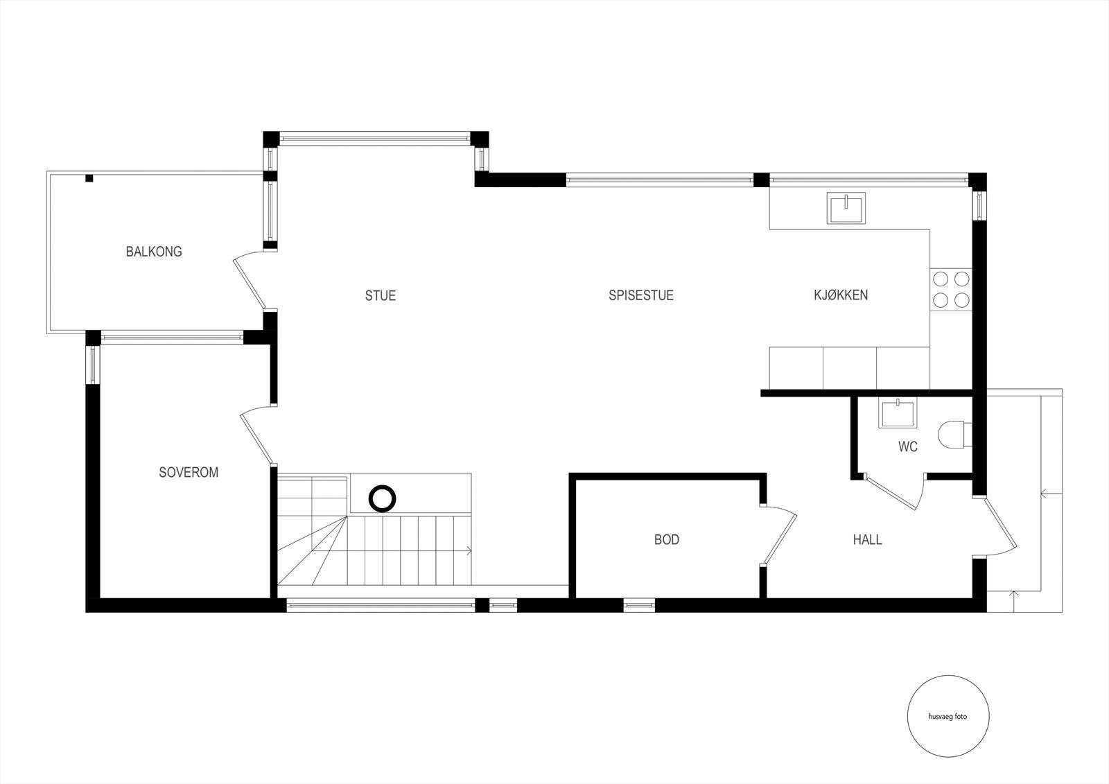
2 wc for å unngå kø. 4(5) soverom/2(3) stuer. Vaskerom. Herlig utsikt og lun atmosfære. Hytten har innholdet som passer m/både små og store barn. Gjennomgående naturlig lys. Oppholdsrom å trekke seg tilbake til, eller samles i.
2 wc for å unngå kø. 4(5) soverom/2(3) stuer. Vaskerom. Herlig utsikt og lun atmosfære. Hytten har innholdet som passer m/både små og store barn. Gjennomgående naturlig lys. Oppholdsrom å trekke seg tilbake til, eller samles i.
NB: Knappen for å vise hele beskrivelsen har kun en visuell effekt.
NB: Knappen for å vise hele beskrivelsen har kun en visuell effekt.
Salgsoppgaven beskriver vesentlig og lovpålagt informasjon om eiendommen
Se komplett salgsoppgaveNyttige lenker
Nærområdet
EiendomsMegler 1 Sandnes
En del av Sparebank 1 Sør-Norge
Annonseinformasjon
| FINN-kode | 450414287 |
|---|---|
| Sist endret | 10. feb. 2026 18:01 |
| Referanse | 2301260006 |
Annonsene kan være mangelfulle i forhold til lovpålagt opplysningsplikt. Før bindende avtale inngås oppfordres interessenter til å innhente komplett informasjon fra meglerforetaket, selger eller utleier.
















































